RE/MAX og Guðrún Þórhalla, löggiltur fasteignasali kynna í einkasölu: Mjög glæsilega og vel skipulagða 115,0 fm. þriggja herbergja íbúð á 4. hæð við Hverfisgötu 96. Eignin er í nýlegu lyftuhúsi á vinsælum stað í miðbænum, á horni Hverfisgötu og Barónsstígs. Sérmerkt bílastæði fylgir íbúð í lokuðum bílakjallara og góð geymsla inn af stæði. Gólfhitakerfi er í allri íbúðinni, vandaðar innréttingar og gólfefni, aukin lofthæð, myndavéladyrasími og aðgangskerfi inn í húsið. Auk þess er líkamsræktar aðstaða í sameign.
Eignin er öll innréttuð á vandaðan og smekklegan hátt og eru innréttingar sérsmíðaðar úr svartbæsaðri eik og ná upp í loft. Innfelld lýsing er í loftum að hluta og kvartsteinn er á borðum innréttinga í eldhúsi og í baðherbergi. Gólfefni á íbúðinni er harðparket og á votrýmum eru vandaðar flísar frá Álfaborg. Innanhúshönnun Berglindar Berndsen og Helgu Sigurbjarnardóttur á bæði á íbúðum og sameign tryggja fallega heildarmynd hússins.
Allar frekari upplýsingar um eignina veitir Guðrún Þórhalla, löggiltur fasteignasali í síma 820-0490 eða á netfangið gudrun@remax.is.KÍKTU Í HEIMSÓKN OG SJÁÐU ÍBÚÐINA Í 3D MEÐ ÞVÍ AÐ SMELLA HÉRFÁÐU SÖLUYFIRLIT STRAX MEÐ ÞVÍ AÐ SMELLA HÉRUpplýsingar um eignina:
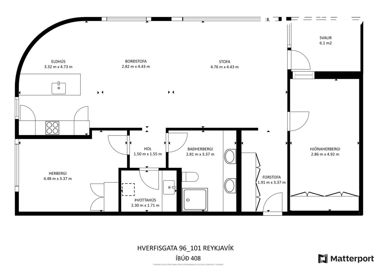
Forstofa, rúmgóð með parketi á gólfi og góðum fataskápum og með sérsniðnum bekk.
Eldhús, með fallegri innrétting með eyju, uppþvottavél, ísskápur og frystiskápur eru innfelld í innréttingu, ofn í innréttingu er í vinnuhæð. Steinn á borðum. Eyjan er rúmgóð og stæði fyrir allt að fjára stóla.
Stofa og borðstofa, mjög rúmgóð og björt með fallegum gluggum og útgengi út á svalir. Falleg lýsing og sérsniðnar gardínur fylgja með. Útgengt er út á góðar svalir út stofu.
Herbergi, er með parketi og góðum skápum, fallegur gluggi.
Hjónaherbergi, mjög rúmgott og bjart með góðum fataskápum.
Baðherbergi, með flísum á gólfi og hluta af veggjum, rúmgóð og glæsileg innrétting. Upphengt klósett, handklæðaofn og góð sturta.
Þvottarými er með góðri innréttingu, vaski og stæði fyrir þvottavél og þurrkara í vinnuhæð.
Geymsla er innaf stæði í bílageymslu.
Stæði í lokaðri bílageymslu fylgir, búið er að setja upp hleðslustöð.
Fallegar sérsniðnar gardínur fylgja með eiginni. Sameign:Hverfisgata 96 tilheyrir húsfélagi í Hverfisgötu 94-96. Þrír stigagangar eru í húsinu og er ein lyfta í hverjum stigagangi. Sameign hússins er öll mjög snyrtileg, anddyrið er flísalagt og stigagangur teppalagður. Mynddyrasímakerfi er við inngang í húsið og rafmagnsopnun er á hurðum í sameign. Sorpgeymsla er á jarðhæð hússins en geymslur íbúðanna eru í bílakjallara. Í kjallara er einnig sameiginleg æfingaraðstaða og hjólageymsla. Byggingarnar að Hverfisgötu eru byggðar U-laga og mynda þannig skjólgóðan garð á milli húsanna sem snýr í suður.
Upplýsingar um eignina veitir Guðrún Þórhalla Helgadóttir, löggiltur fasteignasali í síma 820-0490 eða á netfangið gudrun@remax.isGjöld sem kaupandi þarf að standa straum af vegna kaupanna:
1. Stimpilgjald af kaupsamningi - 0,8%(einstaklingar) 1.6% (lögaðilar) af heildarfasteignamati.
2. Þinglýsingargjald af kaupsamningi, veðskuldabréfi, mögulegu veðleyfi o.fl. - kr. 2.700 af hverju skjali.
3. Lántökugjald lánastofnunar - almennt 45-75 þús.kr. Nánari upplýsingar á heimasíðu lánastofnana.
4. Umsýslugjald til fasteignasölu kr. 69.900 mvsk.