Íbúð
Tvær hæðir með aukna lofthæð (2,75m-5,0m), gólfsíðir gluggar, gereftislausar hurðir og segullæsing. Free@home kerfi til stjórnunar á ljósi og hitakerfi.
Stofa
Samliggjandi stofur með parketgólfi, gólfsíðum gluggum til suðausturs og norðvesturs, útgengi á tvennar svalir með útsýni yfir Urriðavatn.
Eldhús
Parketlagt eldhús með kvartsteinsborðum, innbyggðum ísskáp, frysti og uppþvottavél, eyju og Siemens spanhelluborði.
Svefnherbergi
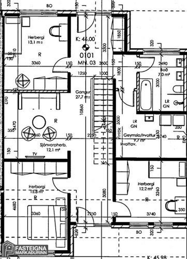
Fjögur svefnherbergi með parketgólfi og fataskápum á heilum vegg.
Baðherbergi
Baðherbergi með flísalögðum gólfum og veggjum, frístandandi baðkari, sturtum með gleri og blöndunartækjum.
Guest baðherbergi
Baðherbergi II með flísalögðri sturtu, spegli með lýsingu og handklæðaofni.
Þvottahús
Þvottaherbergi með vinnuborði, vaski og plássi fyrir vélar.
Geymsla
Geymsla í þvottaherbergi og innbyggðir fataskápar.
Bílskúr
25,6 fm bílskúr með rafhleðslustöð, mótor á hurð, heitu og köldu vatni.
Garður
80 fm viðarverönd með heitum og köldum potti og steyptum veggjum.
Svalir/þak
Tvennar svalir á efri hæð (13 fm og 10 fm) með útsýni yfir Urriðavatn og Snæfellsjökul.
Félagssvæði
Nálægt göngu- og hjólaleiðum við Urriðavatn, golfvelli Odds og verslunum.
Önnur herbergi
Sjónvarpsstofa og vinnurými á neðri hæð.
Tæki
Innbyggður ísskápur, frystir, uppþvottavél og spanhelluborð frá Siemens.