Íbúð
Tvö hæða raðhús með aukinni lofthæð, gólfsíðum gluggum og gereftislausum hurðum. Húsið hefur snjallhúsakerfi, innbyggða lýsingu og net í öllum herbergjum.
Stofa
Samliggjandi stofur með parketgólfi, gólfsíðum gluggum og útgengi á tvennar svalir. Frábært útsýni að Urriðavatni.
Eldhús
Parketlagt eldhús með kvartsteinsborðum, innbyggðum ísskáp, frysti, uppþvottavél og Siemens spanhelluborði. Eyja með skápaplássi og útdraganlegum rafmagnstenglum.
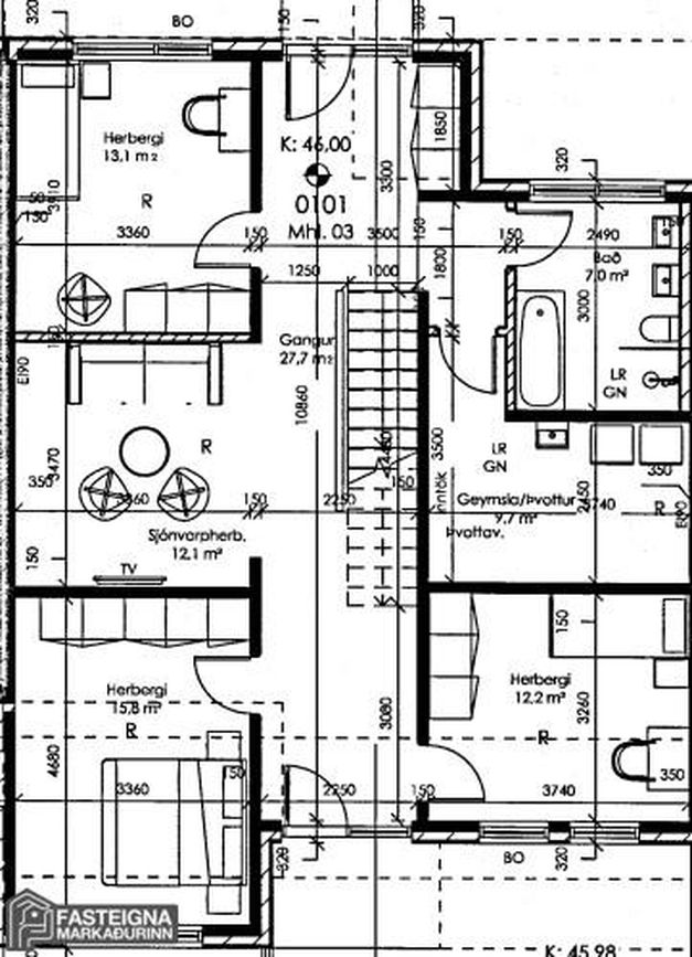
Svefnherbergi
Fjögur svefnherbergi með parketgólfi og fataskápum. Hjónaherbergi með fataskáp á heilum vegg.
Baðherbergi
Baðherbergi með baðkari, flísalegri sturtu og blöndunartæki. Annað baðherbergi með flísalegri sturtu og handklæðaofni.
Þvottahús
Þvottaherbergi með vinnuborði, vaski og plássi fyrir vélar.
Geymsla
Þvottaherbergi/geymsla með góðum innréttingum.
Bílskúr
25,6 fm bílskúr með rafhleðslustöð, mótorhurð, rennandi heitu/köldu vatni og nettengingu.
Svalir/þak
Tvennar svalir (13 fm og 10 fm) með útsýni að Urriðavatni. Stór viðarverönd með heitum/köldum potti.
Önnur herbergi
Sjónvarpsstofa og gangur/vinnurými með útgengi á verönd.
Tæki
Innbyggður ísskáp, frystir, uppþvottavél, spanhelluborð frá Siemens og vönduð eldhústæki.
Svæði
Nálægt Urriðavatni, golfvelli Odds, verslunum og skólum. Fallegar göngu- og hjólaleiðir í kringum vatnið og Heiðmörk.
Efni
Parketgólf, flísalög gólf/veggir í baðherbergjum, quartz eldhúsborð og lerkiverönd.