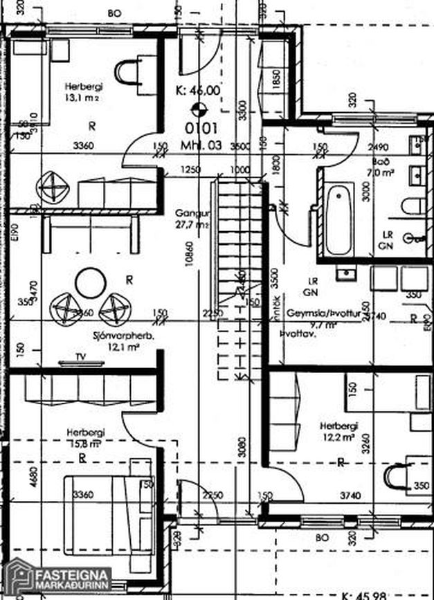
Íbúð
Tvö hæða raðhús með opnum rýmum, háum loftum, gólfsíðum gluggum og útsýni. Innifelur sjónvarpsstofu, vinnurými og stóra verönd með heitum/köldum potti.
Stofa
Samliggjandi stofur með parketgólfi, stórum gluggum til suðausturs og norðvesturs, útgengi á tvennar svalir með útsýni yfir Urriðavatn.
Eldhús
Parketlagt eldhús með innbyggðum ísskáp, frysti, uppþvottavél, kvartsteinsborðum, eyju og Siemens spanhellu.
Svefnherbergi
Fjögur svefnherbergi með parketgólfi og fataskápum. Hjónaherbergi með fataskáp á heilum vegg.
Baðherbergi
Baðherbergi með baðkari og flísalagðri sturtu. Annað baðherbergi með flísalagðri sturtu og handklæðaofni.
Þvottahús
Þvottaherbergi með plássi fyrir vélar, vinnuborði og vaski.
Geymsla
Geymsla í þvottaherbergi og innbyggðir fataskápar í herbergjum.
Bílskúr
25,6 fm bílskúr með mótorhurð, rafhleðslustöð, heitu/köldu vatni og nettengingu.
Svalir/þak
Tvennar svalir (13 fm og 10 fm) með útsýni. Stór verönd með heitum/köldum potti á neðri hæð.
Önnur herbergi
Sjónvarpsstofa og vinnurými með útgengi á verönd.
Tæki
Innbyggður ísskápur, frystir, uppþvottavél, spanhella og net í öllum herbergjum.
Svæði
Nálægt Urriðavatni, Heiðmörk, skólum, verslunum og golfvelli. Fallegar göngu- og hjólaleiðir.
Efni
Parketgólf, flísalögð baðherbergi, quartz eldhúsborð, stál/glas handrið.
Annað
Snjallheimakerfi, rafhleðslustöð í bílskúr og mótorhurð.