FJÁRFESTING FASTEIGNASALA, SÍMI 562-4250, ER MEÐ TIL SÖLU GLÆSILEGAR ÍBÚÐIR Í SKARÐSHLÍÐARHVERFINU Í HAFNARFIRÐI. Vandaðar 3ja - 4ra herbergja íbúðir að Skarðshlíð 1-7 í Hafnarfirði. Fjölbýlishús með sérinngangi. Glæsilegar innréttingar og fataskápar frá Brúnás.Skarðshlíð 1-7 eru ný 2ja hæða fjölbý... Sýna meira
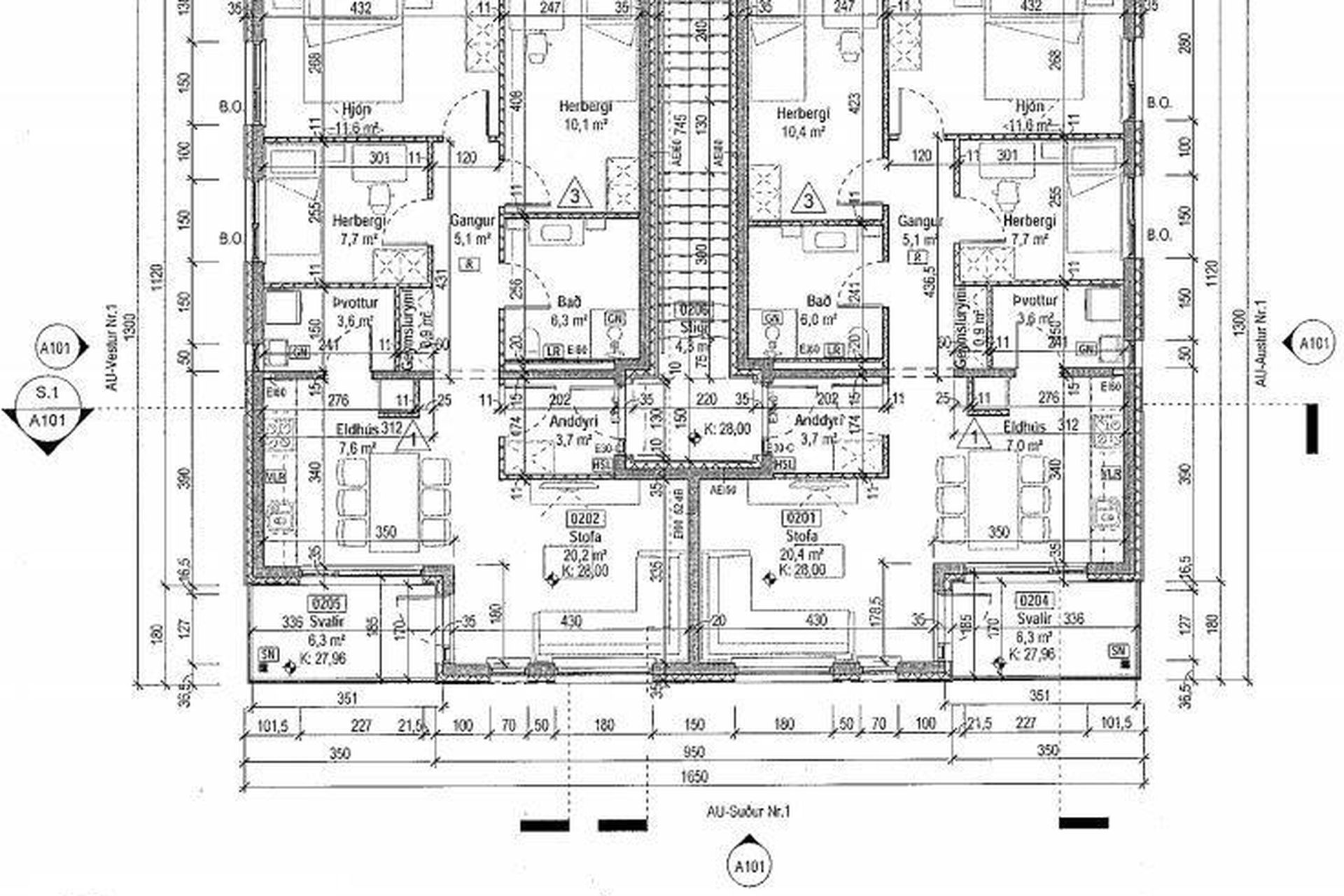
FJÁRFESTING FASTEIGNASALA, SÍMI 562-4250, ER MEÐ TIL SÖLU GLÆSILEGAR ÍBÚÐIR Í SKARÐSHLÍÐARHVERFINU Í HAFNARFIRÐI. Vandaðar 3ja - 4ra herbergja íbúðir að Skarðshlíð 1-7 í Hafnarfirði. Fjölbýlishús með sérinngangi. Glæsilegar innréttingar og fataskápar frá Brúnás.Skarðshlíð 1-7 eru ný 2ja hæða fjölbýlishús í Skarðshlíðarhverfinu í Hafnarfirði.Nánari upplýsingar hjá Óskari í síma 822-8750 Nánari lýsing:Um er að ræða 4ra herbergja íbúð, 94,4 fm. á 2. hæð, merkt 0202 að Skarðshlíð 1 í Hafnarfirði. Íbúðinni fylgja svalir og bílastæði á lóð.SKILALÝSING:STUÐLASKARÐ 1, 3, 5 OG 7 - SKILALÝSING1 Frágangur innanhúss1.1 Gólfefni Íbúðin sjálf verður afhent að mestu án gólfefna. Gólf á baðherbergi, þvottahúsi og anddyri eru flísalögð með 300*600 mm flísum. Flísar eru frá Álfaborg1.2 Veggir Útveggir íbúða eru ýmist einangraðir og pússaðir eða slípaðir og síðan sandsparslaðir. Léttir innveggir eru hlaðnir úr vikur- eða gjallplötum, grófpússaðir og sandsparslaðir. Eftir það eru allir veggir grunnaðir og málaðir með tveimur yfirferðum af plastmálningu, gljástig 7% eða sambærilegt. Veggir á snyrtingu eru flísalagðir með 300*600 mm flísum. Flísar eru frá Álfaborg1.3 Loft Steypt loft eru slípuð, sandspörsluð, grunnuð og máluð með tveimur yfirferðum af plastmálningu, gljástig 2 eða sambærilegt. Loft og veggir á baðherbergjum og þvottahúsum eru máluð með viðurkenndri votrýmismálningu.1.4 Gluggar og gler Gluggar eru ál-trégluggar, framleiðandi Börkur hf. Gler í öllum gluggum er tvöfalt hefðbundið verksmiðjuframleitt K-gler. Framleiðandi glers er Samverk og er ábyrgð glers samkvæmt þeirra skilmálum sem glerframleiðanda. Við kaup íbúðar yfirtekur kaupandi/kaupendur ábyrgð framleiðanda.1.5 Sólbekkir Sólbekkir, þar sem þeir koma eru úr plastlögðum spónaplötum.1.6 Hurðar Útihurðar eru ýmist með brunaþol E30C eða ekki, framleiðandi Börkur hf. Hurðarpumpur á E30C útihurðum eru af tegundinni GEZE TS3000V með sleða. Svalahurðar eru ál/tré með gleri í álfalsramma, framleiðandi Börkur. Innihurðar eru yfirfelldar, sléttar og sprautulakkaðar hvítar. Innihurðar eru frá Parka.1.7 Fataskápar og geymsluskápar Fataskápar eru í forstofu og svefnherbergjum. Innréttingar eru frá Brúnás. Innmatur er úr ljósgráum plasthúðuðum spónaplötum en sýnilegar hliðar og hurðar eru úr dökku melamin. Geymsluskápar á göngum eru ýmist hefðbundnir skápar eða með lausum hillum í hillukerfi. Hurðar geymsluskápa eru sprautulakkaðar hvítar.1.8 Eldhús Eldhúsinnrétting er að innan úr ljósgráum plasthúðuðum spónaplötum. Neðri skápar og háir skápar eru úr dökku melamin þ.e. hurðar og sýnilegar úthliðar. Yfirskápar eru sprautulakkaðir hvítir þ.e. hurðar og úthliðar. Yfir borðplötu að efri skápum er litað hvítt gler. Borðplötur eru 30 mm þykkar með 0,8 mm gegnheilu plasti. Ekki er ráðlagt að leggja heita hluti beint á plöturnar, nota skal hitaplatta eða sambærilegt.Vaskur er af gerðinni Intra Frame FR520 og blöndunartæki af gerðinni Mora Cera K7, hvoru tveggja frá Tengi. Í innréttingu er AEG spanhelluborð að gerðinni IKB64431XB, AEG veggofn með blæstri af gerðinni BCK456220M, AEG veggháfur af gerðinni F80 BK 60CM S og innbyggð AEG uppþvottavél af gerðinni FSE63607P. Öll tæki eru frá Bræðrunum Ormsson.1.9 Baðherbergi Á baðherbergi er gólf flísalagt ásamt sturtu og veggir flísalagðir að lofti. Innrétting frá Brúnás er að innan úr ljósgráum plasthúðuðum spónaplötum en sýnilegar hliðar og hurðar eru sprautulakkaðar hvítar. Borðplötur eru úr hvítu plasti. Spegill er yfir vaski. Handlaug er af gerðinni Alape EB.R585H, blöndunartæki af gerðinni Mora Cera B5, handklæðaofn, innbyggður vatnskassi og upphengt Geberit Selnova salerni með hæglokandi setu og Mora MMIX blöndunartæki í sturtu. Öll hreinlætistæki verða frá Tengi. Gler er ýmist fyrir allri sturtunni eða með annarri hlið hennar. Tvö niðurföll eru1.10 Þvottahús Gólf í þvottahúsi er flísalagt. Innrétting frá Brúnás er að innan úr ljósgráum plasthúðuðum spónaplötum og sýnilegar hliðar og hurðir úr ljósgráu melamin. Borðplata er harðplastlögð með plastkanti. Í borðplötu er vaskur af gerðinni Intra K400 og blöndunartæki af gerðinni FMMattsson ECO. Niðurfall er í gólfi og tengingar fyrir þvottavél og þurrkara. Gert er ráð fyrir barkalausum þurrkara.1.11 Sérgeymsla Allt geymslurými er innan hverrar íbúðar.1.12 Hitakerfi Íbúðirnar eru upphitaðar með hefðbundinni ofnalögn.1.13 Loftræsti-, vatns- og þrifalagnir Loftræsti-, vatns, - og þrifalagnir fylgja frágengnar skv. teikningum. Forhitari er á heitu neysluvatni.1.14 Rafmagns- og sjónvarpslagnir Rafmagns- og sjónvarpslögn fylgja frágengnir og hefðbundin dyrabjalla er í hverri íbúð. Loftnets- og tölvutengill verður í alrými. Tölvutenglar verða í herbergjum. Ljósleiðari verður í húsinu. Innfelld lýsing með dimmum er í hluta af alrými þ.e. stofu og eldhúsi þar sem það á við. Fer eftir gerð lofta í íbúðum. 2. Frágangur sameignar 2.1 Hjóla- og vagnageymslur Steyptir innveggir í hjóla- og vagnageymslu eru hreinsaðir slípaðir og málaðir. Gólf eru slípuð og lögð epoxy.2.2 Sorp Sameiginleg hellulögð sorpsvæði eru fyrir hver tvö hús. Á hverju sorpsvæði eru 6 stk steypt sorptunnuskýli frá BM Vallá með timburklæddum lokunum þ.e. hurðum að framan og hlera að ofan. Pumpa er á hlerum og seglar í keðju sem festast á gámalokin og auðvelda opnun sorpgáma. Í hvert skýli er gert ráð fyrir að komi sorpgámur á hjólum, hver um 660 l að stærð.3. Frágangur utanhúss3.1 Klæðning og einangrun Útveggir eru einangraðir ýmist að utan- eða innanverðu eftir því sem við á. Hús 1 er timburklætt að utan að mestu og álklætt en hús 3, 5 og 7 eru múrfiltuð og máluð að utan í mismunandi litum.3.2 Létt þak Burðarvirki í þökum eru eldvarðir stálbitar og styrkleikaflokkaðar timbursperrur. Borðaklæðning á sperrur, ásoðin þakpappi, timburlektur og bárujárn. Öndun inn á þakið er þvert á þakflötinn. Einangrun er hefðbundin þakull komið fyrir upp á milli sperra, rakavarnarlag þar undir, afréttuð blikkgrind sem ýmist fylgir þakhalla eða er tekin lárétt og þar á gifsklæðning.3.3 Svalir Svalagólf eru forsteypt, slípuð eða með múrfiltun eftir því sem við á. Svalahandrið eru stáli og klædd með álplötum. Útiljós og rafmagnstengill er á svölum. Svalaloft eru slípuð, grunnuð og máluð. Yfir svölum er niðurtekin grind klædd með timburklæðningu.3.4 Svalalokun Ekki er gert ráð fyrir möguleika á svalalokun.3.5 Gluggar Gluggar eru álklæddir timburgluggar með opnanlegum gluggafögum. Svalahurðar og útihurðar eru að fullu frágengnar með þéttiköntum og viðeigandi glergerðum þar sem það á við. Það á einnig við um bréfalúgur en sumar af útihurðunum eru með E30C fylgja frágengin, svo og allar úti- og svalahurðir að fullu frágengnar með þéttiköntum.3.6 Lóð Lóð verður fullfrágenginn samkvæmt leiðbeinandi teikningu landslagsarkitekts. Stéttar næst húsi verða hellulagðar og snjóbræðslulögn í gangstígum framan við húsin samkvæmt teikningu. Bílastæði eru malbikuð og máluð. Gert er ráð fyrir að hægt verði að koma fyrir rafmagnshleðslu í bílastæði. Bílastæði eru sameign allra í þeim matshlutum sem þau tilheyra.4. Hönnuðir Arkitekt: Guðmundur Gunnlaugsson, Archus slf. Verkfræðihönnun: VEKTOR - hönnun & ráðgjöf Raflagnahönnun: Svanbjörn Einarsson, Tesla ehf. Lóðahönnun: Inga Rut Gylfadóttir, Landslag ehf.5. Byggingaraðili Byggingarfélag Gylfa og Gunnars hf., www.bygg.is