Íbúð
Fjögurra herbergja íbúð (101,2 m² samtals: 92,6 m² íbúð + 8,6 m² geymsla) staðsett innst í lokuðum botnlanga í rólegu hverfi í Fossvogi. Göngufæri í skóla, leikskóla, íþróttasvæði, verslunarmiðstöðvar (Kringlan, Skeifan) og þjónustu (Læknavaktin Austurver). Sérgeymsla íbúðarinnar á jarðhæð (8,6 m²) og sameiginleg vagna- og hjólageymsla.
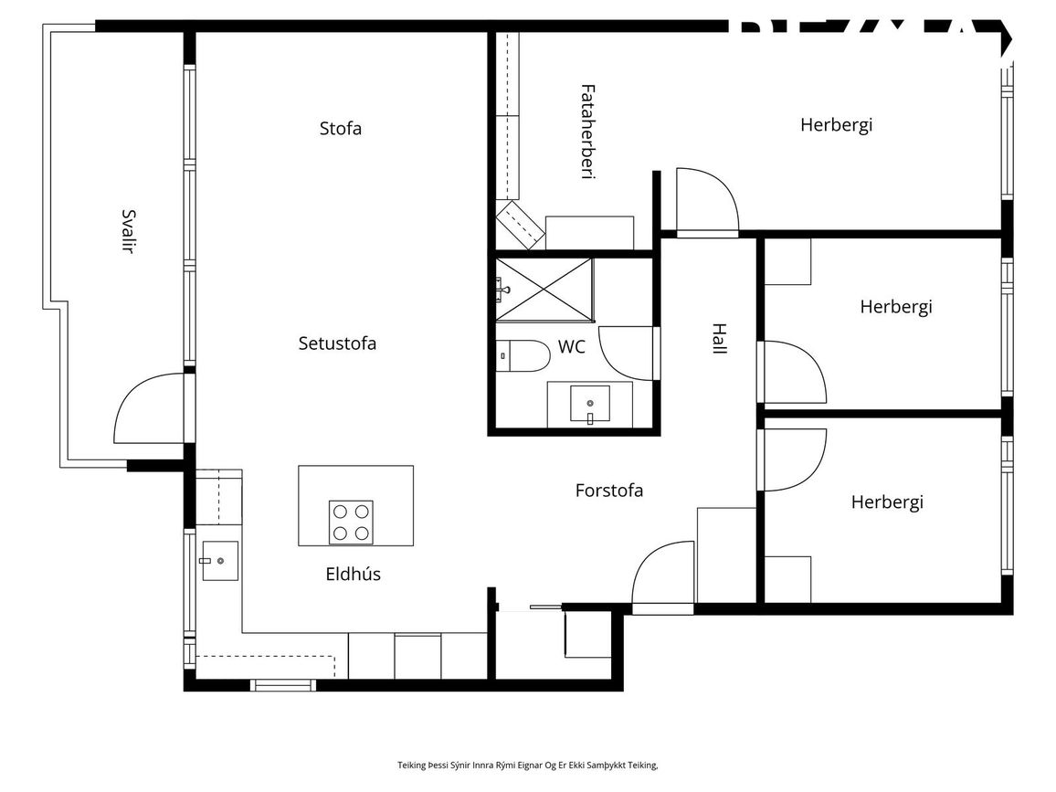
Stofa
Opin og björt stofa samliggjandi borðstofu. Partket á gólfi, stórir gluggar með sólvarnargleri. Opnar út á svalir.
Eldhús
Opið eldhús með eyju, granít borðplötu, vönduðu helluborði og viftu. Gott skápapláss, parket á gólfum. Uppþvottavél fylgir. Í sameiginlegu rými með stofu/borðstofu.
Svefnherbergi
Hjónaherbergi: Mjög rúmgott með partketi á gólfi og góðu fataherbergi/króki. Tvö barnaherbergi: Parketlögð með fataskápi.
Baðherbergi
Flísalagt baðherbergi með sturtu ("walk in" sturta), upphengdu salerni, handlaug, góðu skápaplássi, nýjum handklæðaofni, nýrri rafmagnsviftu í lofttúðu, nýrri innrétting og nýju blöndunartæki.
Þvottahús
Þvottahús innan íbúðar. Sérmerktur tengill/stæði fyrir þvottavél/þurrkara í þvottahúsi í sameign.
Geymsla
Geymsla í forstofu (fataskápur). Sérgeymsla á jarðhæð í sameign (8,6 m²). Sameiginleg vagna- og hjólageymsla.
Svalir/þak
Mjög rúmgóðar svalir út frá stofu með glæsilegu útsýni til suðurs. Ný svalarhurð og sólvarnargler (2025).
Félagssvæði
Sameiginleg vagna- og hjólageymsla.
Önnur herbergi
Fataherbergi/króki frá hjónaherbergi.
Tæki
Uppþvottavél fylgir í eldhúsi. Tengill/stæði fyrir þvottavél/þurrkara í sameignarþvottahúsi.
Svæði
Rólegt og eftirsóknarverð hverfi í Fossvogi innst í lokuðum botnlanga. Fallegar gönguleiðir í allar áttir. Stutt í skóla, leikskóla, íþróttasvæði, verslunarmiðstöðvar (Kringlan, Skeifan), Læknavaktina Austurver og alla helstu þjónustu.