Falleg og vel skipulögð 4ra herbergja íbúð á 2. hæð með sérinngangi af svölum við Heiðargerði 5 í Vogum við Vatnsleysuströnd.
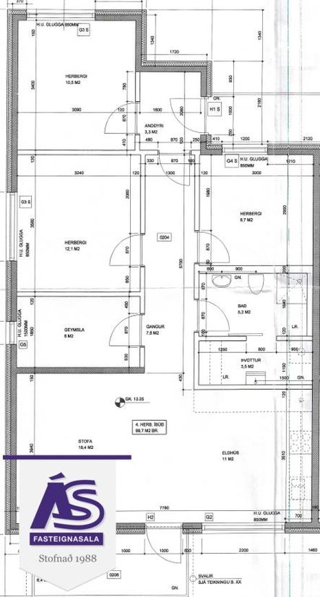
Eignin er alls 99,7 fm og eru allir fm innan eignar skv. Fasteignaskrá.
Eignin er laus við kaupsamning !Nánari lýsing: Sérinngangur af svölumForstofa með skáp.
Forstofu herbergi með parket á gólfi og skáp.
Hjónaherbergi rúmgott með góðum fataskápum.
Barnaherbergi með skáp.
Geymsla með opnanlegum glugga (mögulegt að nýta sem lítið herbergi)
Eldhús og stofa í björtu alrými með útgengt út á góðar suðursvalir.
Eldhús með grárri innréttingu, stæði fyrir uppþvottavél og tvöfaldan ísskáp. Vínkælir og ofn í vinnuhæð.
Spanhelluborð á eyju sem er mjög stór og mögulegt er að sitja við hana.
Baðherbergi með baðkari, vaskinnrétting og nettur skápur.
Þvottahús er innaf baðherbergi með skáp, vask og stæði fyrir þvottavél og þurrkara.
Sameiginleg
hjóla-og vagnageymsla er á jarðhæð.
Næg bílastæði eru í sameign
Gólfefni íbúðar eru parket en flísar á votrými.
*Eldhúsinnrétting nýleg frá IKEA, seljandi gengur frá henni og lokar. Plast er ennþá á hluta innréttingar en litur hennar er grár.
Lítið fjölbýli á góðum stað fremst í Vogunum þar sem stutt er í helstu þjónustu. Sveitafélagið Vogar eru ört stækkandi sveitafélag miðsvæðis á Reykjanesinu.
Aðeins er 17 mínútna akstur til Hafnarfjarðar og 12 mínútur til Reykjanesbæjar. Á svæðinu eru grunn-og leikskóli, sundlaug, líkamsrækt og útivistarmöguleikarnir eru óteljandi.Nánari upplýsingar veitir Svala Haraldsdóttir löggiltur fasteignasali í s. 820-9699 / svala@as.is
Ás fasteignasala er rótgróið fyrirtæki sem hefur veitt alla almenna þjónustu í fasteignaviðskiptum frá árinu 1988.
www.facebook.com/asfasteignasala
www.instagram.com/as_fasteignasala
www.as.is