Jason Kristinn Ólafsson, sími 7751515 og Betri Stofan kynna:
Víðimelur 60, einstaklega björt 103,4 fm sérhæð á 2. hæð í þríbýli við friðsælan botnlanga í Vesturbænum. Húsið stendur á upphækkuðum grasstalli á rúmgóðri lóð. Það er eitt af þessum fallegu húsum Einars Sveinssonar sem teiknaði meðal annars Melaskólann og aðrar perlur sem einkenna Vesturbæinn. Vandað var til verksins þegar húsið var byggt árið 1938 og er útlit þess vel varðveitt með fallegri steinun.
Árið 2020 var eignin (sem er skráð 103,4 fm) tekin í gegn og endurnýjuð í hlýlegum anda húsins. Einstök lagni Einars við niðurröðun glugga á veggflöt gæðir hæðina birtu sem flæðir inn um nýuppgerða glugga. Fagurfræði einfaldleika og nytsemi var höfð að leiðarljósi við endurskipulagningu eldhúsins með næmni fyrir stærðarhlutföllum og áherslu á samveru fjölskyldunnar. Birta flæðir milli eldhúss og dagstofu þaðan sem útgengt er á suðursvalir. Eignin er hönnuð með sveigjanleika í huga og er í dag nýtt sem fimm herbergja eign. Nýtt samfellt parket liggur undir veggjum, sem auðveldar breytingar á skipulagi eftir þörfum. Þessi sveigjanlega hönnun gerir eignina vel til þess fallna að mæta ólíkum nýtingarmöguleikum sem henta nýjum eigendum eða leigutökum. Í kjallara er herbergi með glugga, sem er í dag nýtt sem skrifstofa. Auk þess er geymsla í kjallara. Og yfir allri 2. hæðinni er rúmgott geymsluloft sem er ekki hluti af skráðum fermetrum eignarinnar en hefur verið gert aðgengilegt með fellistiga.
Í stuttu göngufæri er allt það sem gæðir Vesturbæinn lífi, svo sem Sundlaug Vesturbæjar, Melabúðin, Kaffihús Vesturbæjar, Ísbúð Vesturbæjar, tvö bakarí, Dansverkstæðið, Do Re Mi, Meistaravellir KR og fjölbreytt úrval skóla – allt frá leikskólum til Háskóla Íslands. Í nágrenninu eru einnig fjölmargir leikvellir og fallegar gönguleiðir við Ægisíðu. Einnig er gott göngufæri í gamla Vesturbæinn og Kvosina. Strætósamgöngur eru mjög góðar, í um 100 m fjarlægð eru leiðir 13 og 15 og leiðir 1, 2, 3, 6, 11 og 12 í stuttu göngufæri.
Nánari lýsing eignar:
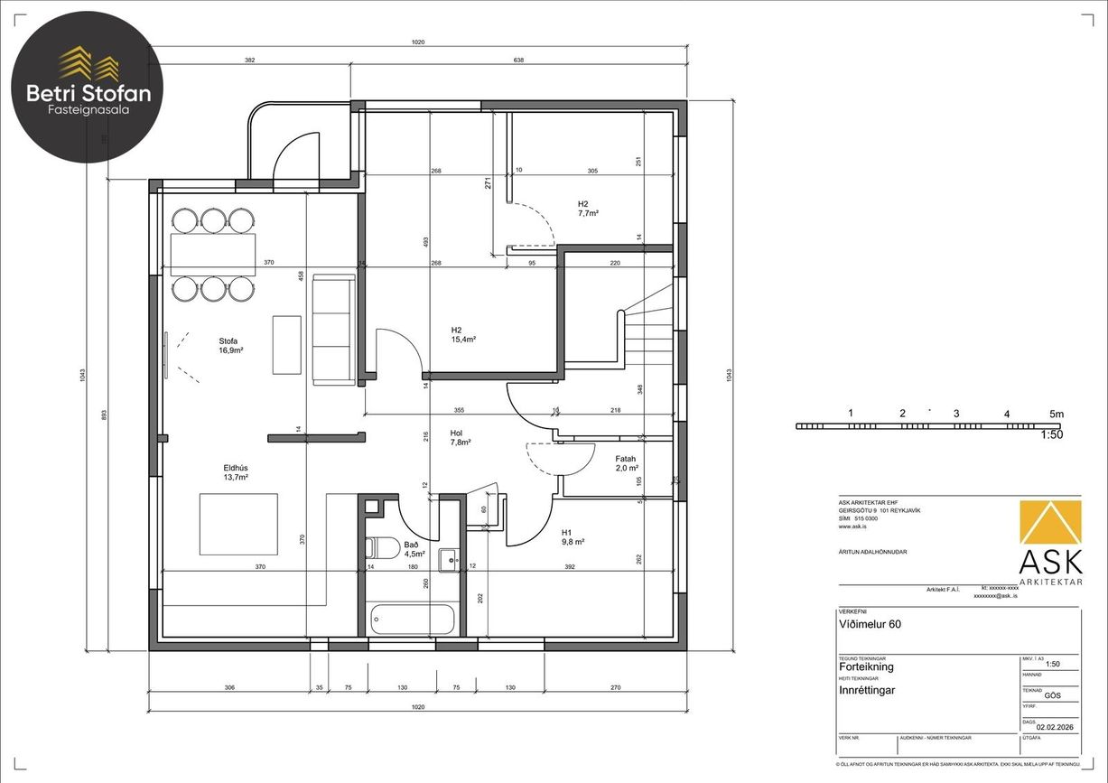
Á 2. hæð
Forstofa: Af stigapalli framan við íbúð er gengið inn í rúmgóða forstofu með innfelldum fataskáp. Þaðan er aðgengi að öllum rýmum á hæðinni.
Eldhús: Virkilega skemmtilegt og bjart eldhús, opið inn í dagstofu og forstofu. Stór morgunsólargluggi ásamt birtu frá dagstofu. Eldhúsið er hannað í kringum samverueyju sem hægt er að sitja við. Borðplötur eru úr akrýlsteini og sérhannaðar hillur yfir vinnuaðstöðu eru með innbyggðri, stýranlegri lýsingu. Vatnslagnir eru nýjar með heitu vatni sem er upphitað kaldavatn.
Dagstofa: Fallegur horngluggi til suðurs sem fangar dagsbirtu frá morgni til kvölds. Innangengt úr forstofu og eldhúsi. Útgengt er á suðursvalir (skráðar 3 fm).
Herbergi I: Gengið er í herbergið úr forstofu. Tveir gluggar. Nú nýtt sem svefnherbergi. Um 10 fm.
Herbergi II: Gengið er í herbergið úr forstofu. Fallegur horngluggi til suðurs. Nú nýtt sem svefnherbergi. Um 15 fm.
Herbergi III: Gengið er í herbergið úr herbergi II. Einn gluggi. Nú nýtt sem svefnherbergi, en hentar einnig vel sem skrifstofa eða barnaherbergi. Um 8 fm.
Baðherbergi: Flísalagt baðherbergi með tvöföldum vaski, salerni og baðkari með sturtu. Nýjar vatnslagnir og heitavatnið upphitað kaldavatn. Vel skipulögð innrétting. Gluggi er á baðherberginu, auk loftunarviftu og handklæðaofns.
Fataherbergi: Úr forstofu er innangengt fataherbergi, innréttað með skúffum, hillum og fataslám. Um 2 fm.
Geymsluloft: Rúmgóð og snyrtileg geymsla er að grunnfleti ca. 90 fm yfir allri hæðinni, aðgengileg með fellistiga. Geymslan er ekki talin með í skráðum fermetrum eignarinnar.
Í kjallara með aðgengi úr sameign:
Herbergi IV: Herbergi í kjallara með glugga. Parket lagt og rýmið málað árið 2020. Nú nýtt sem skrifstofa, en hentar einnig vel sem unglingaherbergi. Aðgengi er að salernisrými sameignar. Skráð stærð er 8,5 fm.
Geymsla: Geymsla með hillum og glugga. Skráð stærð er 3,3 fm.
Sameign:
Þvottahús, sameiginleg geymsla og salernisrými sem þarfnast standsetningar.
Jason Kristinn Ólafsson í síma 775 1515 netfang: jason@betristofan.is löggiltur fasteignasali.
Gjöld sem kaupandi þarf að standa straum af ef að kaupum verður:
1. Stimpilgjald af fasteignamati fasteignar er 0.8%, en 0,4% fyrir fyrstu kaup og 1,6% fyrir lögaðila.
2. Þinglýsingargjald: kaupsamningi, skuldabréfi, veðleyfi, afsali o.s.frv. er kr. 3.800 af hverju skjali.
3. Lántökukostnaður samkvæmt verðskrá viðkomandi lánastofnunar.
4. Umsýslugjald til fasteignasölu skv. gjaldskrá.
Skoðunarskylda kaupanda:
Í lögum um fasteignakaup nr. 40/2002 er kveðið á um ríka skoðunarskyldu kaupenda á fasteignum. Betri Stofan fasteignasala bendir væntanlegum kaupendum á að kynna sér vel ástand fasteigna við skoðun og fyrir tilboðsgerð og ef þurfa þykir að leita til sérfræðinga um nánari ástandsskoðun.