Sigríður Rut, lgfs. í gsm. 699-4610 og Fasteignasalan TORG kynna: Fallega, bjarta og vel skipulagða, 4ra herbergja íbúð í litlu og snyrtilegu 6 íbúða fjölbýli, sem staðsett er í suðurhlíðum Úlfarsárdals þar sem stutt er í náttúru, útivistarsvæði, sundlaug og helstu þjónustu.
Íbúðinni fylgir rúmgott stæði í bílskýli með sér innkeyrslu . Íbúðin er skráð samkvæmt Þjóðskrá samtals 132,1 fm með sér geymslunni sem er skráð 11,6 fm með góðum glugga. Á gólfum eru fallegar flísar sem gefa rýmunum vandað og hlýlegt yfirbragð. Fallegar og vandaðar innréttingar prýða eldhús og baðherbergi og skapa nútímalegt og stílhreint heildarútlit.
Úr stofu er gengið út á rúmgóðan pall, sem býður upp á frábæra aðstöðu til útiveru og afslöppunar. Umhverfið er einstaklega gott fyrir útivistarfólk, með náttúru og gönguleiðum í næsta nágrenni.
Eignin er staðsett í rólegu og fjölskylduvænu hverfi þar sem leikskólar, skólar og þjónusta eru í þægilegu göngufæri. Allar nánari veitir Sigríður Rut, Stanleysdóttir löggiltur fasteignasali í gsm. 699-4610 eða siggarut@fstorg.is
Lítið fjölbýli – aðeins 6 eignir
Allir íverustaðir á einni hæð
Óhindrað útsýni
Hellulögð suðurverönd og pallur
Flísar á gólfum
Sér þvottahús innan íbúðar
Stæði í bílskýli með hita og rafmagni
Róleg botngata og nálægð við náttúruSkipulag eignarinnar
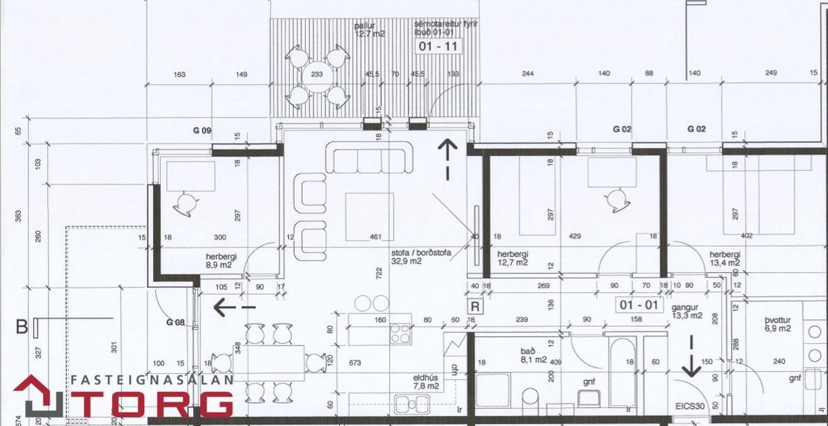
Eignin skiptist í dag: forstofu, gang, baðherbergi, þvottahús, eldhús, stofu/borðstofu, 2 svefnherbergi ( en sýnd 3. svefnherbergi á teikningu ), rúmgóða geymslu í sameign og bílskýli.
Gengið er inn af plani á götuhæð og niður eina hæð.
Forstofa: Flísalögð, með fataskápum.
Hol: Flísalagt. Tengir saman alrými annars vegar og svefnrými og baðherbergi hins vegar.
Eldhús / borðstofa / stofa: Bjart og opið alrými með stórum gluggum og fallegu útsýni.
Eldhús með hvítri L-laga innréttingu, góðri eldhúseyju með granítborðplötu, gashellum og vönduðum tækjum.
Stofa er flísalögð með útgengi bæði út á hellulagða suðurverönd og út á pall.
Svefnherbergi: Tvö rúmgóð svefnherbergi í dag, annað með fataskápum á heilum vegg. Samkvæmt teikningum er mögulegt að útbúa þriðja svefnherbergið í hluta stofurýmis.
Baðherbergi: Rúmgott og flísalagt. Hvít vaskinnrétting, upphengt salerni, sturta og baðkar.
Þvottahús: Rúmgott með innréttingu fyrir tækin og gott skápapláss, vaskur, flísar á gólfi.
Geymsla: Sér geymsla í sameign með hornglugga.
Bílageymsla: Sér merkt stæði í lokaðri bílageymslu, hleðsla fyrir rafmagnsbíla.
Virkilega falleg eign á frábærum stað í Úlfarsárdal þar sem stutt er í grunnskóla, leikskóla, frístundaheimili og menningarmiðstöð sem hefur að geyma almenningsbókasafn, innisundlaug og íþróttahús ásamt útisundlaug. Á svæðinu er knattspyrnuvöllur þar sem félagið Fram er með æfingaaðstöðu og áhorfendastúku. Stutt í fallega náttúru og eina af útivistaperlum höfuðborgarsvæðisins. Um skoðunar- og aðgæsluskyldu:
Í lögum um fasteignakaup nr. 40/2002 er kveðið á um ríka skoðunarskyldu kaupenda á fasteignum. Fasteignasalan TORG bendir væntanlegum kaupendum á að kynna sér vel ástand fasteigna við skoðun og fyrir tilboðsgerð og ef þurfa þykir að leita til sérfræðinga um nánari ástandsskoðun.
Forsendur söluyfirlits:
Söluyfirlit er samið af fasteignasala í samræmi við ákvæði laga nr. 70/2015. Þær upplýsingar sem fram koma í söluyfirliti þessu eru sóttar í opinberar skrár, til seljanda sjálfs og eftir atvikum til húsfélags. Seljandi veitir upplýsingar um eign í samræmi við upplýsingaskyldu laga um fasteignakaup nr. 40/2002, og ábyrgist að þær séu réttar. Fasteignasali sannreynir að þær upplýsingar séu réttar með sjónskoðun á eigninni. Fasteignasali getur ekki fullyrt um ástand og eiginleika þeirra hluta fasteigna sem ekki eru aðgengilegir og sjást ekki berum augum, t.d. lagnir, dren, skólp og þak. Það sama á við um staðhæfingar seljanda eignar um viðhald og einstaka framkvæmdir.
Gjöld sem kaupandi þarf að standa straum af vegna kaupanna:
Stimpilgjald af kaupsamningi sem er hlutfall af fasteignamati. Stimpilgjald er 0,8% fyrir einstaklinga (0,4% við fyrstu kaup) og 1,6% fyrir lögaðila.
Þinglýsingargjald af kaupsamningi, veðskuldabréfum, veðleyfum o.fl. Þinglýsingargjald er kr. 3.800- fyrir hvert skjal.
Lántökugjald lánastofnunar. Um lántökugjald vísast í gjaldskrá viðkomandi lánveitanda.
Umsýsluþóknun fasteignasölu skv. gjaldskrá.
Ef um nýbyggingu er að ræða greiðir kaupandi skipulagsgjald, 0,3% af brunabótamáti, þegar það er lagt á.