RE/MAX og Guðrún Þórhalla, löggiltur fasteignasali kynna í sölu, glæsilega og rúmgóða 2ja herbergja 83,3 fm á jarðhæð með sér inngangi í góðu fjölbýlishúsi við Tröllakór 14 í Kópavogi. Íbúðin skiptist í forstofu m/forstofuskáp, aðalrými með rúmgóðu eldhúsi og útgengi út á góðar suður svalir, eitt svefnherbegi(hægt að bæta við öðru), baðherbergi og sér þvottarými. Eignin er nýlega uppgerð með nýju baðherbergi, eldhúsi, gólfefnum og nýlega máluð. Falleg eign sem hægt er að mæla með. Í sameign fylgir aðgengi að hjóla og vagnageymslu. Stutt í leik- og grunnskóla sem og íþróttasvæði HK.
Allar nánari upplýsingar veitir Guðrún Þórhalla Helgadóttir í síma 820-0490 eða á netfangið gudrun@remax.is.
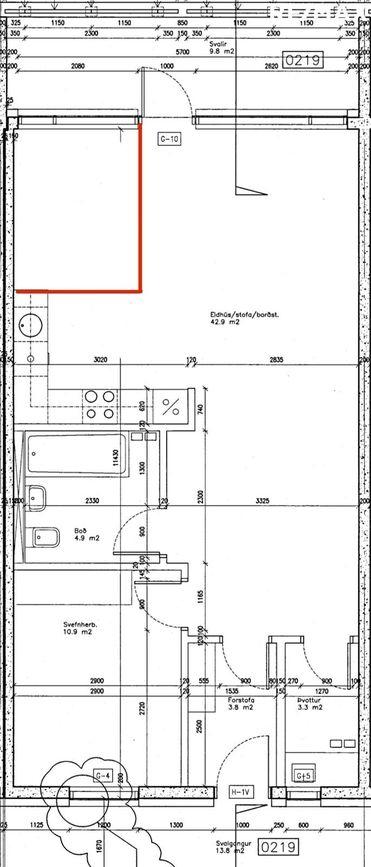
Frekari upplýsingar um eignina:Forstofa, flísar á gólfi og fataskáp.
Hjónaherbergi með parketi og góðum skápum.
Svefnherbergi með parket á gólfi og fataskáp.
Baðherbergi er flísalagt í hólf og gólf, upphengt salerni, góð innrétting og sturta.
Samliggjandi stofa, borðstofa og eldhús. Stórt og bjart rými með parketi á gólfi. Úr stofu er útgengt út á stórar svalir til suðurs.
Eldhúsið er með nýlegri og fallegri innrétting, nýjum eldhús- og blöndunartækjum. Gott vinnu og skápapláss.
Ath. hægt væri að stúka af úr stofu - herbergi/skrifstofu með glugga - sjá mynd. Sér geymsla er í sameign ásamt sér bílastæði í bílakjallara.
Falleg og björt íbúð á jarðhæð, sérinngangur á góðum stað í Kórahverfinu. Íbúðin er mjög vel staðsett, en stutt er í leikskóla, Hörðuvallaskóla og íþróttaaðstöðuna í Kórnum. Þá eru verslanir Krónunnar og Nettó jafnframt stutt frá.Allar frekari upplýsingar veitir Guðrún Þórhalla, löggiltur fasteignasali í síma 820-0490 eða á netfangið gudrun@remax.is Gjöld sem kaupandi þarf að standa straum af vegna kaupanna: 1. Stimpilgjald af kaupsamningi - 0,8%(einstaklingar) 1.6% (lögaðilar) af heildarfasteignamati.
2. Þinglýsingargjald af kaupsamningi, veðskuldabréfi, mögulegu veðleyfi o.fl. - kr. 3.800 af hverju skjali.
3. Lántökugjald lánastofnunar - almennt 45-75 þús.kr. Nánari upplýsingar á heimasíðu lánastofnana.
4. Umsýslugjald til fasteignasölu kr. 69.900 mvsk.