Valmynd
Aurbjörg
Plús
Við erum að hlaða inn upplýsingum um fasteignina
Eignir & skuldir
Lánskjaravakt
Endurfjármögnun
Húsnæðislánareiknivél
Bílalánareiknivél
Skammtímalánareiknivél
Berðu saman öll húsnæðislán
Tekjur & gjöld
Dagleg fjármál
Yfirlit fjármála
Rafmagn
Bifreiðaskoðun
Bensín og dísel
Kreditkort
Bankareikningar
Fjarskipti
Eignavakt
Eignavakt
Verðmat
Auglýsingasaga
Hlutdeildaláns eignir
Vöktun
Greiðslumat
Lífeyrismál
Lífeyriskerfið á Íslandi
Samtrygging
Séreign
Lífeyrisreiknivél
Lífeyrisréttindi
Aurbjörg finnur tækifæri í fjármálum heimilisins
Láttu Aurbjörgu standa vaktina og hjálpa þér að taka betri ákvarðanir í fjármálum.
Komdu í
Plús
Lesa meira
Markmið Aurbjargar er að auka fjármálalæsi, auka gagnsæi og aðstoða þig við að taka upplýstari og betri ákvarðanir í fjármálum.
Um Aurbjörgu
Skilmálar Aurbjargar
Lagalegur fyrirvari
Hafa samband
Gjafabréf
Verð
Fyrirtækjapakki
Bloggið
Persónuverndarstefna
Stillingar á vefkökum
Ertu með ábendingu?
© 2017-2026 • Aurbjörg ehf. • 430518-1430 • Lágmúla 9 • 108 Reykjavík
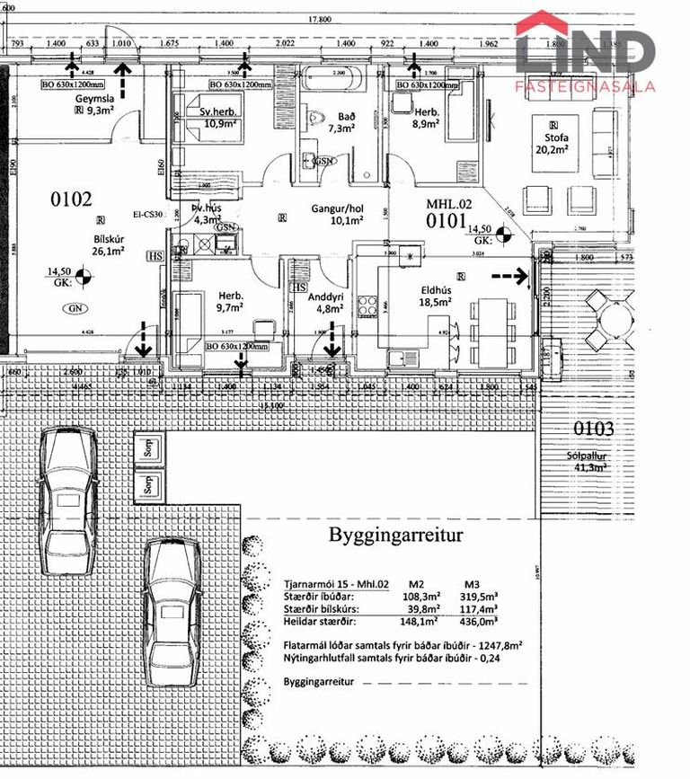
Tjarnarmói 15 - 0101, 800 Sveitarfélagið Árborg skráð 07.03.2026
Valmynd
Aurbjörg
Plús
Tjarnarmói 15 -
0101
, 800 Sveitarfélagið Árborg
Lýsing
Verð: Ekki tilgreint. Stærð: 148,1 m2. Lykilatriði: Opinn grundvöllur, nýlegar endurbætur, bílskúr og garður.
Þessi lýsing er búin til af gervigreind Aurbjargar
•
Skoða upprunalega
Eiginleikar
Íbúð
Timburhús með lituðu járni að utan. Innri húsnæði: forstofa, baðherbergi, þvottahús, tvö svefnherbergi, stofa og eldhús.
Stofa
Stofa með parketi á gólfi, opnu rými tengt eldhúsi.
Eldhús
Nútímalegt eldhús með stórri eyju, innbyggðum ísskáp með frysti, uppþvottavél og nýjum blöndunartækjum. Nýir frontar og borðplötur.
Svefnherbergi
Tvö svefnherbergi með parketi á gólfi og fataskápum.
Baðherbergi
Flísalagt baðherbergi með walk-in sturtu, frístandandi baðkari og handklæðaofn.
Þvottahús
Þvottahús með snyrtilegri innréttingu og plássi fyrir tæki.
Geymsla
Bílskúr með epoxy gólfi og sérsniðnum fataskápum. Útigeymsla í garði.
Bílskúr
Bílskúr (39,8 m2) með epoxy gólfi og opnum fataskápum.
Garður
Gróinn og fallegur garður með útigeymslu.
Önnur herbergi
Aukaherbergi í hluta af bílskúr.
Tæki
Innbyggður ísskápur með frysti, uppþvottavél, bakaraofn og blöndunartæki.
Svæði
Nálægt skóla, leikskóla, matvörubúð og almennri þjónustu. Rólegt hverfi.
Efni
Parket gólf í stofu, svefnherbergjum og forstofu. Flísalagt baðherbergi.
Annað
Heitur pottur á verönd.
64 myndir
Húsnæðislán
Kíktu á dæmið með Aurbjörgu
Kaupverð
kr.
Þín útborgun
kr.
Lánstími
ár
Ráðstöfunartekjur
kr.
Eignir & skuldir
Lánskjaravakt
Endurfjármögnun
Húsnæðislánareiknivél
Bílalánareiknivél
Skammtímalánareiknivél
Berðu saman öll húsnæðislán
Tekjur & gjöld
Dagleg fjármál
Yfirlit fjármála
Rafmagn
Bifreiðaskoðun
Bensín og dísel
Kreditkort
Bankareikningar
Fjarskipti
Eignavakt
Eignavakt
Verðmat
Auglýsingasaga
Hlutdeildaláns eignir
Vöktun
Greiðslumat
Lífeyrismál
Lífeyriskerfið á Íslandi
Samtrygging
Séreign
Lífeyrisreiknivél
Lífeyrisréttindi
Aurbjörg finnur tækifæri í fjármálum heimilisins
Láttu Aurbjörgu standa vaktina og hjálpa þér að taka betri ákvarðanir í fjármálum.
Markmið Aurbjargar er að auka fjármálalæsi, auka gagnsæi og aðstoða þig við að taka upplýstari og betri ákvarðanir í fjármálum.
Um Aurbjörgu
Skilmálar Aurbjargar
Lagalegur fyrirvari
Hafa samband
Gjafabréf
Verð
Fyrirtækjapakki
Bloggið
Persónuverndarstefna
Stillingar á vefkökum
Ertu með ábendingu?
© 2017-2026 • Aurbjörg ehf. • 430518-1430 • Lágmúla 9 • 108 Reykjavík
99.700.000 kr.
673.194 kr./m²
Herbergi
4
Svefnherbergi
3
Baðherbergi
1
Stærð
148,1 m²
Fastanúmer
2306690
Fasteignamat
89.750.000 kr.
Brunabótamat
77.050.000 kr.
Byggingarár
2016
Tegund
Rað/Par
Inngangur
Sérinngangur
Lind fasteignasala ehf.
•
5107900
•
allir@fastlind.is
Verðmat
Sveitarfélagið Árborg
Tjarnarmói
15
0101
Skráð 07.03.2026
Auglýsingasaga
Virkar eða eldri fasteignaauglýsingar fyrir þessa eign frá 2014
mars 2026
673.194 kr.
•
99.700.000 kr.
37 myndir
Previous slide
Next slide
Dags.
Stærð
Fermetraverð
Ásett
148,1 m²
673.194 kr.
99.700.000 kr.
148,1 m²
673.194 kr.
99.700.000 kr.
148,1 m²
673.194 kr.
99.700.000 kr.
febrúar 2026
673.194 kr.
•
99.700.000 kr.
janúar 2026
673.194 kr.
•
99.700.000 kr.
desember 2025
673.194 kr.
•
99.700.000 kr.
júlí 2023
580.014 kr.
•
85.900.000 kr.
Þinglýstir kaupsamningar
Dags.
Kaupverð
12. október 2023
84.000.000 kr.
7. september 2016
25.900.000 kr.
26.03.2026
Nánar
16.03.2026
Nánar
07.03.2026
Nánar
Komdu í
Plús
Lesa meira
37 myndir
Previous slide
Next slide
Sölusaga fasteignar. Skráð 07.03.2026
Auglýsingasaga (11)
Kaupsamningar (2)
Til sölu