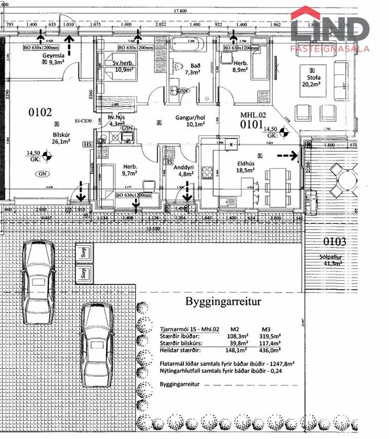
Íbúð
Timburhús klætt að utan með lituðu járni, 148,1 m2 heildarstærð með bílskúr. Skiptist í forstofu, baðherbergi, þvottahús, tvö svefnherbergi í aðalbyggingunni, stofu og eldhús í opnu rými, auk bílskúrs með auka herbergi.
Stofa
Stofa í opnu rými með eldhúsi, parket á gólfi, mjög rúmgóð. Rennihurð út á verönd í eldhúsinu.
Eldhús
Stórt og fallegt eldhús með innbyggðum ísskáp með frysti og innbyggðri uppþvottavél. Góð eyja sem hægt er að sitja við, nýir frontar og borðplötur, nýr bakaraofn, nýr vaskur og blöndunartæki. Rennihurð út á verönd.
Svefnherbergi
Tvö svefnherbergi með parketi á gólfum, annað með fataskáp. Auka svefnherbergi útbúið í hluta af bílskúr.
Baðherbergi
Flísalagt baðherbergi með fallegri innréttingu, vaski ofan á, walk-in sturta, frístandandi baðkar, opnanlegum glugga og handklæðaofni.
Þvottahús
Þvottahús með snyrtilegri innréttingu þar sem gert er ráð fyrir tækjum í vinnuhæð, skolvaski.
Geymsla
Geymsla í fataskápum í bílskúr, aðrir geymslur innan húss og útigeymsla í garði fyrir sláttuvél og annað.
Bílskúr
Bílskúr 39,8 m2 með epoxy á gólfi, góðum opnum fataskápum og sérsniðinni innréttingu. Hluti af bílskúr breyttur í auka herbergi.
Garður
Grónn og fallegur garður með útigeymslu fyrir sláttuvél og annað.
Svalir/þak
Stór timburverönd með skjólveggjum og heitum potti, aðgengileg úr eldhúsi.
Önnur herbergi
Aukaherbergi í bílskúr og útigeymsla í garði.
Tæki
Innbyggður ísskápur með frysti, innbyggð uppþvottavél, bakaraofn, vaskur og blöndunartæki í eldhúsi. Tæki í þvottahúsi.