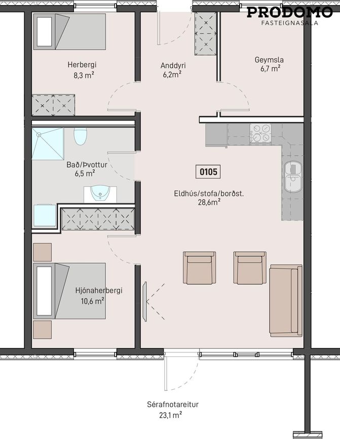
Þriggja herbergja íbúð á jarðhæð með opnu rými, gólfhita og rafhleðslustöðvum. Tilbúin til afhendingar.
Þessi lýsing er búin til af gervigreind Aurbjargar•
Eiginleikar
Íbúð
Jarðhæðaríbúð með sér inngangi, opnu stofu/eldhúsi, tveimur svefnherbergjum og geymslu sem hægt er að nýta sem þriðja svefnherbergi. Staðsteypt hús með þéttri einangrun.
Stofa
Opinn salur tengdur eldhúsi með helluborði og björtu rými.
Eldhús
Nútímalegt eldhús með innbyggðum ísskáp og uppþvottavél frá Electrolux, span helluborð og hnotalitasamsetningu.
Svefnherbergi
Tvö svefnherbergi með fataskápum, geymsla með glugga sem hægt er að nota sem þriðja svefnherbergi.
Baðherbergi
Baðherbergi með sturtu, flísalögðu gólfi og veggjum með plássi fyrir þvottavél og þurrkara.
Þvottahús
Pláss fyrir þvottavél og þurrkara í baðherbergi.
Geymsla
Innaníbúðar geymsla með glugga sem hægt er að nýta sem svefnherbergi.
Bílskúr
Malbikuð bílastæði með rafhleðsluaðstöðu og framtíðarhjólaskýli á lóð.
Garður
Sérafnotareytur á baklóð með útgöngu úr stofu.
Tæki
Innbyggður ísskápur, uppþvottavél og önnur tæki frá Electrolux.
Svæði
Nálægt skóla, leikskóla, verslun og þjónustu með beina aðgang að Reykjanesbraut.
Efni
Staðsteypt bygging með álklæddu timbur gluggum/dyrum, helluborð og flísalögð baðherbergi.
Annað
Snjóbræðslukerfi í gönguleiðum og hellulögð stétt við inngang.