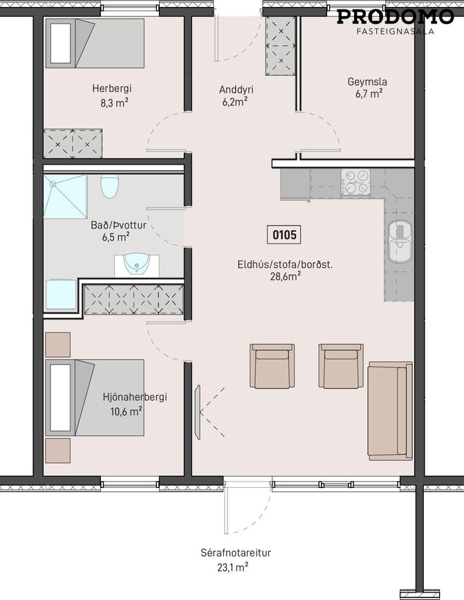
Þriggja herbergja íbúð á jarðhæð með opnu rými, gólfhita, rafhleðslu fyrir bifreiðar og sérinngangi. Tilbúin til afhendingar.
Þessi lýsing er búin til af gervigreind Aurbjargar•
Eiginleikar
Íbúð
Jarðhæðaríbúð með sérinngangi og opnu rými fyrir stofu og eldhús. Tvö svefnherbergi með fataskápum og geymslu sem hægt er að nýta sem þriðja svefnherbergi.
Stofa
Opið rými sameinað eldhúsi með björtu ljósi.
Eldhús
Innbyggður ísskápur og uppþvottavél, span helluborð og vönduð tæki frá Electrolux.
Svefnherbergi
Tvö svefnherbergi með fataskápum og möguleiki á þriðja herbergi úr geymslu.
Baðherbergi
Baðherbergi með sturtu, flísalögð gólf og veggir, aðstaða fyrir þvottavél og þurrkara.
Þvottahús
Þvottavél og þurrkari í baðherbergi.
Geymsla
Geymsla innan íbúðar með glugga sem hægt er að nýta sem svefnherbergi.
Bílskúr
Malbikuð bílastæði með rafhleðslustöðvum og hjólaskýli á lóð.
Garður
Sérafnotareytur á baklóð sem hægt er að nálgast frá stofunni.
Önnur herbergi
Geymsla sem hægt er að breyta í þriðja svefnherbergi.
Tæki
Innbyggður ísskápur, uppþvottavél, þvottavél og þurrkari.
Svæði
Nálægt skólum, leikskóla, verslunum og þjónustu með auðveldar samgöngur á Reykjanesbraut.
Efni
Staðsteypt hús með utanaðkomandi einangrun og báruðu áli. Svalahurðir og gluggar úr álklæddu timbri, hellulögð stétt við innganga.