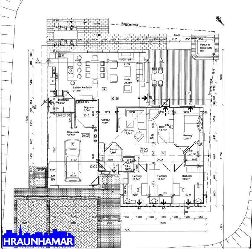
Hraunhamar fasteignasala og Helgi Jón Harðarson sölustjóri s. kynnir: Afar fallegt og vel byggt einbýli á einni hæð, skráð 195 fm auk innb. bílskúr 41 fm samtals stærð því 236 fm á þessum vinsæla stað í Mosfellsbæ. Frábær staðsetning innst í botnlanga, stór og fallegur garður snýr í suð-vestur með rúmgóðum palli/skjólgirðingum og heitum potti. Húsið er steypt (steinað að utan). Hiti í gólfum í votrýmum. Fullbúin góð eign. Eignin skiptist m.a. þannig: Rúmgóð flísalögð
forstofa með skáp, innangengt í rúmgóðan fullbúinn
bílskúrinn, góð
gestasnyrting,
hol, rúmgott sjónvarphol. Rúmgott bjart
eldhús með vönduðum ljósum innréttingum og góðum tækjum, spanhelluborð (80 cm). (útgengt í garðinn frá eldhúsi)
Eldhúsið er opið inn í rúmgóða bjarta
stofuna og borðstofuna, útgengt í garðinn þaðan. Hátt til lofts í eldhúsi og stofurýmum sem og öðrum rýmum.
Svefnálma: Þrjú rúmgóð barnaherbergi með skáp, rúmgott
þvottaherbergi með skáp/innréttingu og skolvaski: Mjög fallegt
baðherbergi með fínni sturtuaðstöðu og baðkari, vönduð innrétting, handklæðaofn, flísar í hólf og gólf, útgengt þaðan út á
pallinn/pottinn og garðinn. Rúmgott
hjónaherbergi með
fataherbergi fyrir innan.
Ljóst eikarharðparket frá Agli Árnasyni (2012) og náttúruflísar á gólfum. Innfelld lýsing. Núverandi eigendur tóku húsið í notkun 2010. Innréttingar og innihurðir úr eik frá 2010 (Trésmiðja Akraness)
Bílskúr er rúmgóður, (hiti í gólfum) geymsla fyrir innan.
Hiti í bílaplani. Heitur pottur. Gengið frá lóðarmörkum með holtagrjóti. 2012 og 2018 og stoðveggir í garði múraðir 2019 og klætt undir þakkant. Gluggar vandaðir úr mahony efni. Hús í góðu viðhaldi, stór og falleg lóð ( 837.0 fm )Stutt er í skóla, verslanir, miðbæinn ofl. Þetta er áhugaverð húseign á einni hæð sem vert er að skoða. Nánari uppl. gefur Helgi Jón Harðarson sölustjóri s. 893-2233 helgi@hraunhamar.is og Glódís Helgadóttir lgf. s. 659-0510 glodis@hraunhamar.isSkoðunarskylda:Í lögum um fasteignakaup nr. 40/2002 er kveðið á um ríka skoðunarskyldu kaupenda á fasteignum. Hraunhamar fasteignasala vill benda væntanlegum kaupendum á að kynna sér vel ástand fasteigna fyrir kauptilboðsgerð og ef þurfa þykir að leita til sérfræðinga fyrir nánari ástandsskoðun.
Gjöld sem kaupandi þarf að standa straum af vegna kaupanna:1. Stimpilgjald af kaupsamningi, fyrstu kaup (0,4%), almenn kaup (0,8%), lögaðilar (1,6%) af heildarfasteignamati.
2. Þinglýsingargjald af kaupsamningi, veðskuldabréfi, mögulegu veðleyfi o.fl. – kr. 3.800 kr. af hverju skjali.
3. Lántökugjald lánastofnunar er skv. verðskrá viðkomandi lánastofnunar.
4. Umsýslugjald til fasteignasölu skv. þjónustusamningi
Hraunhamar er elsta fasteignasala Hafnarfjarðar, stofnuð 1983.
Hraunhamar, í fararbroddi í rúm 40 ár. – Hraunhamar.is
Smelltu hér til að fá frítt söluverðmat.