Hús fasteignasala og Ragna Valdís Sigurjónsdóttir, löggiltur fasteignasali, kynna eignina Smáraland 4, 800 Selfoss.
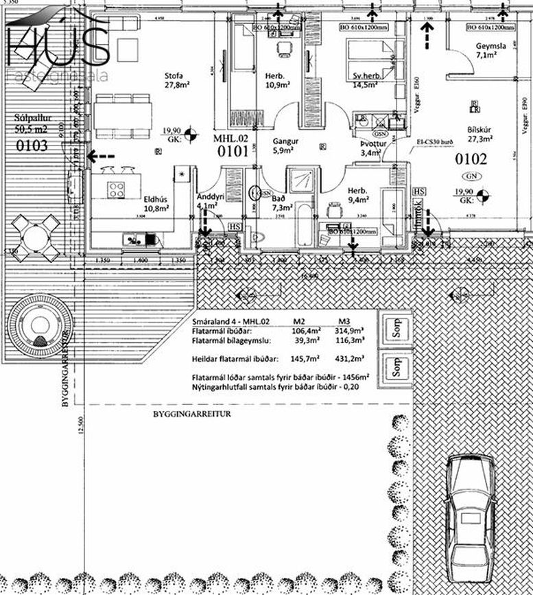
Um er að ræða virkilega snyrtilegt 106,4 fm. parhús ásamt 39,3 fm. sambyggðum bílskúr samtals 145,7 fm.Húsið er byggt úr timbri árið 2016 og er klætt að utan með liggjandi lituðu bárujárni og litað járn á þaki.
Að innan skiptist eignin í tvö svefnherbergi, stofu, gang, baðherbergi, eldhús, forstofu og þvottahús. Harðparket er á öllum gólfum nema baðherbergi og forstofu þar eru flísar. Eldhús er með hvítri snyrtilegri innréttingu frá Fagus. Baðherbergi er flísalagt með walk in sturtu, góð innrétting, handklæðaofn og upphengt wc. Fataskápar eru í herbergjum og í forstofu. Innangengt er í bílskúrinn úr þvottahúsinu, epoxý er á gólfum í þvottahúsi og bílskúr. Búið að stúka af lítið herbergi/geymslu í bílskúr.
Geymsluloft yfir bílskúr.
Við húsið er rúmgóður sólpallur.
Innkeyrsla er malbikuð og lóðin er þökulögð.
Nánari upplýsingar veitir Ragna Valdís Sigurjónsdóttir, Löggiltur fasteignasali, í síma 846-6581, tölvupóstur ragna@husfasteign.is
"Okkar fagmennska eru þínir hagsmunir" Gjöld sem kaupandi þarf að standa straum að vegna kaupanna.
1. Stimpilgjöld af kaupsamningi - 0,8 % af heildarfasteignamati og 1,6% fyrir lögaðila.
2. Þinglýsingargjald af kaupsamningi, veðskuldabréfi, mögulegu veðleyfi o.fl. kr. 3.800 af hverju skjali.
3. Lántökugjald lánastofnunnar. Nánari upplýsingar t.d. á heimasíðum lánastofnanna.
4. Umsýslugjald til fasteignasölu.
Skoðunarskylda: Í lögum um fasteignakaup nr. 40/2002 er kveðið á um ríka skoðunarskyldu kaupenda á fasteignum. Vill HÚS fasteignasala því skora á væntanlega kaupendur að kynna sér vel ástand fasteigna fyrir kauptilboðsgerð og leita til þar til bærra sérfræðinga um nánari skoðun.
Söluyfirlit er samið af fasteignasala í samræmi við ákvæði laga nr. 70/2015. Þær upplýsingar sem fram koma í söluyfirliti þessu eru sóttar í opinberar skrár, til seljanda sjálfs og eftir atvikum til húsfélags. Seljandi veitir upplýsingar um eign í samræmi við upplýsingaskyldu laga um fasteignakaup nr. 40/2002. Fasteignasali sannreynir að þær upplýsingar séu réttar með sjónskoðun á eigninni.
Fasteignasali getur ekki fullyrt um ástand og eiginleika þeirra hluta fasteigna sem ekki eru aðgengilegir og sjást ekki berum augum, t.d. lagnir, dren, skólp og þak.