Fasteignasalan Hvammur 466 1600
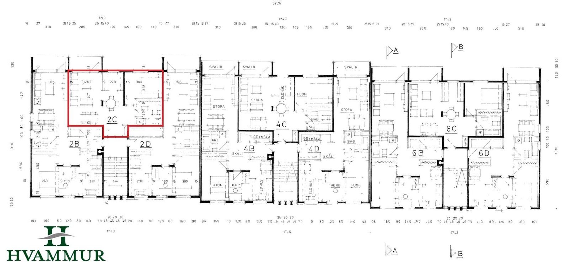
Smárahlíð 2 íbúð 202 - Vel skipulögð 2ja herbergja íbúð á annarri hæð í góðu fjölbýlishúsi í Þorpinu - Stærð 58,1 m²Eignin skiptist í forstofu, eldhús, stofu, svefnherbergi, baðherbergi og sérgeymslu í sameign.
Forstofa er með plastparketi á gólfi og opnu fatahengi.
Í eldhúsi er filmuð upprunaleg innrétting með ljósri bekkplötu.
Stofa er með plastparketi á gólfi. Þaðan er útgengt út á steyptar svalir er snúa til suðurs.
Svefnherbergi er rúmgott, með plastparketi á gólfi og fataskáp.
Baðherbergi er með nýlegum flísum á gólfi og hluta veggja. Ljós innrétting, nýlegur sturtuklefi og tengi fyrir þvottavél.
Sér
geymsla er á jarðhæðinni með vegghillum.
Annað:- Hjóla- og vagnageymsla í sameign.
- Snyrtileg sameign. Máluð innandyra 2023 og skipt um framdyr 2024.
- Þak var endurnýjað árið 2011, sett ný einangrun, pappi og járn.
- Húsið var málað að utan 2017 og gert við múrskemmdir.
- Góð staðsetning, leik- og grunnskóli í göngufjarlægð sem og íþróttasvæði Þórs.
- Eignin er í leigu - 3ja mánaða uppsagnarfrestur.
Um skoðunar- og aðgæsluskyldu:Í lögum um fasteignakaup nr. 40/2002 er kveðið á um ríka skoðunarskyldu kaupenda á fasteignum. Fasteignasalan Hvammur skorar því á væntanlega kaupendur að kynna sér vel ástand fasteigna fyrir kauptilboðsgerð og leita til þar til bærra sérfræðinga um nánari skoðun ef með þarf.
Forsendur söluyfirlits:Söluyfirlit er samið af fasteignasala í samræmi við ákvæði laga nr. 70/2015. Þær upplýsingar sem fram koma í söluyfirliti þessu eru sóttar í opinberar skrár, til seljanda sjálfs og eftir atvikum til húsfélags. Seljandi veitir upplýsingar um eign í samræmi við upplýsingaskyldu laga um fasteignakaup nr. 40/2002. Fasteignasali sannreynir að þær upplýsingar séu réttar með sjónskoðun á eigninni. Fasteignasali getur ekki fullyrt um ástand og eiginleika þeirra hluta fasteigna sem ekki eru aðgengilegir og sjást ekki berum augum, t.d. lagnir, dren, skólp og þak.