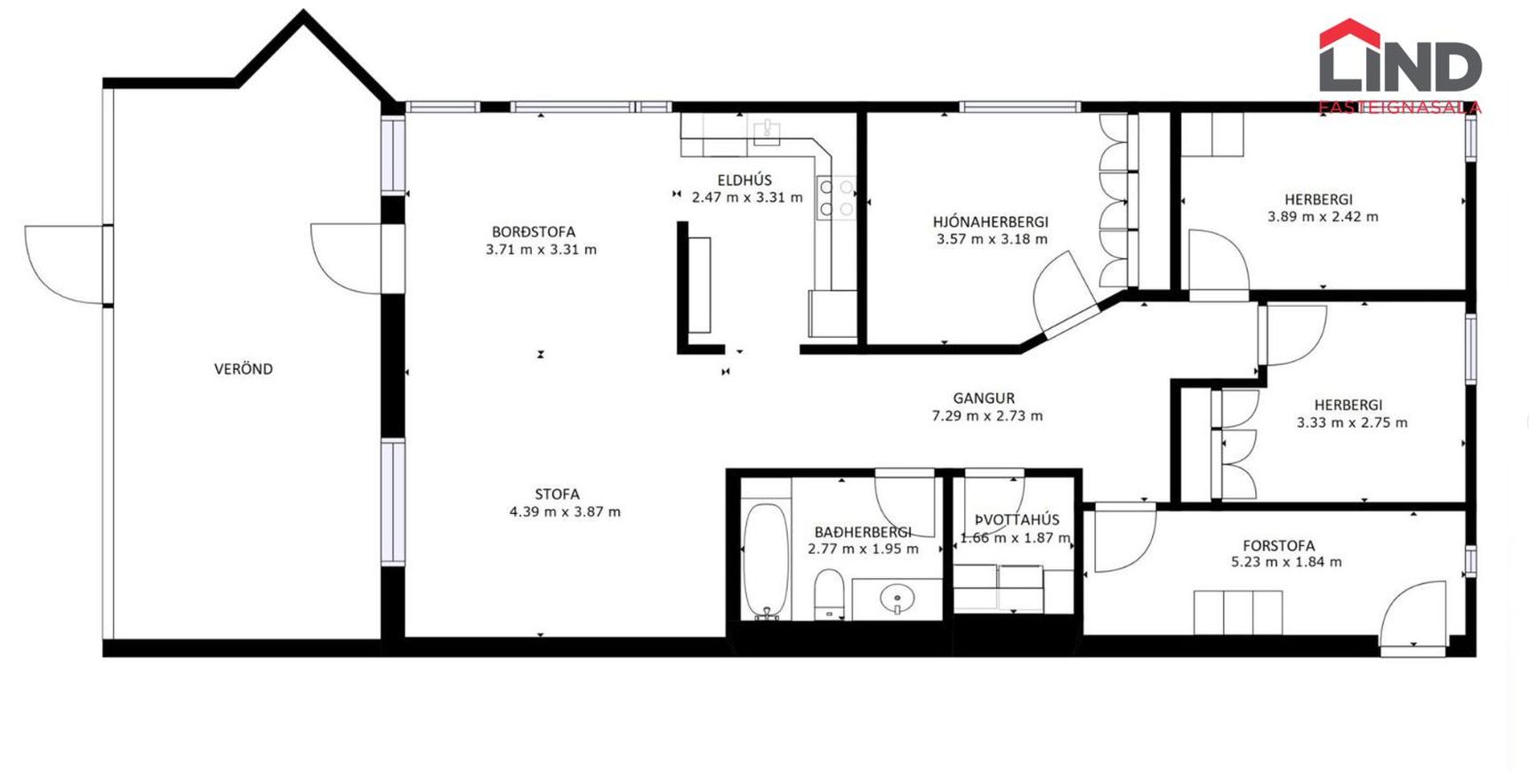
LIND fasteignasala og Helga Pálsdóttir löggiltur fasteignasala kynnir virkilega fallega og nokkuð mikið endurnýjaða 120,9 m2 fjögurra herbergja endaíbúð með stæði í bílageymslu á jarðhæð garðmegin með útgengi út á góða verönd með skjólveggjum. Íbúðin er vel skipulögð þar sem hver fermetri nýtist. Samkvæmt FMR er íbúðarfermetrar eignarinnar 113,4 m2 ásamt 7,5 m2 geymslu. Íbúðin samanstendur af þremur svefnherbergjum, forstofu, stofu, borðstofu, eldhúsi, þvottahúsi og baðherbergi. Sér geymsla ásamt sameiginlegri hjóla- og vagnageymslu eru á 1.hæð.
Nánari lýsing:Forstofa með góðum fataskápum og flísar á gólfi.
Stofa og borðstofa er parketlögð með útgengi út á hellulagðan sérafnotaflöt með skjólgirðingu. Pallurinn var stækkaður 2024.
Eldhús með nýlegri innréttingu með innbyggðum ísskáp , frysti ásamt innbyggðri uppþvottavél, ofn í vinnuhæð, span helluborð og vifta, parket á gólfi.
Baðherbergi með flísalögðu gólfi og veggjum, nýleg innrétting , baðkar með sturtu.
Þvottahús er innan íbúðar með tengi þvottavél og þurrkara, góðar hirslur.
Hjónaherbergi með parketi á gólfi og fataskáp
Barnaherbergin ertu tvö með parketi á gólfi og nýjum fataskápum.
Geymslan er 7,5 fm og er með hillum og er í kjallara.
Hjóla og vagnageymsla: er í sameign og er mjög rúmgóð.
Stæði í bílageymslu.
* parketið var allt endurnýjað 2023 *Merkt bílastæði B04 er mjög rúmgott og með tengi fyrir hleðslustöð í bílageymslu. Sameiginlegt þvottastæði þar sem hægt er að þvo bíla er staðsett fyrir utan bílageymsluna.
Í kjallara fylgir rúmgóð sérgeymsla með hillum og sameiginleg dekkja og hjólageymsla. Í húsinu starfar virkt húsfélag. - lyftan var endurnýjuð 2023
íbúðin er staðsett garðmegin í húsinu, ekki er því ónæði frá umferð. Leikvöllur fyrir börn er í garðinum með rólum og rennibrautun , og að auki er fullt af leiksvæðum í nágrenninu
Húsið er vel staðsett í barnvænu hverfi þar sem stutt er í alla mögulega þjónustu, leikskóli og grunnskóli í göngufæri. Allar upplýsingar um eignina veitir Helga Pálsdóttir fasteignasali í síma 822 2123 eða helga@fastlind.is