Valmynd
Aurbjörg
Plús
Við erum að hlaða inn upplýsingum um fasteignina
Eignir & skuldir
Lánskjaravakt
Endurfjármögnun
Húsnæðislánareiknivél
Bílalánareiknivél
Skammtímalánareiknivél
Berðu saman öll húsnæðislán
Tekjur & gjöld
Dagleg fjármál
Yfirlit fjármála
Rafmagn
Bifreiðaskoðun
Bensín og dísel
Kreditkort
Bankareikningar
Fjarskipti
Eignavakt
Eignavakt
Verðmat
Auglýsingasaga
Hlutdeildaláns eignir
Vöktun
Greiðslumat
Lífeyrismál
Lífeyriskerfið á Íslandi
Samtrygging
Séreign
Lífeyrisreiknivél
Lífeyrisréttindi
Aurbjörg finnur tækifæri í fjármálum heimilisins
Láttu Aurbjörgu standa vaktina og hjálpa þér að taka betri ákvarðanir í fjármálum.
Komdu í
Plús
Lesa meira
Markmið Aurbjargar er að auka fjármálalæsi, auka gagnsæi og aðstoða þig við að taka upplýstari og betri ákvarðanir í fjármálum.
Um Aurbjörgu
Skilmálar Aurbjargar
Lagalegur fyrirvari
Hafa samband
Gjafabréf
Verð
Fyrirtækjapakki
Bloggið
Persónuverndarstefna
Stillingar á vefkökum
Ertu með ábendingu?
© 2017-2026 • Aurbjörg ehf. • 430518-1430 • Lágmúla 9 • 108 Reykjavík
Valmynd
Aurbjörg
Plús
Lýsing
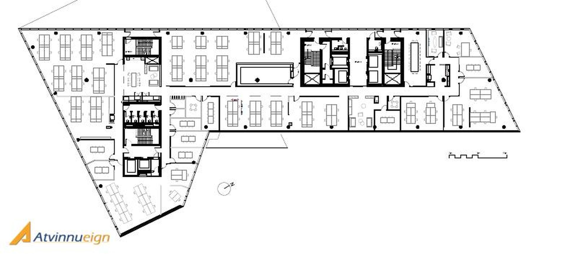
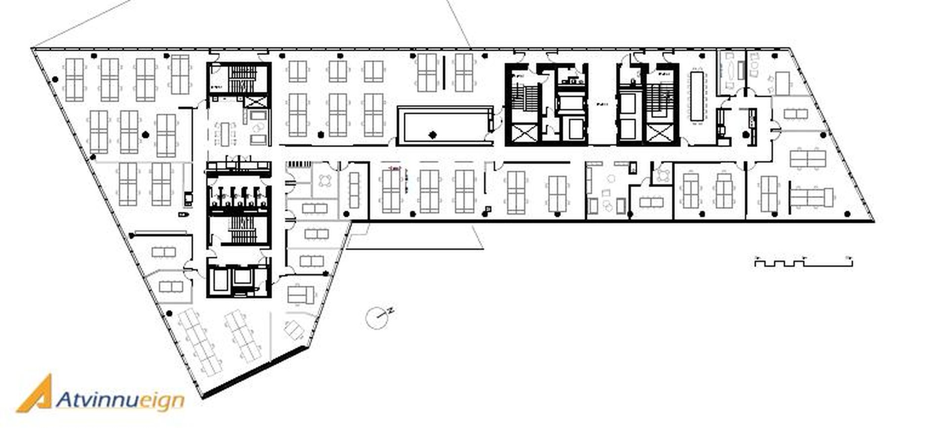
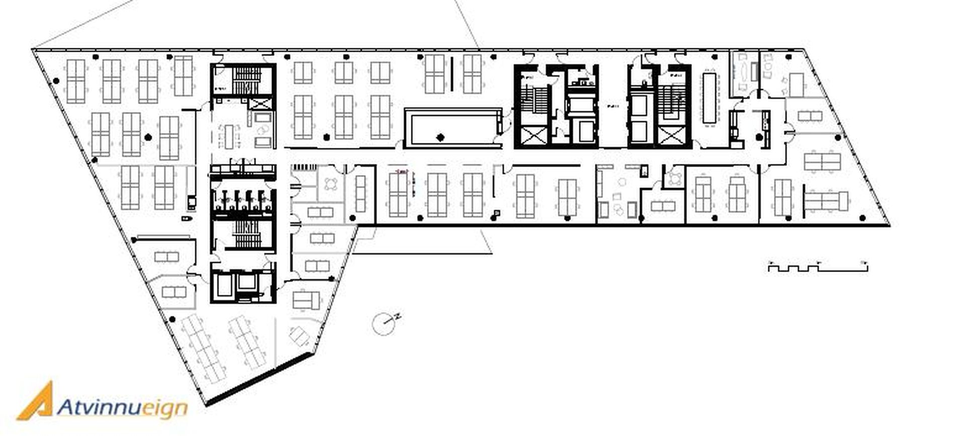
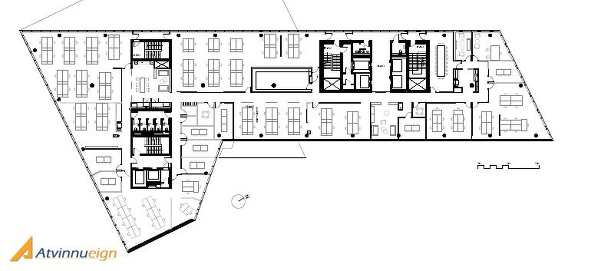
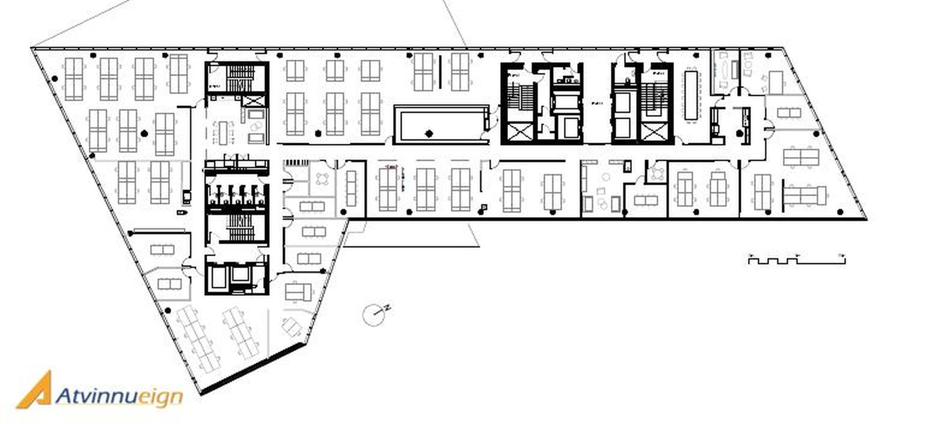
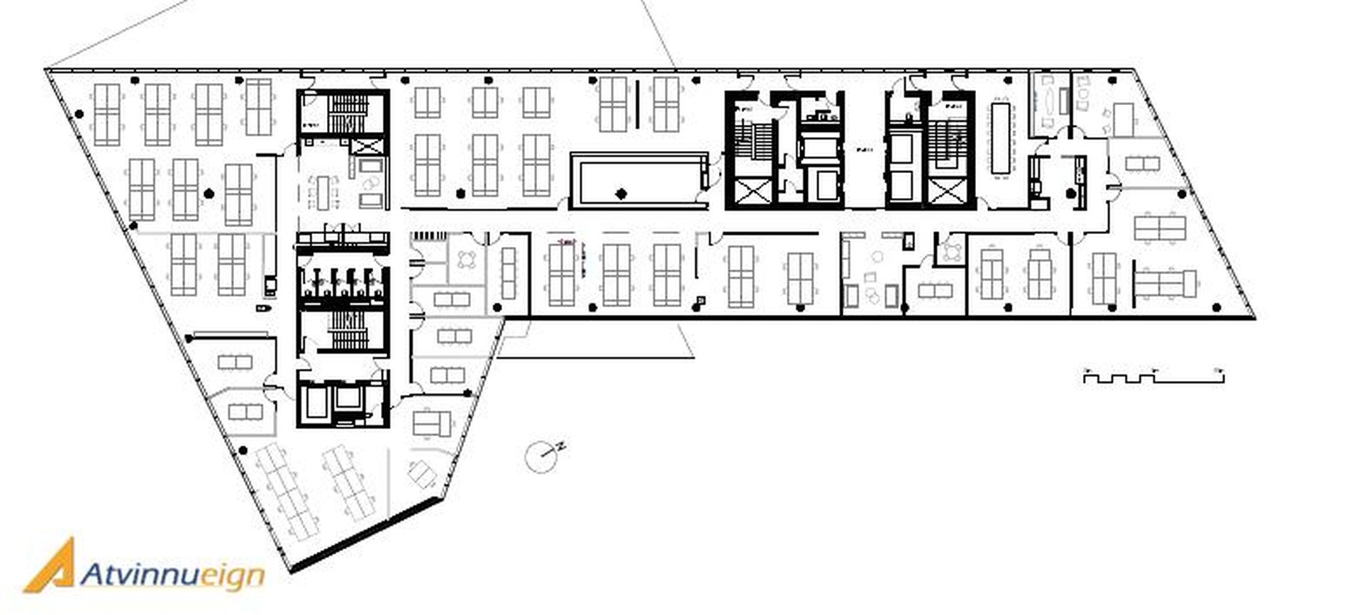
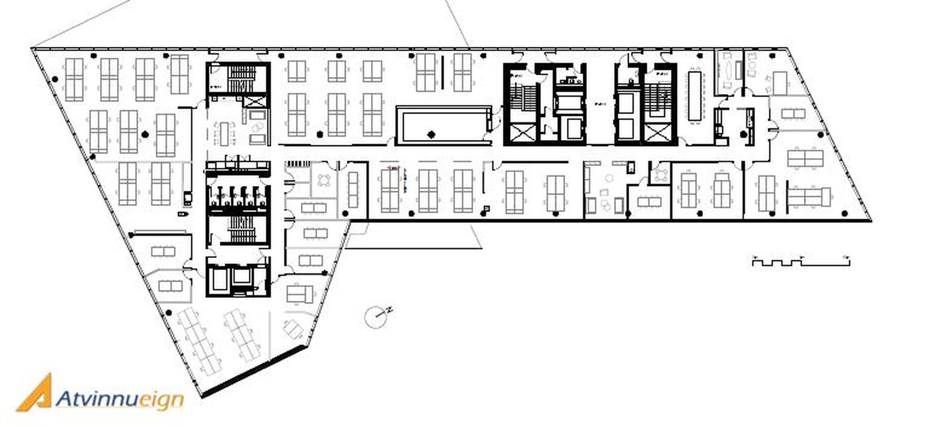
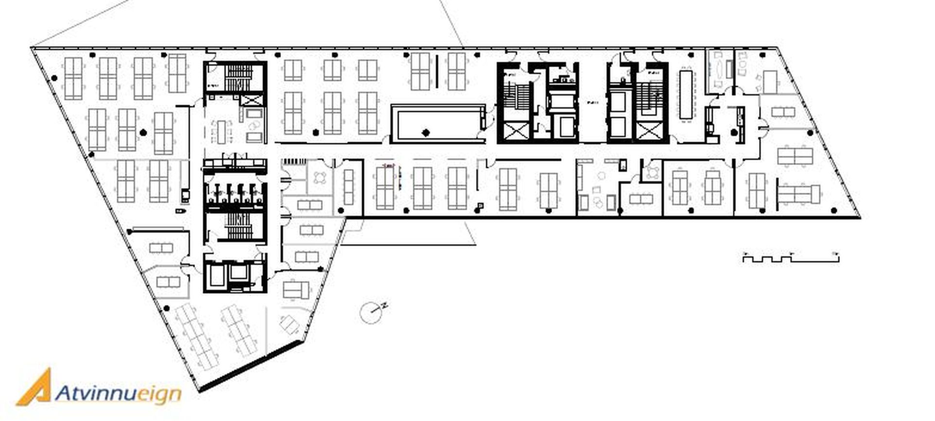
300-640 fm skrifstofurými með opnu vinnurými, lokuðum skrifstofum og fundarherbergjum. VSK bætist við leiguverð.
Þessi lýsing er búin til af gervigreind Aurbjargar
•
Skoða upprunalega
Eiginleikar
Íbúð
Skrifstofurými á 2. hæð í Katrínartúni 2 með lofthæð, ljósmagni og hljóðvist. Möguleiki á aðgangsstýringu í lyftu.
Eldhús
Kaffi- og eldhúsaðstaða í rýminu. Veitingaþjónusta á jarðhæð með hádegishlaðborði.
Þvottahús
Þvottastöð í bílakjallara.
Bílskúr
Bílakjallari með 1.300 bílastæðum, hleðslustöðvum og hjólageymslum.
Félagssvæði
Sameiginlegur bílakjallari og veitingaþjónusta á jarðhæð.
Önnur herbergi
Fundarherbergi og lokaðar skrifstofur.
Tæki
Kaffi- og eldhúsaðstaða.
Svæði
Í hjarta viðskiptahverfis Reykjavíkur með góðar samgöngur og nálægð við þjónustu og veitingastaði.
Annað
Veitingaþjónusta á jarðhæð með hádegishlaðborði.
64 myndir
Húsnæðislán
Kíktu á dæmið með Aurbjörgu
Kaupverð
kr.
Þín útborgun
kr.
Lánstími
ár
Ráðstöfunartekjur
kr.
Hnoðravellir 48 - 0101, 221 Hafnarfjörður skráð 18.12.2025
Eignir & skuldir
Lánskjaravakt
Endurfjármögnun
Húsnæðislánareiknivél
Bílalánareiknivél
Skammtímalánareiknivél
Berðu saman öll húsnæðislán
Tekjur & gjöld
Dagleg fjármál
Yfirlit fjármála
Rafmagn
Bifreiðaskoðun
Bensín og dísel
Kreditkort
Bankareikningar
Fjarskipti
Eignavakt
Eignavakt
Verðmat
Auglýsingasaga
Hlutdeildaláns eignir
Vöktun
Greiðslumat
Lífeyrismál
Lífeyriskerfið á Íslandi
Samtrygging
Séreign
Lífeyrisreiknivél
Lífeyrisréttindi
Aurbjörg finnur tækifæri í fjármálum heimilisins
Láttu Aurbjörgu standa vaktina og hjálpa þér að taka betri ákvarðanir í fjármálum.
Markmið Aurbjargar er að auka fjármálalæsi, auka gagnsæi og aðstoða þig við að taka upplýstari og betri ákvarðanir í fjármálum.
Um Aurbjörgu
Skilmálar Aurbjargar
Lagalegur fyrirvari
Hafa samband
Gjafabréf
Verð
Fyrirtækjapakki
Bloggið
Persónuverndarstefna
Stillingar á vefkökum
Ertu með ábendingu?
© 2017-2026 • Aurbjörg ehf. • 430518-1430 • Lágmúla 9 • 108 Reykjavík
Hnoðravellir 48 -
0101
, 221 Hafnarfjörður
0 kr.
Fastanúmer
2304229
Fasteignamat
-
Brunabótamat
-
Byggingarár
Tegund
Atvinnuhúsnæði
Inngangur
Atvinnueign
•
577 5500
•
atvinnueign@atvinnueign.is
Komdu í
Plús
Lesa meira
Þinglýstir kaupsamningar
Dags.
Kaupverð
2. nóvember 2023
117.500.000 kr.
21. febrúar 2017
53.300.000 kr.
Auglýsingasaga
Virkar eða eldri fasteignaauglýsingar fyrir þessa eign frá 2014
apríl 2026
-
•
Offer
13 myndir
Previous slide
Next slide
Dags.
Stærð
Fermetraverð
Ásett
1.882 m²
-
Tilboð
825 m²
-
Tilboð
640 m²
-
Tilboð
300 m²
-
Tilboð
133 m²
-
Tilboð
febrúar 2026
-
•
Offer
janúar 2026
-
•
Offer
desember 2025
-
•
Offer
nóvember 2025
-
•
Offer
október 2025
-
•
Offer
september 2025
-
•
Offer
ágúst 2025
-
•
Offer
júlí 2025
-
•
Offer
júní 2025
-
•
Offer
maí 2025
-
•
Offer
mars 2025
-
•
Offer
febrúar 2025
-
•
Offer
júlí 2023
666.667 kr.
•
119.800.000 kr.
júní 2023
666.667 kr.
•
119.800.000 kr.
apríl 2023
666.667 kr.
•
119.800.000 kr.
mars 2023
666.667 kr.
•
119.800.000 kr.
Plús
Ert þú með
besta
lánið
fyrir þig?
Við látum þig vita þegar við finnum húsnæðislán með:
Betri vöxtum
Lægri mánaðargreiðslum
Lægri heildargreiðslum
og mikið fleira með Aurbjörg Plús.
Prófaðu núna
Hafnarfjörður
Hnoðravellir
48
0101
Skráð 18.12.2025
Upplýsingar
Auglýsingasaga (80)
Kaupsamningar (2)
Húsnæðislán
Previous slide
Next slide
Sölusaga fasteignar. Skráð 18.12.2025
01.04.2026
Nánar
01.04.2026
Nánar
01.04.2026
Nánar
01.04.2026
Nánar
01.04.2026
Nánar
Lesa meira
Verðmat
13 myndir
Til sölu