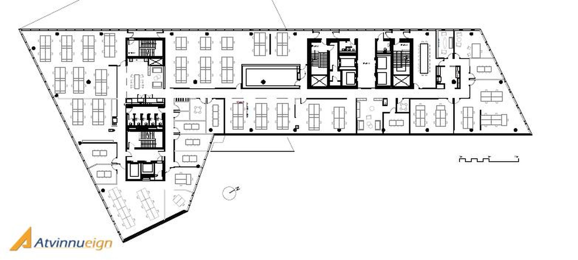
Atvinnueign kynnir til leigu: 300-640 fm í einu glæsilegasta skrifstofurými á höfuðborgarsvæðinu. Um er að ræða 2. hæð í Katrínartúni 2, nánar tiltekið Höfðatorgi. Gæðin í rýminu eru einstök og má þar horfa til lofthæðar, ljósmagns, útsýnis, hljóðvistar, aðgangsstýringar, loftgæða o.s.frv. Möguleiki er að fá rými á jarðhæð samhliða.
Laust eftir samkomulagi. VSK bætist við leiguverð. Rýmið er samblanda af opnu vinnurými, lokuðum skrifstofum og fundarherbergjum. Góð kaffi- og eldhúsaðstaða er einnig til staðar. Veitingaþjónusta á jarðhæð þar sem boðið er upp á ferskt og fjölbreytt hádegishlaðborð alla virka daga.
Gott aðgengi, innangengt er niður í bílakjallara með 1.300 bílastæðum, hleðslustöðvum, hjólageymslum og þvottastöð.Möguleiki er að takmarka aðgengi að rýminu með aðgangsstýringu í lyftu, fer allt eftir óskum og þörfum leigutaka.
Frábær staðsetning í einu helsta viðskiptahverfi Reykjavíkur þar sem fjöldi fólks starfar innan kjarna og í göngufjarlægð. Góðar samgöngur liggja að húsinu og öll þjónusta og veitingastaðir í næsta nágrenni
.
Nánari upplýsingar veita:
Ólafur Ingi Guðmundsson, löggiltur fasteignasali og leigumiðlari, í síma
847-7700 eða
olafur@atvinnueign.is Sigursteinn Stefánsson, viðskiptafræðingur og aðstoðarmaður fasteignasala í síma
860 5415 eða
sigursteinn@atvinnueign.isÁ vefsíðu okkar getur þú fundið fleiri eignir sem og kynnt þér þjónustu Atvinnueignar ehf,
www.atvinnueign.is - Atvinnueignir eru okkar fag -