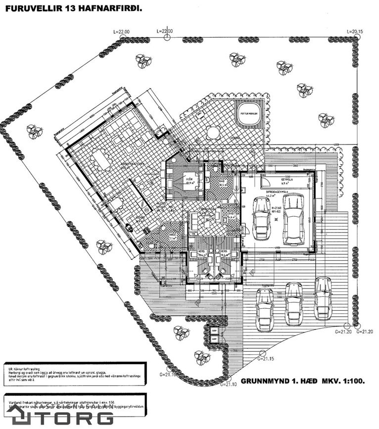
Fasteignasalan Torg og Svavar Friðriksson, löggiltur fasteignasali kynna: Mjög vel byggt og rúmgott 226,6m
2 einbýlishús á einni hæð, þar af er 57,7m
2 bílskúr. Einbýlishúsið er steypt og stendur á fallegri hornlóð við botngötu í rólegu og barnvænu hverfi. Innkeyrslan er upphituð og rúmgóð. Gengið er inn í forstofu með góðum skápum, gestasalerni. Sjónvarpshol, eldhús, borðstofa og stofa. Stórt og fallegt hjónaherbergi. Barnaherbergið er stórt sem hægt er að skipta í tvennt. Baðherbergi með útengi á verönd. Þvottahús þar sem gengið er beint inn í vel innréttaðan, stóran og snyrtilegan bílskúr með rafdrifnum hurðum. Veröndin er vel smíðuð og garðurinn snyrtilegur með heitum potti. Köld geymsla fyrir verkfæri. Stór geymsla/verkstæði þar sem búið er að tengja rafmagn. Stutt er í skóla og leikskóla, útivistarsvæði, sundlaug, íþróttamannvirki, verslanir ásamt annarri þjónustu.
Allar nánari upplýsingar veitir Svavar Friðriksson, löggiltur fasteignasali, í síma 623-1717 - svavar@fstorg.is.
Nánari lýsing eignar.
Forstofa. Flísar á gólfi. Stór fataskápur.
Gestasalerni. Flísalagt í hólf og gólf. Falleg hvít og sprautulökkuð innrétting. Upphengt salerni þar sem kassinn er fallega flísalagður í mósaík stíl. Gert er ráð fyrir sturtu. Gluggi og lofttúða. Spegillinn mun ekki fylgja með.
Sjónvarpshol. Flísar á gólfi.
Hjónaherbergi. Mikið skápapláss. Parket á gólfi. Útgengt út á verönd.
Barnaherbergi. Tvöfalt herberbergi sem hæglega væri hægt að skipta í tvennt. Parket á gólfi. Sjónvarpsskenkur og aðrir skápar fylgia ekki með.
Baðherbergi. Flísar á gólfi og á veggjum. Stór, tvöföld, sturta með flísalögðum veggjum. Upphengt salerni með mósaíkflísum á veggstaðnum. Stór handklæðaofn. Gluggar og lofttúða. Gengið út á verönd.
Eldhús. Flísalagt. Mikið hirslupláss. Vaskur við glugga. Tengi fyrir uppþvottavél. Stórt helluborð og loftgleypir. Granítsteinn á eldhúsbekk.
Borðstofa. Bjartur með skápum sem fylgja ekki með.
Stofa. Mjög rúmgóð stofa. Útgengt út á verönd.
Þvottahús. Góðir skápar. Tengi fyrir þvottavélar. Þvottasnúrur. Flísar á gólfi. Gengið inn í bílskúr í gegnum þvottahúsið.
Bílskúr. Epoxy á gólfi. Gluggar. Rafdrifnar hurðar. Hitagrind með stýringu fyrir heita pottinn og innkeyrsluna. Hillur og skápar. Útgengt út á verönd að baka til.
Verönd. Vel smíðaður - stór pallur með steyptum veggjum. Köld geymsla ásamt stórri geymslu sem hægt er að nýta sem verkstæði. Heitur pottur.
Um er að ræða afar vel byggt steinsteypt einbýlishús á einni hæð með miklum möguleikum í barnvænu hverfi. Stutt er í skóla og leikskóla.
Allar nánari upplýsingar veitir Svavar Friðriksson, löggiltur fasteignasali, í síma 623-1717 - svavar@fstorg.is.
Gjöld sem kaupandi þarf að standa straum af vegna kaupa á fasteign:1. Stimpilgjald af fasteignamati fasteignar er 0.8%, en 0,4% fyrir fyrstu kaup og 1,6% fyrir lögaðila.
2. Þinglýsingargjald: kaupsamningi, skuldabréfi, veðleyfi, afsali o.s.frv. er kr. 2.500 af hverju skjali.
3. Lántökukostnaður samkvæmt verðskrá viðkomandi lánastofnunar.
4. Umsýslugjald til fasteignasölu skv. gjaldskrá.
5. Kaupandi eignarinnar greiðir skipulagsgjald þegar það verður lagt sem er 0,3% af endanlegu brunabótamati eignarinnar.
Skoðunarskylda kaupanda:Í lögum um fasteignakaup nr. 40/2002 er kveðið á um ríka skoðunarskyldu kaupenda á fasteignum. Fasteignasala bendir væntanlegum kaupendum á að kynna sér vel ástand fasteigna við skoðun og fyrir tilboðsgerð og ef þurfa þykir að leita til sérfræðinga um nánari ástandsskoðun.
Forsendur söluyfirlits:Söluyfirlit er samið af fasteignasala í samræmi við ákvæði laga nr. 70/2015. Þær upplýsingar sem fram koma
í söluyfirliti þessu eru sóttar í opinberar skrár, til seljanda sjálfs og eftir atvikum til húsfélags.
Seljandi veitir upplýsingar um eign í samræmi við upplýsingaskyldu laga um fasteignakaup nr. 40/2002.
Fasteignasali sannreynir að þær upplýsingar séu réttar með sjónskoðun á eigninni.
Fasteignasali getur ekki fullyrt um ástand og eiginleika þeirra