Helgafell fasteignasala og Hólmar Björn Sigþórsson löggiltur fasteignasali kynna í einkasölu Fríðugötu 3, 815 Þorlákshöfn:Nýtt og glæsilegt 4ra herbergja parhús með innbyggðum bílskúr. Birt stærð eignar samkvæmt fasteignaskrá HMS er 150,4 fm og þar af er íbúðarhluti 122,9 fm og innbyggður bílskúr 27,5 fm. Húsið er vel staðsett í Vesturbyggð þar sem sem er nýtt hverfi í vestur jaðri Þorlákshafnar og stutt er í leikskólann Hraunheimar sem er nýr leikskóli í hverfinu, grunnskóla, verslanir, almenna þjónustu og útivistarsvæði.
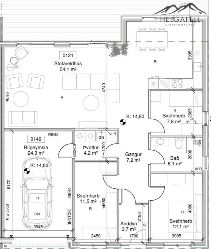
SMELLIÐ HÉR TIL AÐ FÁ SENT SÖLUYFIRLIT STRAXSELJENDUR ERU TILBÚNIR AÐ SKOÐA SKIPT Á ÓDÝRARI EIGN. Skipulag eignar: Anddyri, alrými með stofu, borðstofu og eldhúsi, þrjú svefnherbergi, baðherbergi, gangur, þvottahús og bílskúr.
Nánari lýsing:Anddyri: Rúmgott með brúnum fataskáp, flísar á gólfi.
Stofa / borðstofa: Í alrými er stór stofa / borðstofa, útgengt er út á baklóð (rennihurð - suður), gólfsíður gluggi sem gefa rýminu aukna birtu, innfelld lýsing, parket á gólfi.
Eldhús: Í alrými er rúmgott eldhús með fallegri brúnni innréttingu frá Voke-III með harðpressaðri CLW borðplötu og sama plata er á vegg milli skápa, innbyggður ísskápur og uppþvottavél, bakstursofn í vinnuhæð, undirfelldur vaskur, spanhelluborð og vifta, innfelld lýsing neðan á efri skápum, gólfsíðir gluggar með hurð út á baklóð sem gefa rýminu aukna birtu, innfelld lýsing, parket á gólfi.
Hjónaherbergi: Rúmgott með brúnum fataskápum, gólfsíður gluggi, innfelld lýsing, parket á gólfi.
Svefnherbergi 2: Með brúnum fataskáp, parket á gólfi.
Svefnherbergi 3: Með brúnum fataskáp, gólfsíður gluggi, parket á gólfi.
Baðherbergi: Með brúnni innréttingu með hvítri handlaug, speglaskápur með ljósi, walk in sturta, upphengt salerni, gólfsíður gluggi, flísalagt í hólf og gólf.
Gangur: Parket á gólfi.
Þvottahús: Með brúnni innréttingu með hækkun fyrir tvær vélar, skúffur og hillur fyrir þvott, vaskur, innangengt í bílskúr, flísar á gólfi.
Bílskúr: Stærð 27,5 fm, rafdrifin opnun er á bílskúrshurð, innangengt í þvottahús, loftskipti kerfi, inntök veitna er í bílskúr, rafmagnstafla og gólfhitagrind, lögn fyrir rafhleðslustöð utan á bílskúr (rafhleðslustöð fylgir ekki með), málað gólf.
Staðsetning: Smellið hér. Nánari skilalýsing:Frágangur utanhúss:Sökklar og gólfplata: Er staðsteypt, einangruð og með ísteyptum gólfhita.
Útveggir: Húsið er byggt úr forsteyptum samlokueiningum í dökkum lit.
Þak og þakkantar: Þak er úr filgran plötum með ásteypulagi, með tjörudúk, einangrun og PVC dúk. Þakkantar eru klæddir með sléttu áli RAL7016.
Gluggar og hurðir: Gluggar og hurðir eru úr timbri með álkápu gráir að lit og hvítum lit að innan, gler í gluggum er tvöfalt einangrunargler. Bílskúrshurð frá Límtré Vírnet.
Lóð: Framan við húsið er möl í innkeyrslu og á vestur og suðurhlið eru þökur. Gert er ráð fyrir stæði fyrir tvo bíla. Ruslatunnuskýli fyrir þrjá tunnur.
Frágangur innanhúss:Innveggir: Innveggir eru 120 mm hefðbundnir gifsveggir og burðarveggir eru steyptir.
Lagnir: Fráveitulagnir eru tengdar fráveitu kerfi í götu.
Neysluvatnslagnir eru fullfrágengnar. Búið er að leggja ídráttarrör fyrir heitan pott á framlóð og baklóð, vatnskrani er á húsinu á baklóð.
Rafmagn er fullklárað með svörtum rofum og tenglum, svartir ljósakúplar eru í öllum rýmum og innfelld lýsing er í alrými og hjónaherbergi. Að utan er lagt er fyrir rafhleðslustöð á framhlið hússins. Fimm útiljós eru utan á húsi og innfelld lýsing er á framhlið og bakhlið. Fjórar innstungur eru utan á húsinu.
Gólfhiti er í húsinu og stafrænar hitastýringar eru í alrými og svefnherbergjum.
Loftskiptikerfi: Í húsinu er Flexit nordic CL4 loftskiptikerfi. Loftskiptakerfi með varmaendurvinnslu og síum sem leiðir til þess að nægu fersku lofti er veitt inn óháð veðurskilyrðum, fersku lofti er veitt inn án þess að kæla íverurými, rakt notað loft er dregið út, dregið er úr orkutapi með varmaendurvinnslu, minni óhreinindi berast inn vegna síunnar, minni umhverfishávaði berst inn ef opnanleg fög eru lokuð, auk þess er hægt að stilla kerfin þannig að vægur yfirþrýstingur sé í íbúðum. Kerfið er hljóðlátar og auðvelt í notkun. Hægt er að stýra því með Flexit GO appinu.
Innihurðir: Hvítar yfirfelldar innihurðir með svörtum hurðarhúnum eru frá Parka. Felliþröskuldar eru á hurðum í anddyri og svefnherbergjum.
Gólfefni: Parket og flísar eru frá Parka.
innréttingar: Fallegar brúnar innréttingar eru frá Voke-III, svört handföng og hæglokur. Allar innréttingar eru smíðaðar í fullri lofthæð.
Tæki: Vönduð eldhústæki frá AEG og Electrolux. Vönduð hreinlætistæki frá Franke í eldhúsi og þvottahúsi og frá Hansgrohe í baðherbergi koma frá Voke-III.
Annað: Seljandi greiðir tengigjöld rafmagns og hita sem og lóðargjald.
Kaupandi greiðir 0,3% skipulagsgjald sem er innheimt við endanlegt brunabótamat.
Stutt er í alla helstu þjónustu skóla, og leikskóla, íþróttaaðstöðu og falleg útivistarsvæði. Falleg eign sem vert er að skoða.
Nánari upplýsingar og bókun á skoðun gefur Hólmar Björn Sigþórsson, löggiltur fasteignasali og félagsmaður í Félagi fasteignasala í s. 893 3276 eða í netfangið holmar@helgafellfasteignasala.is.
Þorlákshöfn:Þorlákshöfn er frábær staður til að búa sér notalegt heimili og ala upp börn. Vinalegur og barnvænn bær í nálægð við aðra þéttbýliskjarna. Í dag er öll þjónusta við barnafólk og fjölskyldur í Þorlákshöfn til fyrirmyndar. Stuttar vegalengdir einfalda allar samgöngur og börnin geta gengið örugg í skóla og tómstundastarf. Skólarnir eru eitt af trompum bæjarins þar sem stutt er vel við bakið á þeim sem þess þurfa. Rúmgóður og vel búinn grunnskóli með persónulegum samskiptum á milli heimilis og skóla. Leikskólinn Bergheimar er fimm deilda leikskóli fyrir tveggja til sex ára börn og í Vesturbyggð nýju hverfi er verið að byggja leikskólann Hraunheima. Öll íþróttaaðstaða í Þorlákshöfn er mjög góð og ákaflega vel nýtt af bæjarbúum. Margir nýir íbúar hafa nefnt að í stað þess að festa kaup á íbúð á höfuðborgarsvæðinu hafi verið hægt að fá íbúðarhús í Þorlákshöfn og búa fjölskyldunni stærra og rúmbetra heimili í barnvænu umhverfi.
----------------------------------------------------------
Heimasíða Helgafells fasteignasölu
Facebook síða Helgafells
- Hafðu samband og við gerum söluverðmat á eign þinni, þér að kostnaðarlausu -
Gjöld sem kaupandi þarf að standa straum af vegna kaupa á fasteign:
1. Stimpilgjald af kaupsamningi - 0,8% af fasteignamati fyrir einstaklinga (0,4% fyrir fyrstu kaupendur) og 1,6% fyrir lögaðila.
2. Þinglýsingargjald af kaupsamningi, veðskuldabréfi, mögulegu veðleyfi o.fl. - 3.800 kr. af hverju skjali.
3. Lántökugjald lánastofnunar - almennt í kringum 50þ., oft lægra eða ekkert lántökugjald fyrir fyrstu kaup. Nánari upplýsingar á heimasíðum lánastofnana.
4. Þjónustusamningur milli kaupanda og fasteignasölu - Kr. 92.380,- m/vsk.
Helgafell fasteignasala bendir kaupendum á ríka skoðunarskyldu sem kveðið er á í lögum um fasteignakaup nr.40/2002. Skorað er á kaupendur að kynna sér vandlega ástand fasteigna og nýta til þess aðstoð sérfræðinga. Sömuleiðis er bent á upplýsingaskyldu seljanda samanber 26.gr. Laga nr.40/2002 um fasteignakaup og 25.gr. laga nr.26/1994 um fjöleignarhús. Seljanda er bent á að kynna sér tilvitnaðar lagagreinar.