LANDMARK fasteignamiðlun og Sveinn Eyland, lögg. fasteignasali s: 6900 820 / sveinn@landmark.is kynna:Um er að ræða stórglæsilega og vel skipulagða þriggja herbergja 198.5 fm íbúð á fimmtu/efstu hæð í nýju lyftufjölbýli miðsvæðis á höfuðborgarsvæðinu í Hlíðarenda hverfinu.
Aðeins eru tvær íbúðir á hæðinni og er íbúð er með gólfsíðum gluggum, tvennum svölum, rúmgóðum bílskúr og sérmerktu stæði í lokaðri bílageymslu.
Aukin lofthæð, vönduð tæki í eldhúsi, vönduð blöndunartæki og vandaðar sérsmíðaðar innréttingar.ÍBÚÐ GETUR VERIÐ LAUS TIL AFHENDINGAR VIÐ KAUPSAMNING.**EIGENDUR SKOÐA SKIPTI Á SÉRBÝLI Á HÖFUÐBORGARSVÆÐINU**Birtar stærðir skv. Þjóðskrá Íslands:
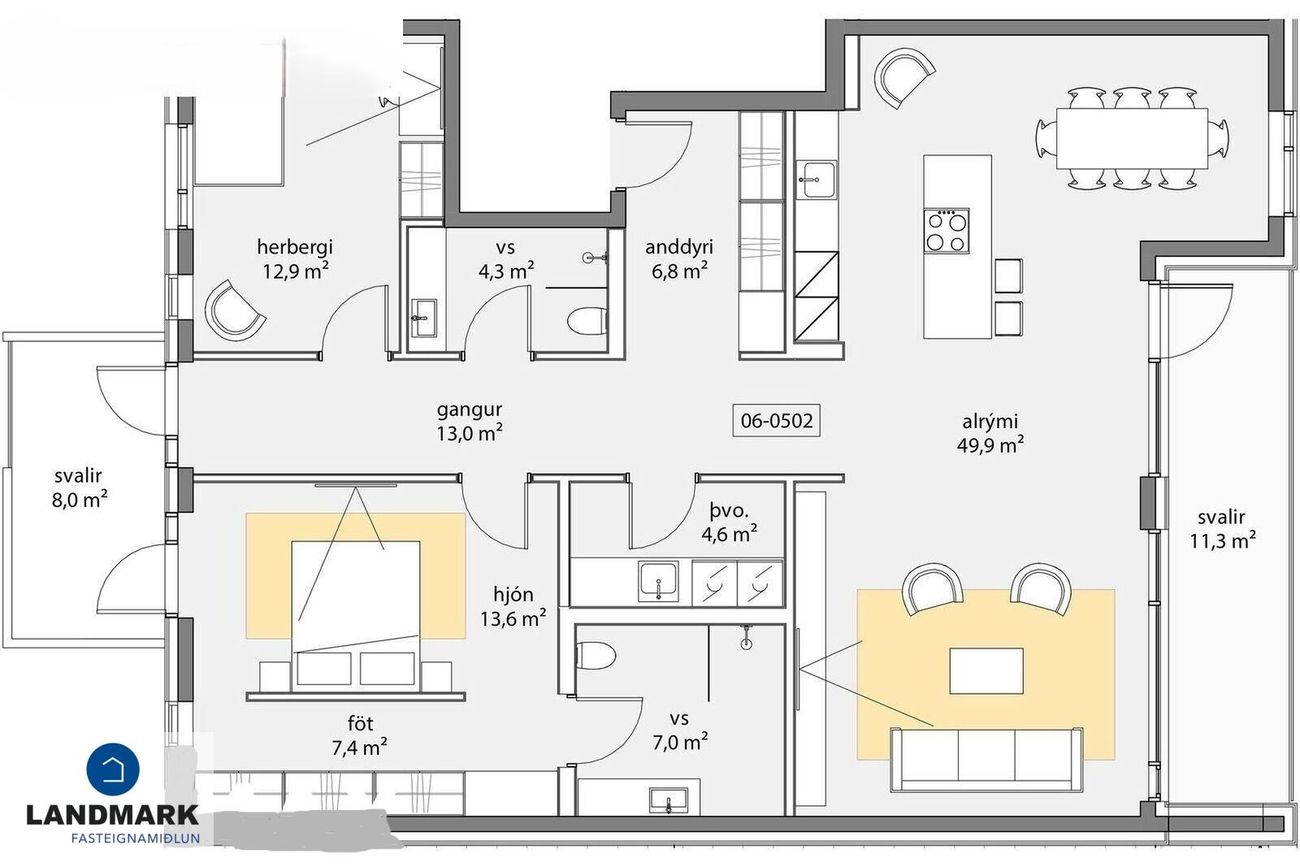
Íbúð er 141.1 fm merkt 06-05-02, sérgeymsla er 27.1 fm merkt 06-00-15 og bílskúr er 30.3 fm merktur 06-00-17 samtals 198.5 fm að stærð.
Að auki er stæði í bílgeymslu með íbúð merkt 12-E0-56.Nánari upplýsingar um eign:Sveinn Eyland lögg.fasteignasali s. 6900 820 eða
sveinn@landmark.isFÁÐU SENT SÖLUYFIRLIT YFIR EIGN STRAX HÉR.Eignin skiptist í:Forstofu, stofu, borðstofu, eldhús, hjónaherbergi með fataherbergi og baðherbergi innaf, rúmgott barnaherbergi, aðal baðherbergi, þvottahús, sérgeymslu, bílskúr og stæðis í lokaðri bílageymslu.
Tvennar rúmgóðar svalir með íbúð til vesturs og austurs.
Sameiginleg hjóla/vagnageymsla í kjallara.Nánari lýsing á eign:Komið er inn í rúmgóða
forstofu með innbyggðum fataskápum, aukin lofthæð er í allri íbúðinni.
Herbergjagangur er rúmgóður en gengið er úr honum í önnur rými íbúðar og í enda gangs er útgengt á
vestur-svalir.
Borðstofa, stofa og eldhús eru í opnu og björtu rými með gólfsíðum gluggum og er útgengi á
svalir sem snúa til suð-austurs úr stofu. Eldhús er opið inní borðstofu og stofu, eldhús er með vönduðum sérsmíðuðum dökkum innréttingum frá
HBH, KVARZ steinplötur frá Fígaró á borðplötu eldhúsinnréttingar, á eldhúseyju er helluborð með fallegum háf yfir og skilur eyja af eldhús og borðstofu.
Vönduð innbyggð tæki í eldhúsi
ísskápur með frysti, uppþvottavél og vínskápur.Hjónasvítan er stór og björt, fataherbergi með vönduðum innréttingum sem ná upp í loft.
Baðherbergi sem er innaf hjónaherbergi er flísalagt í hólf og gólf,
Walk-in sturta, snyrtileg innrétting með skúffum og hillum undir vask, speglaskápur á vegg, upphengt salerni og handklæðaofni.
Útgengi er úr
hjónasvítu á vestur-svalir sem snúa inn í fallegan inngarð.
Barnaherbergi er rúmgott með góðum fataskáp sem nær upp í loft.
Baðherbergi er með flísum á gólfi og veggjum, snyrtilegri innréttingu með skúffum og hillum undir vask, speglaskápur á vegg, upphengt salerni og handklæðaofni,
Walk-in sturta.Þvottaherbergi er verulega snyrtilegt með innréttingu undir þvottavél og þurrkara í vinnuhæð, borðplata með skolvaski.
Gólfefni: Vandað parket og flísar á gólfum íbúðar.
Í bílgeymslu er bílskúr 30.3 fm og er inngengt úr bílskúr í 27.1 fm sérgeymslu íbúðar og úr geymslunni er hurð inní á gang og er lyfta húseignar þar í sameigninni.
Sérmerkt stæði er í bílgeymslu búið er að leggja fyrir rafhleðslustöð í bílastæði.
Sameiginlegur inngarðurinn er til vesturs við húseign og er hann skjólgóður með góðri lýsingu, bekkjum og leiksvæði fyrir börn.-Vegna mikillar sölu undanfarið þá vantar mig allar tegundir eigna á skrá.
-Hafðu samband og ég kem og met eignina þína þér að kostnaðarlausu.
-Sveinn Eyland lögg.fasteignasali s: 6900.820 eða sveinn@landmark.isSkoðunar- og aðgæsluskylda:
Lög um fasteignakaup nr. 40/2002 kveða á um að kaupendur þurfi að skoða fasteignir vel áður en tilboð er gert. LANDMARK fasteignamiðlun ráðleggur kaupendum að skoða ástand eignar og leita sér aðstoðar sérfræðinga ef þörf er á nánari skoðun.
Söluyfirlit:
Söluyfirlit er gert af fasteignasala samkvæmt lögum nr. 70/2015. Upplýsingar í yfirlitinu eru fengnar úr opinberum skrám, frá seljanda og ef þarf frá húsfélagi. Fasteignasali sannreynir upplýsingar með skoðun á eigninni en getur ekki sannreynt ástand þess sem ekki er aðgengilegt eða sýnilegt, t.d. lagnir, dren, skólp og þak.
Gjöld sem kaupandi þarf að greiða:
1. Stimpilgjald: 0,8% af fasteignamati (0,4% fyrir fyrstu kaup) og 1,6% fyrir lögaðila.
2. Þinglýsingargjald: 3.800 kr. fyrir hvert skjal.
3. Lántökugjald: Fer eftir gjaldskrá lánveitanda.
3. Þjónustugjald kaupanda: 79.000 kr. m/vsk.
3. Skipulagsgjald: Ef um nýbyggingu er að ræða, 0,3% af brunabótamáti þegar það er lagt á.
Heimasíða LANDMARK
Pantaðu frítt söluverðmat