





Kíktu á dæmið með Aurbjörgu
































| Íbúð | Herbergi | Stærð | Síðasta ásetta verð | Síðasti kaupsamningur |
|---|
| Dags. | Stærð | Fermetraverð | Ásett |
|---|---|---|---|
| 24.04.2026 Nánar | 183,2 m² | 736.354 kr. | 134.900.000 kr. |
| 22.04.2026 Nánar | 183,2 m² | 741.812 kr. | 135.900.000 kr. |
| 16.04.2026 Nánar | 183,2 m² | 736.354 kr. | 134.900.000 kr. |
| 01.04.2026 Nánar | 183,2 m² | 736.354 kr. | 134.900.000 kr. |
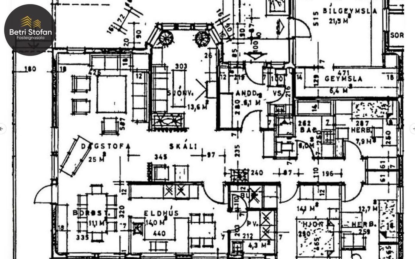
0101 ![]() | 5 | 183,20 m² | 134.900.000 kr. 24. apríl 2026 | - - |
0001 | - | - | - | - - |