| Íbúð | Herbergi | Stærð | Síðasta ásetta verð | Síðasti kaupsamningur |
|---|
Kíktu á dæmið með Aurbjörgu
| Dags. | Stærð | Fermetraverð | Ásett |
|---|---|---|---|
| 06.01.2024 Nánar | 93,7 m² | 778.015 kr. | 72.900.000 kr. |
| 05.01.2024 Nánar | 93,7 m² | 778.015 kr. | 72.900.000 kr. |
| Dags. | Kaupverð |
|---|---|
| 29. janúar 2024 | 69.000.000 kr. |
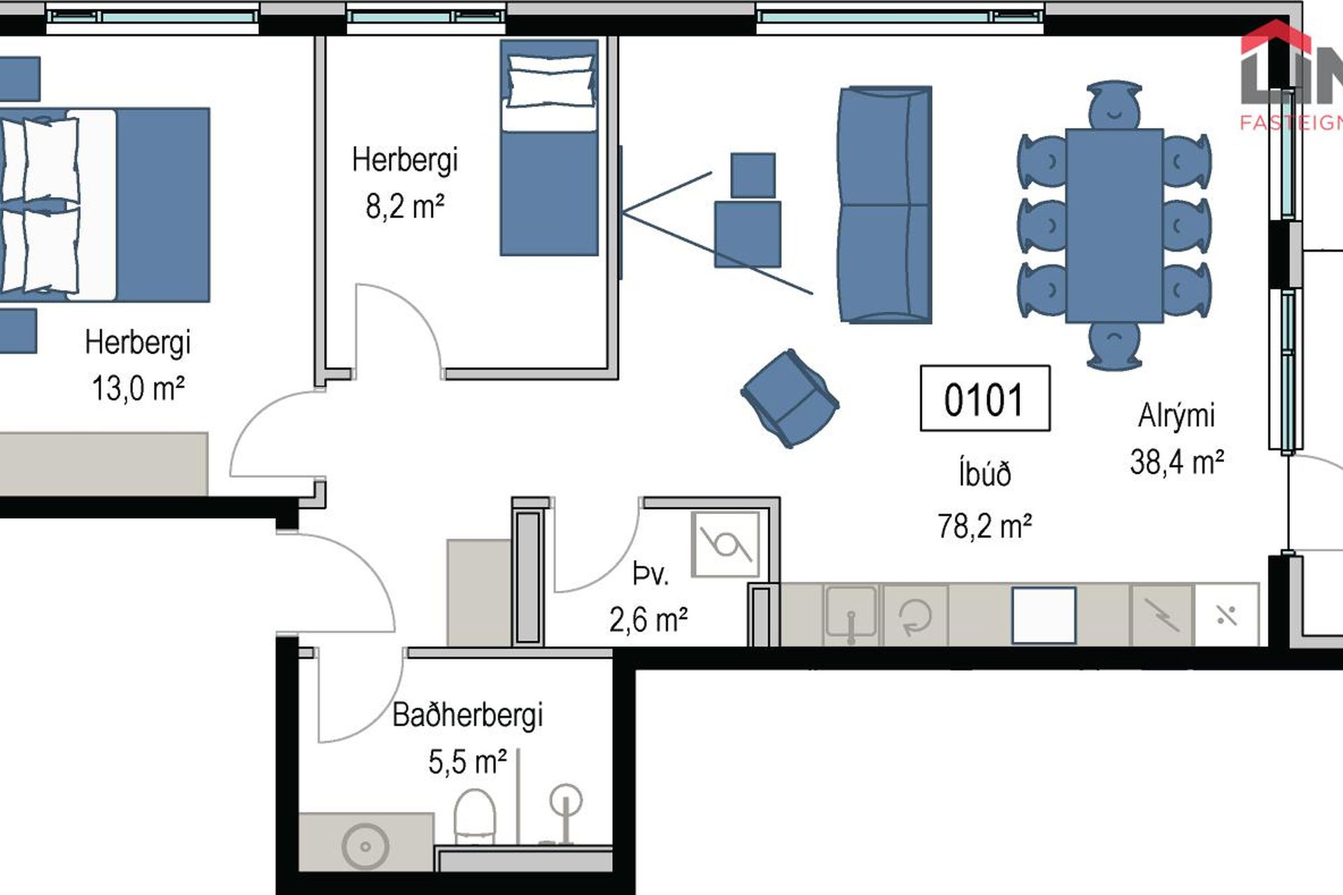
0101 ![]() | 3 | 93,70 m² | 72.900.000 kr. 6. janúar 2024 | 69.000.000 kr. 29. janúar 2024 |
| 4 | 123,10 m² | 88.900.000 kr. 6. janúar 2024 | 88.900.000 kr. 26. janúar 2024 |
| 5 | 120,80 m² | 93.900.000 kr. 20. febrúar 2025 | 93.900.000 kr. 7. mars 2025 |
| - | - | - | 94.900.000 kr. 18. febrúar 2025 |
| - | - | - | 61.900.000 kr. 21. febrúar 2024 |
| - | - | - | 69.000.000 kr. 16. janúar 2024 |
| - | - | - | 92.900.000 kr. 15. maí 2024 |
| - | - | - | 72.900.000 kr. 15. desember 2023 |
| - | - | - | 58.000.000 kr. 6. nóvember 2023 |
| - | - | - | 68.000.000 kr. 23. mars 2024 |
| 5 | 118,70 m² | 87.900.000 kr. 6. janúar 2024 | 87.000.000 kr. 6. nóvember 2023 |
| 3 | 91,70 m² | 69.000.000 kr. 6. janúar 2024 | 69.000.000 kr. 15. desember 2023 |
| 3 | 88,30 m² | 69.000.000 kr. 20. janúar 2024 | 69.000.000 kr. 1. mars 2024 |
| 2 | 69,30 m² | 61.900.000 kr. 20. janúar 2024 | 58.000.000 kr. 9. janúar 2024 |
| 3 | 93,60 m² | Tilboð 28. mars 2026 | 68.000.000 kr. 30. janúar 2024 |
| 2 | 72,90 m² | 58.000.000 kr. 25. nóvember 2023 | 58.000.000 kr. 12. desember 2023 |
0102 ![]() | 4 | 117,90 m² | 90.900.000 kr. 18. apríl 2026 | 88.500.000 kr. 31. mars 2025 |
0502 ![]() | 4 | 170,70 m² | 144.900.000 kr. 13. janúar 2026 | 142.000.000 kr. 16. mars 2026 |
0501 ![]() | 5 | 188,20 m² | 164.900.000 kr. 8. maí 2024 | 164.900.000 kr. 12. júní 2024 |
0202 ![]() | 5 | 122,20 m² | 94.900.000 kr. 15. janúar 2025 | 87.900.000 kr. 20. júní 2024 |
0104 ![]() | 4 | 170,70 m² | 149.900.000 kr. 27. janúar 2025 | 119.900.000 kr. 16. apríl 2024 |





