Domusnova og Ingunn Björg löggiltur fasteignasali kynna fallega, bjarta og vel staðsetta 4. herbergja íbúð með suðursvölum og bílskúr við Breiðvang í Norðurbæ Hafnarfjarðar. Skv. FMR eru heildarfermetrar íbúðar skráðir 120,7 fm2 þar af er bílskúr 23 fm2 og geymsla 5,1 fm2. Íbúðin er skráð 3. herbergja en bætt hefur verið við herbergi inn af stofu.
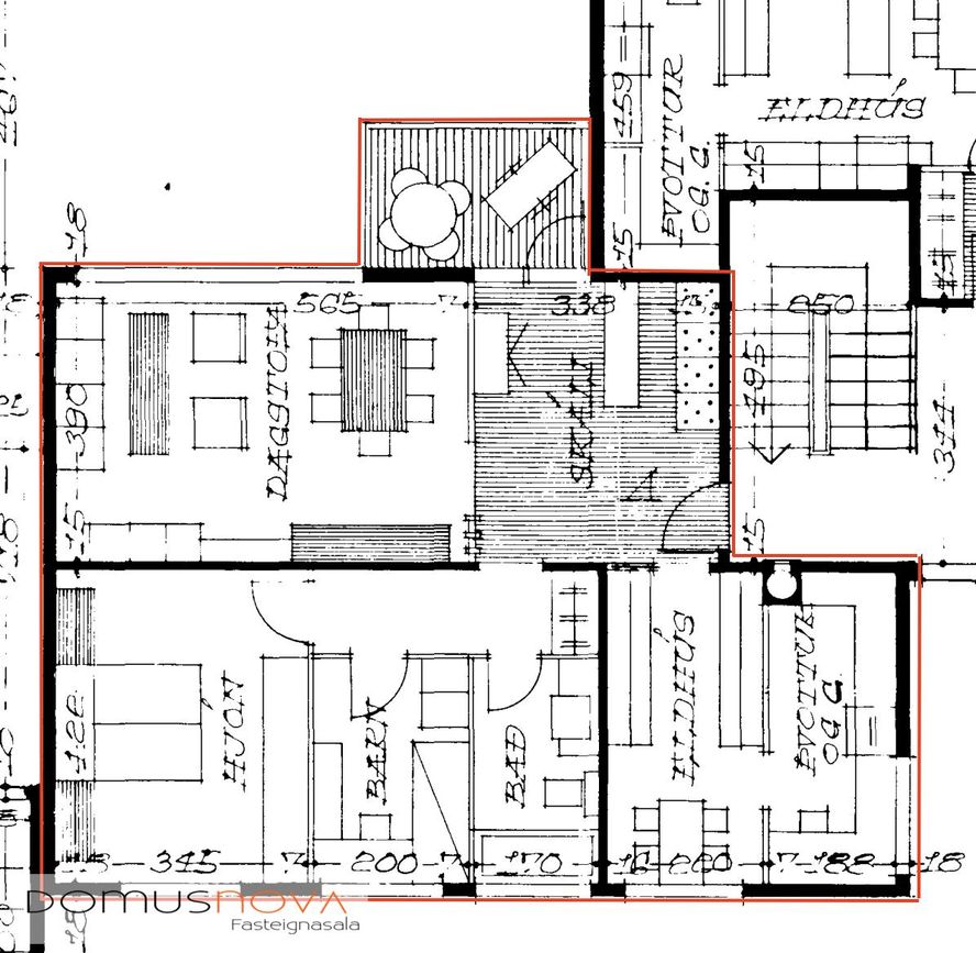
Skipulag eignarinnar er eftirfarandi: 3 svefnherbergi, stofa, baðherbergi, eldhús, rúmgott þvottahús / búr inn af eldhúsi, geymsla í kjallara, bílskúr með sérbílastæði fyrir framan, að auki eru næg bílastæði við húsið. Hitalögn í stétt frá bílskúr að inngangi húss.
Framkvæmdir við sameign að sögn seljanda: - 2026 Yfirstandandi framkvæmdir á ytra byrði húss, sem verða greiddar af seljanda, múrviðgerðir og málun, skipt verður um flesta glugga og svalahurðir í húsinu. Áætluð verklok sumar 2026.
- 2026 Skipt um frárennslislögn að gólfplötu í stigagangi nr 6. framkvæmdir munu verða greiddar af seljanda.
- 2020 Skipt um pappa og járn á þaki ásamt þakrennum.
- Hitalögn i stétt fyrir framan hús endurnýjuð að hluta, bætt við ruslatunnuskýlum.
Framkvæmdir innan íbúðar að sögn seljanda frá árinu 2018:- Baðherbergi endurnýjað, skipt um flísar og öll tæki.
- Skipt um borðplötur og tæki í eldhúsi.
- Gólfefni endurnýjuð í herbergjum, alrými og eldhúsi.
- Allar innihurðar endurnýjaðar.
- Skipt um ofn í einu svefnherbergi.
- Skipt um pappa á bílskúrsþaki.
Nánari lýsing eignar:
Forstofa: Flísar á gólfi.
Eldhús: Rúmgóð innrétting, skipt hefur verið um borðplötur, helluborð, ofn, háf, vask og blöndunartæki.
Þvottahús: Inn af eldhúsi er rúmgott þvottahús / búr með hillum, borðplata með vaski, tengi fyrir þvottavél og þurrkara undir henni. Gluggi með opnanlegu fagi.
Baðherbergi: Innrétting undir vaski, baðkar með sturtu, upphengt salerni, flísalagt gólf og veggir að hluta. Gluggi með opnanlegu fagi. Endurnýjað 2018.
Stofa: Rúmgóð og björt stofa. Harðparket á gólfi.
Hjónaherbergi: Rúmgott, lausir skápar, harðparket á gólfi.
Barnaherbergi 1: Harðparket á gólfi.
Barnaherbergi 2: Harðparket á gólfi, útgengt á suðursvalir, ( þessu herbergi var bætt við inn af stofu).
Bílskúr: Endabílskúr staðsettur í bílskúrslengju næst inngangi fyrir framan hús, stærð 23 fm2.
Geymsla: 5,1 fm í kjallara.Nánari upplýsingar veita:Ingunn Björg Sigurjónsdóttir löggiltur fasteignasali / s.856 3566 / ingunn@domusnova.is
Skrifstofa / s.527-1717 / eignir@domusnova.is
Um skoðunar- og aðgæsluskyldu:Í lögum um fasteignakaup nr. 40/2002 er kveðið á um ríka skoðunarskyldu kaupenda á fasteignum. DOMUSNOVA fasteignasala bendir væntanlegum kaupendum á að kynna sér vel ástand fasteigna við skoðun og fyrir tilboðsgerð og ef þurfa þykir að leita til sérfræðinga um nánari ástandsskoðun.
Forsendur söluyfirlits:Söluyfirlit er samið af fasteignasala í samræmi við ákvæði laga nr. 70/2015. Þær upplýsingar sem fram koma í söluyfirliti þessu eru sóttar í opinberar skrár, til seljanda sjálfs og eftir atvikum til húsfélags. Seljandi veitir upplýsingar um eign í samræmi við upplýsingaskyldu laga um fasteignakaup nr. 40/2002, og ábyrgist að þær séu réttar. Fasteignasali sannreynir að þær upplýsingar séu réttar með sjónskoðun á eigninni. Fasteignasali getur ekki fullyrt um ástand og eiginleika þeirra hluta fasteigna sem ekki eru aðgengilegir og sjást ekki berum augum, t.d. lagnir, dren, skólp og þak. Það sama á við um staðhæfingar seljanda eignar um viðhald og einstaka framkvæmdir.
Um ástand einstakra eignarhluta:Efst í söluyfirlitli þessu er að finna dálka um ástand einstakra hluta eignarinnar. Eftirfarandi lykil er til skýringar á þeirri skráningu:
Nýtt - Eignin er nýbygging.
Upprunalegt - Seljandi veit ekki til þess að byggingarhluti hafi verið endurnýjaður.
Endurnýjað - Byggingarhlutinn hefur verið endurnýjaður í heild sinni á einhverjum tímapunkti.
Endurnýjað að hluta - Hluti byggingarhlutans hefur verið endurnýjaður á einhverjum tímapunkti.
Ekki vitað - Seljandi þekkir ekki til ástands og ekki er hægt að leggja mat á það með sjónskoðun.
Gjöld sem kaupandi þarf að standa straum af vegna kaupanna:- Stimpilgjald af kaupsamningi sem er hlutfall af fasteignamati. Stimpilgjald er 0,8% fyrir einstaklinga (0,4% við fyrstu kaup) og 1,6% fyrir lögaðila.
- Þinglýsingargjald af kaupsamningi, veðskuldabréfum, veðleyfum o.fl. Þinglýsingargjald er kr. 2.700,- fyrir hvert skjal.
- Lántökugjald lánastofnunar. Um lántökugjald vísast í gjaldskrá viðkomandi lánveitanda.
- Umsýsluþóknun fasteignasölu skv. gjaldskrá.
- Ef um nýbyggingu er að ræða greiðir kaupandi skipulagsgjald, 0,3% af brunabótamáti, þegar það er lagt á.