| Íbúð | Herbergi | Stærð | Síðasta ásetta verð | Síðasti kaupsamningur |
|---|
| - | - | - | - - |
| 4 | 105,20 m² | 81.000.000 kr. 28. nóvember 2024 | 79.500.000 kr. 18. desember 2024 |
| - | - | - | 168.500.000 kr. 26. október 2023 |
| 2 | 59,10 m² | 51.500.000 kr. 20. mars 2024 | 51.500.000 kr. 23. janúar 2024 |
| 3 | 82,20 m² | 69.000.000 kr. 13. apríl 2026 | - - |
| - | - | - | 57.900.000 kr. 5. desember 2024 |
| - | - | - | 62.500.000 kr. 8. mars 2024 |
| 3 | 79,20 m² | 69.500.000 kr. 24. mars 2025 | 62.500.000 kr. 8. febrúar 2024 |
| 3 | 79,20 m² | 69.500.000 kr. 24. janúar 2025 | 62.500.000 kr. 26. apríl 2024 |
| 2 | 58,00 m² | 57.900.000 kr. 11. febrúar 2026 | 51.500.000 kr. 27. desember 2023 |
| - | - | - | 51.500.000 kr. 9. janúar 2024 |
| - | - | - | 51.500.000 kr. 17. janúar 2024 |
| - | - | - | 66.500.000 kr. 28. júní 2024 |
| 3 | 109,90 m² | 86.000.000 kr. 23. júní 2024 | 86.000.000 kr. 22. maí 2024 |
Kíktu á dæmið með Aurbjörgu
| Dags. | Kaupverð |
|---|---|
| 23. maí 2025 | 68.900.000 kr. |
| - | - | - | 58.100.000 kr. 9. janúar 2024 |
0207 | - | - | - | - - |
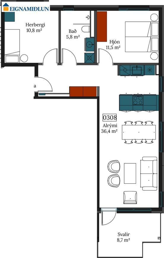
0308 ![]() | 3 | 82,00 m² | 69.500.000 kr. 3. júní 2025 | 68.900.000 kr. 23. maí 2025 |
0503 ![]() | 3 | 80,30 m² | 69.000.000 kr. 5. febrúar 2025 | 69.000.000 kr. 27. nóvember 2024 |