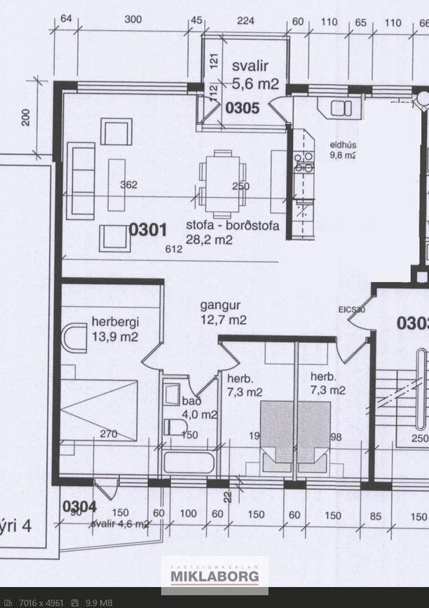
Miklaborg kynnir: Virkilega falleg og björt fjögurra herbergja íbúð á þriðju hæð við Álftamýri 6, Reykjavík. Skv. skráningu HMS er eignin samtals 139,9 fm að stærð og skiptist í íbúðarými 100,5 fm, tvennar geymslur 11,3 fm og 5,6 fm og bílskúr 22,5 fm. Íbúðin skiptist í forstofu, eldhús, stofu/borðstofu, baðherbergi og þrjú svefnherbergi.
Búið er að breyta eldhúsi frá upprunalegum teikningum. Ný glæsileg innrétting frá HTH.
Um er að ræða virkilega bjarta og rúmgóða eign á vinsælum stað, miðsvæðis í Reykjavík í húsi sem hefur fengið gott viðhald undanfarin ár. Möguleiki er að bæta við fjórða svefnherberginu þar sem borðstofan er.
Örstutt frá leik- og grunnskóla og íþróttasvæði Víkings í Safamýri.
Allar nánari upplýsingar veitir Ingimundur Ingimundarson löggiltur fasteignasali, í síma 867-4540 eða ingimundur@miklaborg.is
Forstofa með flísum á gólfi. Stór fataskápur.
Eldhús mjög rúmgott með glæsilegri innréttingu frá HTH. Gott skápapláss. Flísar á gólfi. Frá eldhúsi er útgengt út á svalir sem snúa í suður.
Stofa/borðstofa saman í opnu og rumgóðu rými. Bjart rými og stórir gluggar í suður. Frá stofu gengið út á svalir sem snúa í suður. Parket á gólfi.
Baðherbergi flísalagt með baðkari og sturtu.
Hjónaherbergi með parket á gólfi. Nýlegur sérsmiðaður fataskápur frá HTH. Útgengt út á svalir með glæsilegu útsýni í átt að Esjunni.
Barnaherbergi með fataskáp. Parket á gólfi.
Barnaherbergi/forstofuherbergi með fataskáp.
Tvær geymslur fylgja eigninni niðri á geymslugangi og eru þær 11,3 fm og 5,6 fm að stærð. Báðar með glugga.
Bílskúr er með heitu og köldu vatni og búið er að leggja fyrir hleðslustöð framan á bílskúrnum. Sér og öflugt húsfélg er um bílskúrana.
Viðhald undanfarin ár :
Álftamýri 2, 4 og 6
2024. Skipt um alla glugga og hurðir. Múrviðgerðir og málað.
2018 Skipt um járn á þaki.
2015 Skólp endurnýjað og fært út fyrir grunn. Lagt dren og gagnstétt endurnýjuð með snjóbræðslu.
Álftamýri 6
2019. Stigagangur málaður og skipt um teppi. 2025. Hitaveitugrind endurnýjuð.
Bílskúrar
2026. Tengt fyrir rafhleðslustöðvar.
2023. Dúkur lagður á þak.
2022. Múrviðgerðir og málað.
2014. Múrviðgerðir og málað. Skipt um glugga.
Íbúð 301
2025 Flotað eldhús, forstofa og eitt herbergi. Flísar lagðar í forstofu og eldhúsi. Ný eldhúsinnrétting frá HTH og ný tæki frá Ormsson.
Allar nánari upplýsingar veitir Ingimundur Ingimundarson löggiltur fasteignasali, í síma 867-4540 eða ingimundur@miklaborg.is






Kíktu á dæmið með Aurbjörgu

























| Íbúð | Herbergi | Stærð | Síðasta ásetta verð | Síðasti kaupsamningur |
|---|
| Dags. | Stærð | Fermetraverð | Ásett |
|---|---|---|---|
| 22.04.2026 Nánar | 139,9 m² | 599.714 kr. | 83.900.000 kr. |
| Dags. | Kaupverð |
|---|---|
| 13. mars 2018 | 35.000.000 kr. |
| 30. desember 2013 | 28.900.000 kr. |
0301 ![]() | 4 | 139,90 m² | 83.900.000 kr. 22. apríl 2026 | 35.000.000 kr. 13. mars 2018 |
0001 ![]() | 1 | 49,30 m² | 43.500.000 kr. 28. ágúst 2023 | 42.000.000 kr. 13. nóvember 2023 |
0202 | - | - | - | - - |
| - | - | - | 22.400.000 kr. 6. október 2006 |
0201 | - | - | - | 47.000.000 kr. 4. febrúar 2020 |
| - | - | - | 23.750.000 kr. 9. október 2007 |
| - | - | - | 79.900.000 kr. 3. febrúar 2025 |
0101 ![]() | 5 | 137,90 m² | 79.900.000 kr. 18. desember 2024 | 78.900.000 kr. 16. september 2022 |
0102 ![]() | 4 | 126,60 m² | 80.900.000 kr. 6. október 2025 | 78.000.000 kr. 26. nóvember 2025 |