LANDMARK fasteignamiðlun ehf. og Þórarinn Thorarensen Löggiltur fasteignasali (s: 770 0309 / ) og félagsmaður í Félagi fasteignasala kynna: Bjarta og vel skipulagða 4ra herbergja endaíbúð á 1. hæð (gengið beint inn) með rúmgóðum suðursvölum ásamt stæði í bílageymslu. Frábær staðsetning við Álfkonuh... Sýna meira
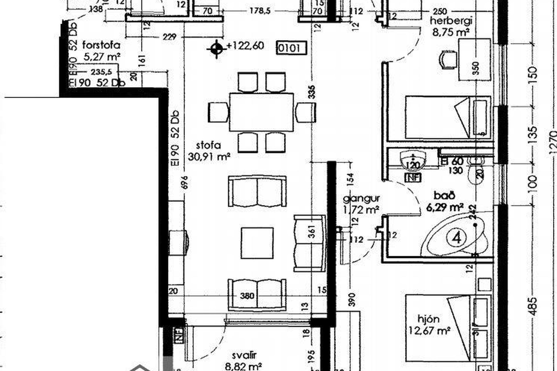
LANDMARK fasteignamiðlun ehf. og Þórarinn Thorarensen Löggiltur fasteignasali (s: 770 0309 / ) og félagsmaður í Félagi fasteignasala kynna: Bjarta og vel skipulagða 4ra herbergja endaíbúð á 1. hæð (gengið beint inn) með rúmgóðum suðursvölum ásamt stæði í bílageymslu. Frábær staðsetning við Álfkonuhvarf í Kópavogi þar sem stutt er í fallegar gönguleiðir og alla helstu þjónustu, skóla, leikskóla, matvörubúð o.m.fl. Eigninni fylgir eins og áður sagði stæði í bílageymslu ásamt hlutdeild í sameign og sér geymsla í kjallara. Eignin skiptist í forstofu, eldhús, stofu og borðstofu í opnu rými, þrjú svefnherbergi, baðherbergi og sér þvottahús.Eignaskiptsamningur: Eignin er fjögurra herbergja íbúð á 1. hæð í húsi nr 23. Eigninni tilheyrir geymsla í kjallara merkt: 00-11. Eigninni tilheyrir bílastæði merkt: B02, hlutdeild í sameign sumra (Y1). Eigninni tilheyrir hlutdeild í sameign allra (X). Eigninni tilheyrir svalir merktar 0119.Nánari lýsing:Forstofa, með fataskáp, flísar á gólfi.Þvottahús, innaf forstofunni er þvottahús með hillum og glugga, flísar á gólfi.Stofa og borðstofa, opið og bjart rými, parket á gólfi og útgengt út á stórar flísalagðar suðursvalir með fallegu útsýni.Eldhús, með fallegri eikarinnréttingu, flísar á milli efri og neðri skápa, granít borðplata, gashelluborð, gluggi, flísar á gólfi.Þrjú góð svefnherbergi og eru þau öll með fataskáp og parketi á gólfi. Fallegt útsýni úr hjónaherbergisglugga.Baðherbergi, flísalagt í hólf og gólf, upphengt salerni, hornbaðkar og gluggi.Geymsla, mjög rúmgóð 10,4 fm geymsla í sameign með hillum.Bílageymsla, eigninni fylgir eins og áður sagði mjög gott stæði í lokuðum bílakjallara.ÞETTA ER MJÖG BJÖRT OG FALLEG EIGN ÞAR SEM ER STUTT Í ALLA HELSTU ÞJÓNUSTU T.A.M LEIKSKÓLA, SKÓLA, WORLD CLASS, BÓNUS, 24 MATHÚS & BAR, APÓTEK O.M.FL. EINNIG ER STUTT Í FALLEGAR GÖNGULEIÐIR OG ÚTIVISTAPERSLUNA ELLIÐAVATN. Allar nánari upplýsingar veitir og bókun á skoðunartíma: Þórarinn Thorarensn Löggiltur fasteignasali í síma 770 0309 / Um skoðunar- og aðgæsluskyldu:Í lögum um fasteignakaup nr. 40/2002 er kveðið á um ríka skoðunarskyldu kaupenda á fasteignum. LANDMARK fasteignamiðlun bendir væntanlegum kaupendum á að kynna sér vel ástand fasteigna við skoðun og fyrir tilboðsgerð og ef þurfa þykir að leita til sérfræðinga um nánari ástandsskoðun.Forsendur söluyfirlits:Söluyfirlit er samið af fasteignasala í samræmi við ákvæði laga nr. 70/2015. Þær upplýsingar sem fram koma í söluyfirliti þessu eru sóttar í opinberar skrár, til seljanda sjálfs og eftir atvikum til húsfélags. Seljandi veitir upplýsingar um eign í samræmi við upplýsingaskyldu laga um fasteignakaup nr. 40/2002. Fasteignasali sannreynir að þær upplýsingar séu réttar með sjónskoðun á eigninni.Fasteignasali getur ekki fullyrt um ástand og eiginleika þeirra hluta fasteigna sem ekki eru aðgengilegir og sjást ekki berum augum, t.d. lagnir, dren, skólp og þak.Gjöld sem kaupandi þarf að standa straum af vegna kaupanna:1.Stimpilgjald af kaupsamningi sem er hlutfall af fasteignamati. Stimpilgjald er 0,8% fyrir einstaklinga (0,4% við fyrstu kaup) og 1,6% fyrir lögaðila.2. Þinglýsingargjald af kaupsamningi, veðskuldabréfum, veðleyfum o.fl. Þinglýsingargjald er kr. 2.500,- fyrir hvert skjal.3. Lántökugjald lánastofnunar. Um lántökugjald vísast í gjaldskrá viðkomandi lánveitanda.4. Umsýslugjald kaupanda kr. 69.900. 5. Þegar um nýbyggingu er að ræða greiðir kaupandi skipulagsgjald, 0,3% af endanlegu brunabótamáti, þegar það er lagt á.Heimasíða LANDMARK fasteignamiðlunarFáðu frítt sölumat á eignina þína HÉRNA