LIND Fasteignasala og Guðmundur Hallgrímsson Lgf. kynna Álfaheiði 16.
Vel skipulagt einbýlishús á frábærum stað í Kópavogi.
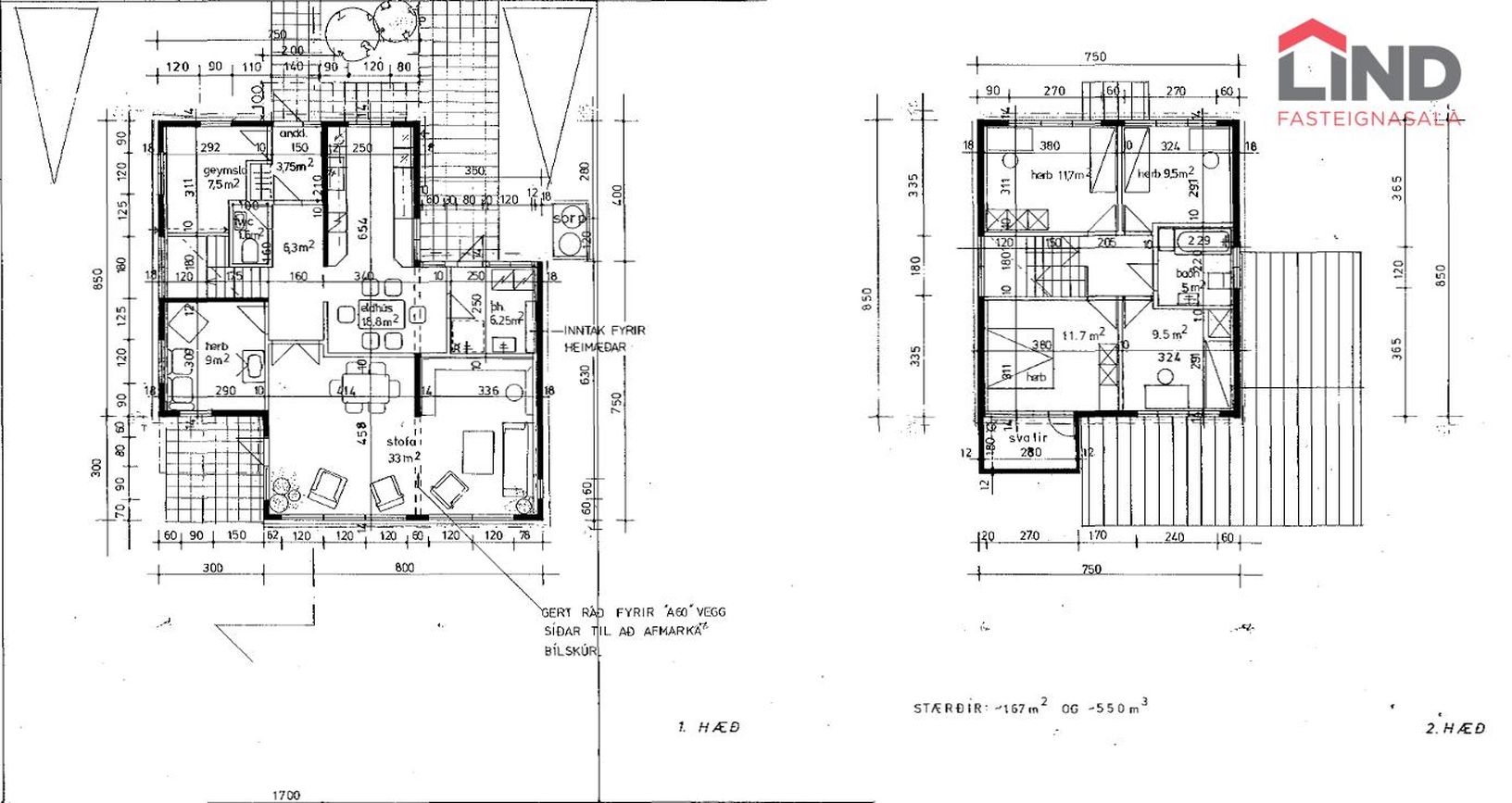
Eignin skiptist í stofu, eldhús, fimm svefnherbergi, baðherbergi, gestasalerni, þvottahús og geymslu.Nánari lýsing:
Neðri hæð:· Forstofa: Með fatahengi og flísum á gólfi.
· Geymsla: Með gluggum til norðurs og vesturs. Möguleiki á að nýta sem þvottahús.
· Eldhús: Með góðri innréttingu og parketi. Gluggar til norðurs og austurs.
· Þvottahús: Innaf eldhúsi, útgengt á bílastæði. Gluggi til norðurs.
· Stofa / borðstofa: Opið og bjart rými. Gluggar til suðurs og vesturs, útgengi í garð.
· Svefnherbergi I: Parketlagt, gluggi til vesturs (nýtt sem sjónvarpsherbergi).
· Gestasalerni: Flísalagt með salerni og vaski.
Efri hæð:· Stigahol: Með lúgu á geymsluloft.
· Hjónaherbergi: Með skápum og parketi. Gluggar til norðurs.
· Svefnherbergi II: Með parketi og skápum. Gluggi til norðurs.
· Svefnherbergi III: Með parketi og skáp. Gluggi til suðurs.
· Svefnherbergi IV: Með parketi, glugga til suðurs og útgengi á svalir.
Möguleiki er að bæta við bílskúr á kostnað núverandi þvottahúss og hluta af stofu.Lóð:· Lóðin er gróin með hellulagðri verönd og grasflöt. Snýr til suðurs og vesturs.
· Tvö bílastæði eru framan við húsið.
· Geymsluskúr er á lóð.
· Húsið er enangraða að utan og klætt með stáli.
Leikskóli, grunnskóli og tónlistarskóli í göngufæri.
Stutt í alla helstu þjónustu.
Helstu endurbætur:· 2008–2009: Eldhús og Baðherbergi á efri hæð endurnýjað.
· 2021–2022: Gler (suður/austur), eldhúsgluggi, svalahurð á efri hæð.
· 2022: Gestasalerni – nýr vaskur og salerni
· 2025: Blöndunartæki í eldhúsi endurnýjuð
Allar frekari upplýsingar um eignina veitir
Guðmundur Hallgrímsson Löggiltur fasteignasali í síma 898-5115 / Gudmundur@fastlind.is -Vegna mikillar eftirspurnar vantar allar tegundir eigna á skrá.
-Hafðu samband og við verðmetum eignina þína þér að kostnaðarlausu.
Gjöld sem kaupandi þarf að standa straum af vegna kaupanna:
1. Stimpilgjald af kaupsamningi - 0,4% (fyrstu kaup), 0,8%(einstaklingar) 1.6% (lögaðilar) af heildarfasteignamati.
2. Lántökugjald af veðskuldabréfi mishátt milli lánastofnuna. Nánari upplýsingar á t.d. heimasíðu lánastofnana.
3. Þinglýsingargjald af kaupsamningi, veðskuldabréfi, mögulegu veðleyfi o.fl. - kr. 3.800 af hverju skjali.
4. Umsýslugjald til fasteignasölu 74.900,