Laust til leigu, svefnherbergi með aðgangi að eldhúsi, stofum, þremur baðherbergjum ofl. Húsgögn fylgja sameiginlegum svæðum. Uppþvottavél, þvottavél og þurrkari fylgja ásamt ísskáp. Innifalið í leigu er internet, hiti og rafmagn. Leiguverð 170.000kr með öllu. Áhugasamir senda tölvupóst á hannes@fastlind.is með upplýsingum um sig svo sem nafn kennitöluatvinnu og annað sem viðkomandi telur skipta máli.
Hæðin með sérinngangi og er 195 fm í það heila. Hægt að leigja allt að fimm svefnherbergjum. Möguleiki á að leigja bílastæði að auki.
Áhugasamir senda tölvupóst á hannes@fastlind.is með upplýsingum um sig svo sem nafn kennitöluatvinnu og annað sem viðkomandi telur skipta máli.
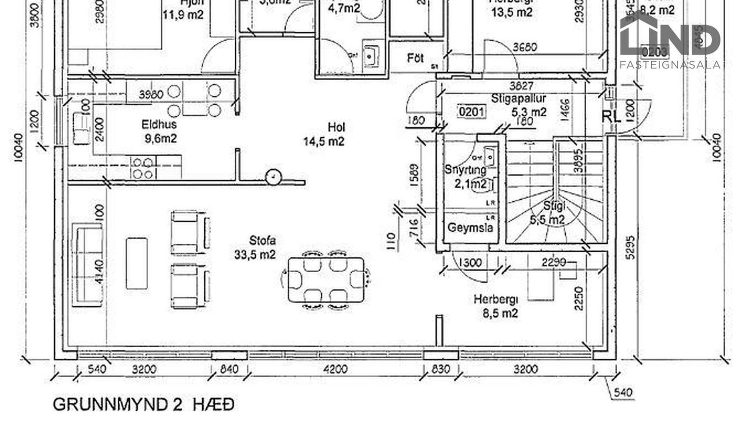
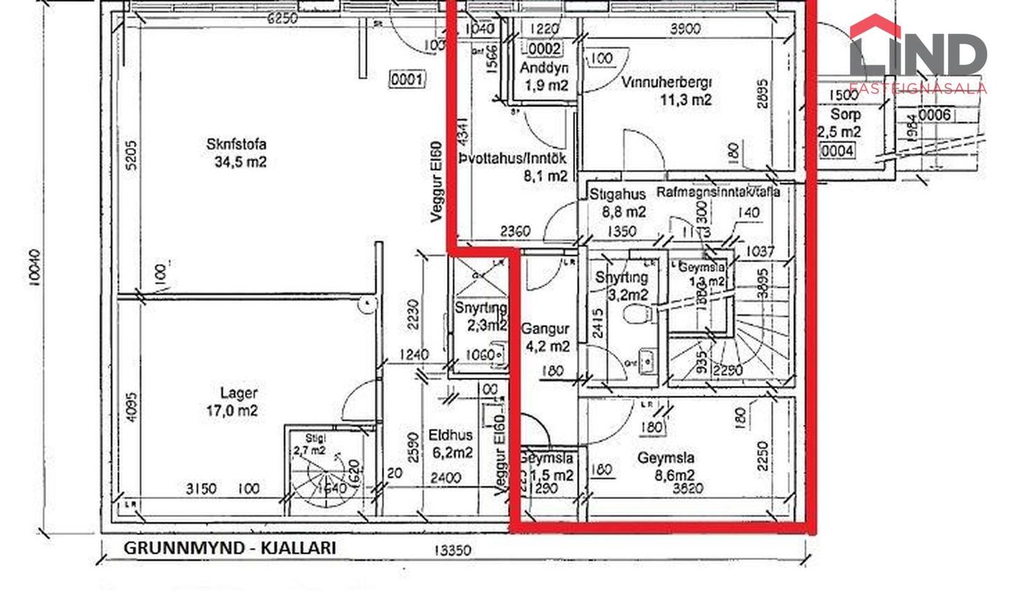
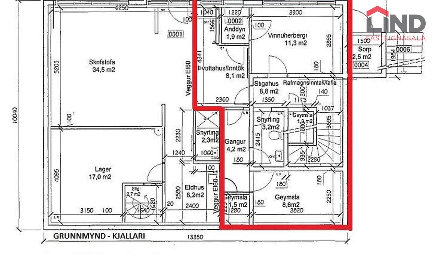
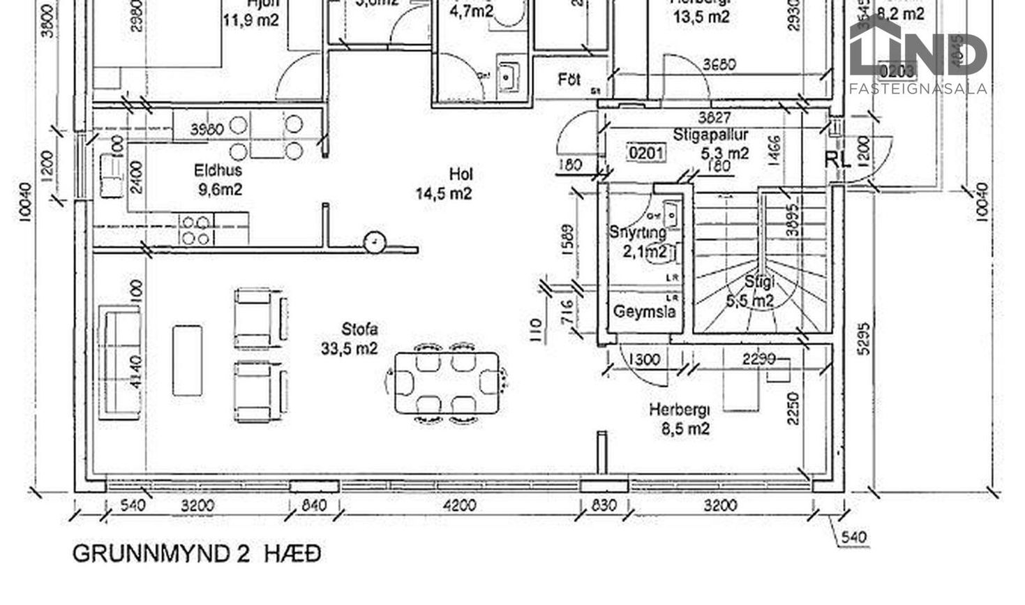
Nánari lýsing. Fjögur rúmgóð svefnherbergi (möguleiki að loka af 5. Svefnherberginu), tvö baðherbergi og eitt gestasalerni, stofa, möguleiki á sjónvarpsstofu. Sérinngangur á austurgafli hússins þar sem gengið er bæði upp á hæð og niður í kjallara. Stigapallur: Rúmgott herbergi, gestasnyrting og útgengi á austur svalir. Hol: Rúmgott, parketlagt hol þaðan sem gengt er í önnur rými íbúðar. Stofa: Bjart, parketlagt rými. Skv. teikningu er gert ráð fyrir stofu og borðstofu í opnu rými en borðstofan hefur verið stúkuð af sem herbergi. Eldhús: Hvít innrétting, borðkrókur og gluggi. Baðherbergi: Flísalagt baðherbergi með baðkari. Herbergi: Innan íbúðar eru samtals 4 svefnherbergi, öll rúmgóð Þvottahús: Innan íbúðar. Kjallari: Sérinngangur í kjallara Kjallarinn er samtals 61,6 fm og skiptist í stórt herbergi, baðherbergi þvottahús og geymslur/sjónvarpsrými. Allar upplýsingar veitir: Hannes Steindórsson hannes@fastlind.is
64 myndir
Húsnæðislán
Kíktu á dæmið með Aurbjörgu
kr.
kr.
ár
kr.
Vesturgata 42 - 0201, 101 Reykjavík skráð 12.04.2026