Um skoðunar- og aðgæsluskyldu:
Í lögum um fasteignakaup nr. 40/2002 er kveðið á um ríka skoðunarskyldu kaupenda á fasteignum. Fasteignasala Mosfellsbæjar skorar því á væntanlega kaupendur að kynna sér vel ástand fasteigna fyrir kauptilboðsgerð og leita til þar til bærra sérfræðinga um nánari skoðun ef með þarf.
Forsendur söluyfirlits:
Söluyfirlit er samið af fasteignasala í samræmi við ákvæði laga nr. 70/2015. Þær upplýsingar sem fram koma í söluyfirliti þessu eru sóttar í opinberar skrár, til seljanda sjálfs og eftir atvikum til húsfélags. Seljandi veitir upplýsingar um eign í samræmi við upplýsingaskyldu laga um fasteignakaup nr. 40/2002. Fasteignasali sannreynir að þær upplýsingar séu réttar með sjónskoðun á eigninni.
Fasteignasali getur ekki fullyrt um ástand og eiginleika þeirra hluta fasteigna sem ekki eru aðgengilegir og sjást ekki berum augum, t.d. lagnir, dren, skólp og þak.
Gjöld sem kaupandi þarf að greiða vegna kaupa:
1. Stimpilgjald af kaupsamningi sem er hlutfall af fasteignamati. Stimpilgjald er 0,8% fyrir einstaklinga (0,4% við fyrstu kaup) og 1,6% fyrir lögaðila.
2. Þinglýsingargjald af kaupsamningi, veðskuldabréfum, veðleyfum o.fl. Þinglýsingargjald er kr. 2.700,- fyrir hvert skjal.
3. Lántökugjald lánastofnunar - er skv. gjaldskrá viðkomandi lánastofnunar.
4. Umsýslugjald til fasteignasölu skv. kauptilboði.
5. Þegar um nýbyggingu er að ræða greiðir kaupandi skipulagsgjald, 0,3% af endanlegu brunabótamáti, þegar það er lagt á af viðkomandi sveitarfélagi.
Kíktu á dæmið með Aurbjörgu
| Íbúð | Herbergi | Stærð | Síðasta ásetta verð | Síðasti kaupsamningur |
|---|
| Dags. | Kaupverð |
|---|---|
| 20. ágúst 2021 | 62.000.000 kr. |
| 21. júní 2018 | 47.000.000 kr. |
0105 ![]() | 3 | 85,70 m² | 64.900.000 kr. 15. september 2022 | 65.000.000 kr. 14. nóvember 2022 |
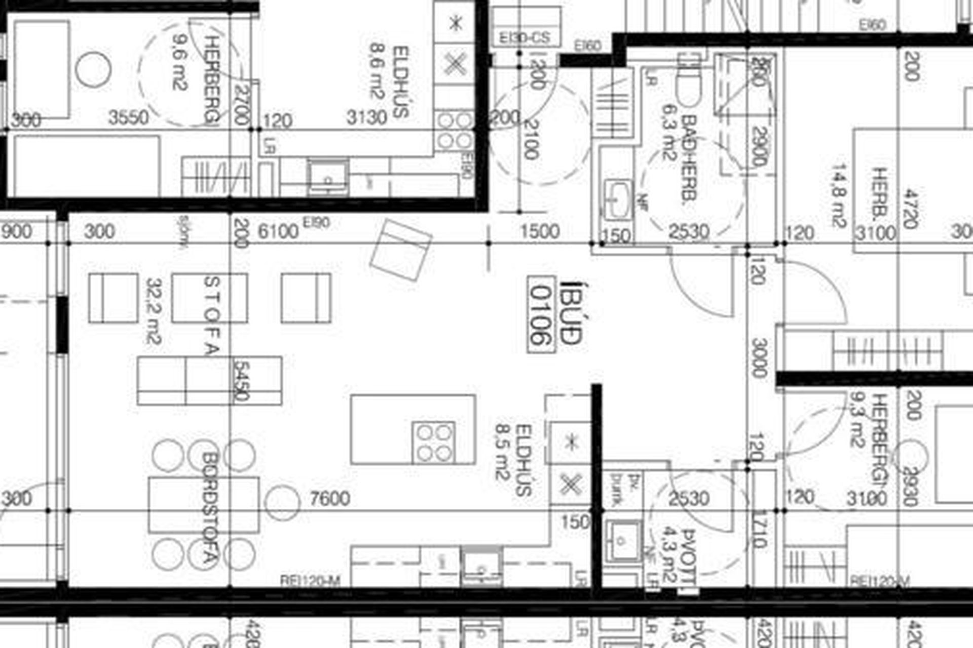
0106 ![]() | 3 | 110,70 m² | 81.000.000 kr. 26. mars 2026 | 62.000.000 kr. 20. ágúst 2021 |
0104 | - | - | - | 49.500.000 kr. 3. október 2018 |
0205 | - | - | - | 41.000.000 kr. 6. febrúar 2018 |
| - | - | - | 47.500.000 kr. 14. ágúst 2017 |
| - | - | - | 28.567.000 kr. 2. maí 2022 |
0304 | - | - | - | 56.000.000 kr. 9. júlí 2018 |
0206 | - | - | - | 75.900.000 kr. 22. júní 2023 |
0204 | - | - | - | 54.200.000 kr. 24. maí 2018 |