Hólmar Björn Sigþórsson löggiltur fasteignasali og Helgafell fasteignasala kynna í einkasölu Þurárhraun 31, 815 Þorlákshöfn:Um er að ræða einstaklega fallegt og vel skipulagt 5 herbergja nýlegt einbýlishús á einni hæð með innbyggðum bílskúr í jaðri byggðar með fallegu útsýni. Birt stærð er alls 191 fm. og þar af er innangengur bílskúr 40,5 fm.
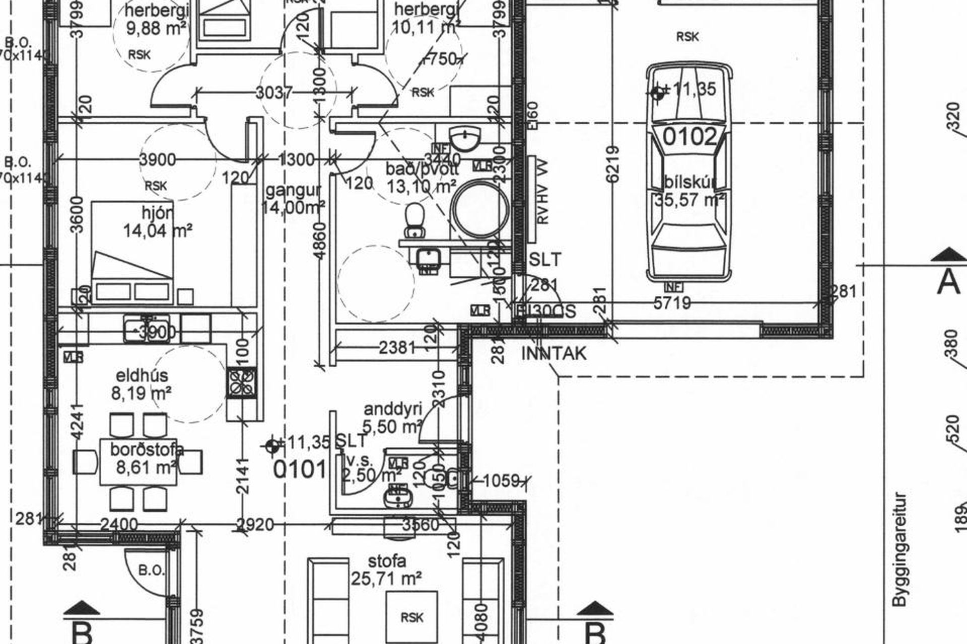
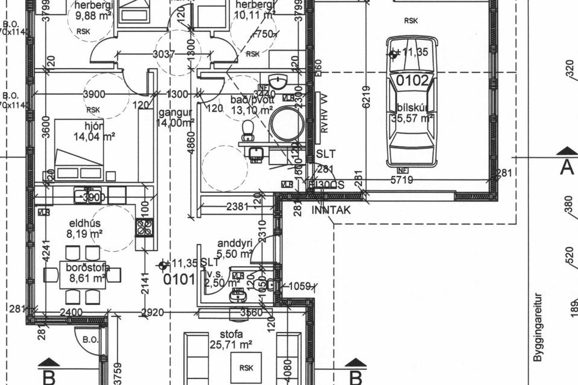
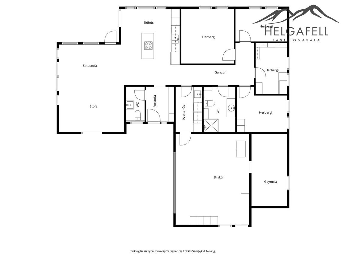
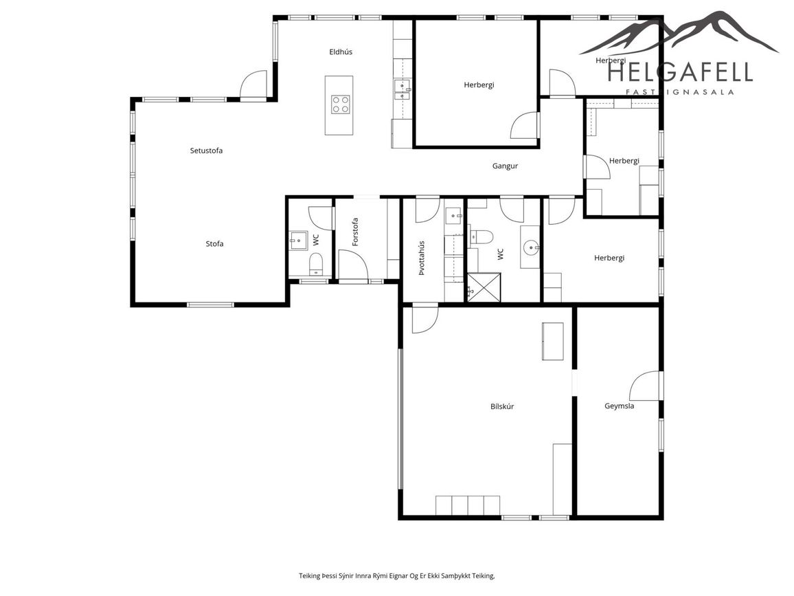
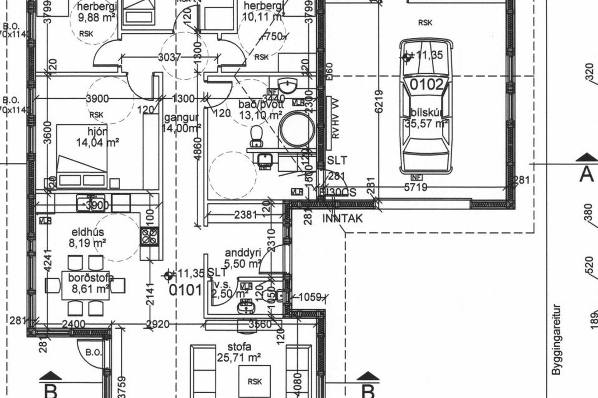
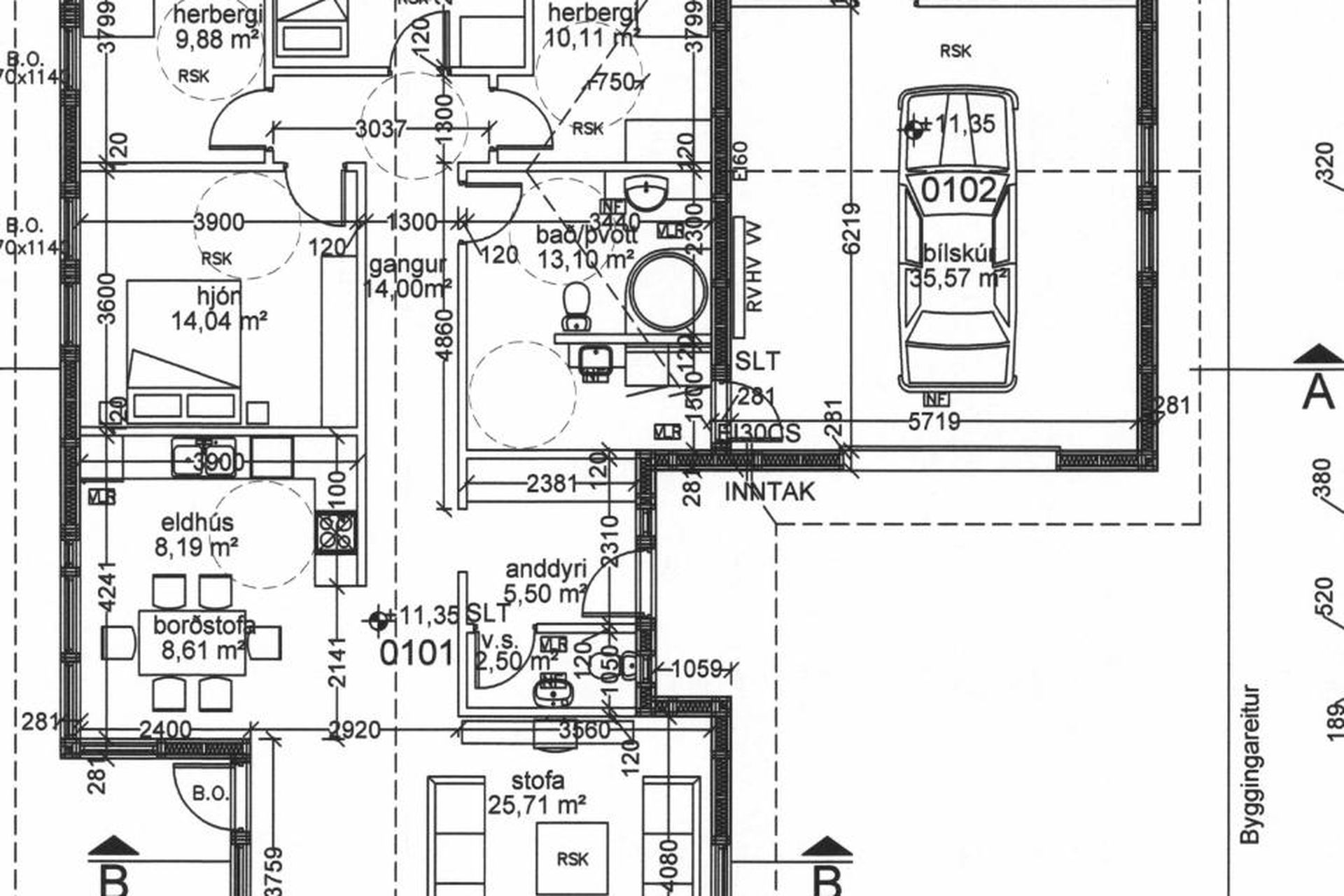
SMELLIÐ HÉR TIL AÐ FÁ SENT SÖLUYFIRLIT STRAXSkipulag eignar: Anddyri, í alrými er stofa / borðstofa og eldhús, 4 svefnherbergi, gangur, baðherbergi, þvottahús, gestasalerni og bílskúr / geymsla.
Nánari lýsing: Anddyri: Rúmgóð með hvítum fataskápum, flísar á gólfi.
Stofa / borðstofa: Í rúmgóðu og björtu alrými með eldhúsi, parket á gólfi. Útgengi út á ca. 71 fm sólpall (vestur- norður) með ljósum og rafmagnstenglum og heitum pott.
Eldhús: Glæný eldhúsinnrétting. Í alrými með stofu / borðstofu. Ný og glæsileg innrétting frá Axis, stór eyja með skúffum, borðplata og plata milli skápa er frá Fanntófell, tveir bakarofnar (Epoq frá Elko) og er annar þeirra örbylgjuofn og bakaraofn (combi), innbyggð uppþvottavél, ísskápur fylgir ekki með, spanhelluborð á eyju með innbyggðri viftu, parket á gólfi.
Baðherbergi: Rúmgott, með fallegri svartri innréttingu, speglaskápur með innfelldri lýsingu, hvítur skápur, vegghengt salerni, handklæðaofn, walk in sturta, tengi er fyrir þvottavél og þurrkara, flísalagt í hólf og gólf.
Gestasnyrting: Inn af forstofu, svört innrétting, vegghengt salerni, flísar á gólfi og salerniskassa.
Hjónaherbergi: Rúmgott, parketi á gólfi.
Svefnherbergi 2: Notað sem fataherbergi. Rúmgott, hvítir opnir fataskápar, parketi á gólfi.
Svefnherbergi 3: Gott, parketi á gólfi.
Svefnherbergi 4: Gott, með svörtum fataskáp, parketi á gólfi.
Gangur: Parket á gólfi.
Þvottahús: Með hvítri innréttingu fyrir þvottavél og þurrkara í vinnuhæð, efri skápar, vinnuborð og vaskur, innangengt í bílskúr, í rýminu er niðurfall fyrir salerni og sturtu, flísar á gólfi.
Bílskúr / geymsla: Bílskúrinn er 40,5 fm, innangengt úr þvottahúsi, grænn skápur sem getur fylgt með, hitastýring fyrir heita pottinn, epoxy á gólf. Geymsla er inn af bílskúr með glugga og hurð út á baklóð.
Auðvelt er að gera séríbúð í bílskúr og þvottahúsi, allar lagnir eru til staðar sem er kostur.Húsið: Húsið er byggt 2023 og er álklætt timburhús með vandaðri álklæðningu, gluggar og hurðir úr áli / tré eru frá frá Byko. Gólfhiti er í flestum rúmum. Rafhleðslustöð.
Lóð: Vel staðsett 928,1 fm jaðarlóð. Fyrir framan húsið er ca. 71 fm vetur- norður sólpallur með heitum potti, ljósum og innstungur, möl í innkeyrslu. Á austur og norðurhlið er möl og stétt meðfram húsinu.
Staðsetning: Smellið hér. Rúmgott og glæsilegt fjölskylduhús. Mjög góð staðsetning í jaðri hverfisins með fallegt útsýni. Eign sem vert er að skoða.
Nánari upplýsingar og bókun á skoðun veitir: Hólmar Björn Sigþórsson, löggiltur fasteignasali og félagsmaður í Félagi fasteignasala í síma 893 3276 eða holmar@helgafellfasteignasala.is.Ertu í fasteignahugleiðingum - Þarftu að selja eignina þína? Ég veiti afburða þjónustu og eftirfylgni, sanngjörn söluþóknun, sláið á þráðinn í síma 893 3276.
Þorlákshöfn:Þorlákshöfn er frábær staður til að búa sér notalegt heimili og ala upp börn. Vinalegur og barnvænn bær í nálægð við aðra þéttbýliskjarna. Í dag er öll þjónusta við barnafólk og fjölskyldur í Þorlákshöfn til fyrirmyndar. Stuttar vegalengdir einfalda allar samgöngur og börnin geta gengið örugg í skóla og tómstundastarf. Skólarnir eru eitt af trompum bæjarins þar sem stutt er vel við bakið á þeim sem þess þurfa. Rúmgóður og vel búinn grunnskóli með persónulegum samskiptum á milli heimilis og skóla. Leikskólinn Bergheimar er fimm deilda leikskóli fyrir tveggja til sex ára börn. Öll íþróttaaðstaða í Þorlákshöfn er mjög góð og ákaflega vel nýtt af bæjarbúum. Margir nýir íbúar hafa nefnt að í stað þess að festa kaup á íbúð á höfuðborgarsvæðinu hafi verið hægt að fá íbúðarhús í Þorlákshöfn og búa fjölskyldunni stærra og rúmbetra heimili í barnvænu umhverfi.
----------------------------------------------------------
Heimasíða Helgafells fasteignasölu
Facebook síða Helgafells
- Hafðu samband og við gerum söluverðmat á eign þinni, þér að kostnaðarlausu -
Gjöld sem kaupandi þarf að standa straum af vegna kaupa á fasteign:
1. Stimpilgjald af kaupsamningi - 0,8% af fasteignamati fyrir einstaklinga (0,4% fyrir fyrstu kaupendur) og 1,6% fyrir lögaðila.
2. Þinglýsingargjald af kaupsamningi, veðskuldabréfi, mögulegu veðleyfi o.fl. - 3.800 kr. af hverju skjali.
3. Lántökugjald lánastofnunar - almennt í kringum 50þ., oft lægra eða ekkert lántökugjald fyrir fyrstu kaup. Nánari upplýsingar á heimasíðum lánastofnana.
4. Þjónustusamningur milli kaupanda og fasteignasölu - Kr. 92.380,- m/vsk.
Helgafell fasteignasala bendir kaupendum á ríka skoðunarskyldu sem kveðið er á í lögum um fasteignakaup nr.40/2002. Skorað er á kaupendur að kynna sér vandlega ástand fasteigna og nýta til þess aðstoð sérfræðinga. Sömuleiðis er bent á upplýsingaskyldu seljanda samanber 26.gr. Laga nr.40/2002 um fasteignakaup og 25.gr. laga nr.26/1994 um fjöleignarhús. Seljanda er bent á að kynna sér tilvitnaðar lagagreinar.