364,8 fm einbýlishús, aukaíbúð í útleigu, nýlegar viðgerðir, sauna, heitur pottur, garður, bílskúr og þrjú einkastæði.
Þessi lýsing er búin til af gervigreind Aurbjargar•
Eiginleikar
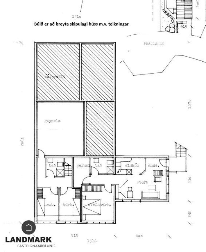
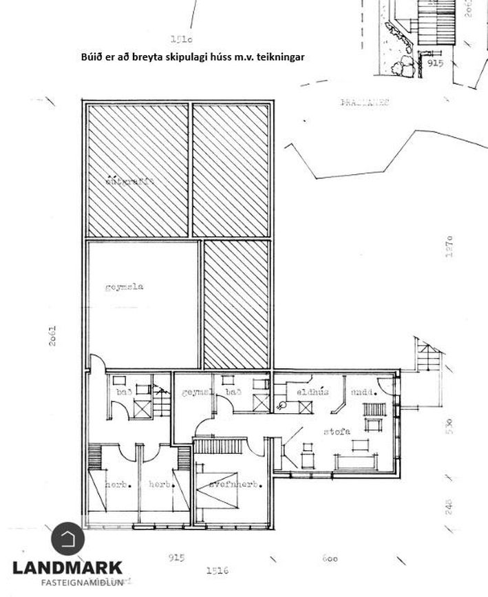
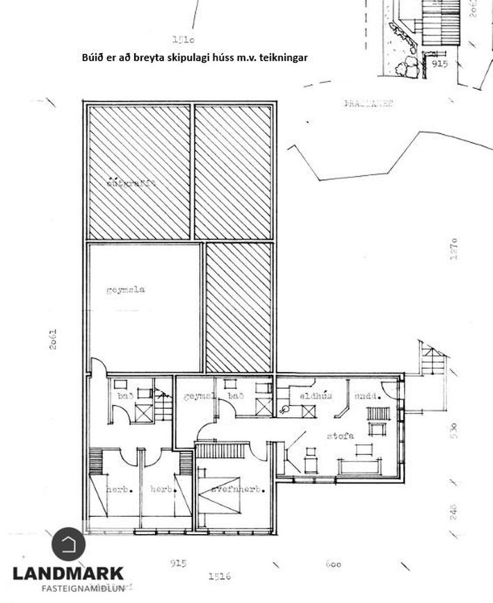
Íbúð
Hús með aukinni lofthæð, arinstofu, sjónvarpsstofu, hjónaherbergi með fataherbergi og baðherbergi, sólarstofa með arni og útsýni. Aukaíbúð með sérinngangi, opnu rými og baðherbergi.
Stofa
Borðstofa og stofa í sama rými með parketi, mikilli lofthæð og hljóðdempandi plötum. Útgengt á skjólsæla timburverönd í suðvestur/vestur.
Eldhús
Sprautulakkað hvít innrétting með steini á borðum, flísum á gólfi og nýlegu spanhelluborði. Barborð tengt fyrir uppþvottavél.
Svefnherbergi
Hjónaherbergi með parketi, gólfsíðum gluggum og fataherbergi. Svefnherbergi í aukaíbúð með parketi og bjart rými.
Baðherbergi
Baðherbergi með sturtuklefa, baðkari og stórri innréttingu. Gestasalerni flísalagt með innréttingu.
Guest baðherbergi
Gestasalerni flísalagt með innréttingu.
Þvottahús
Stórt þvottahús með góðri loftræstingu, nýlegri sturtu og tengi fyrir þvottavél og þurrkara.
Geymsla
Stórt geymslurými með skertri lofthæð inn af þvottahúsi.
Bílskúr
Bílskúr með rafdrifnum hurðaopnara og gönguhurð. Þrjú einkastæði með snjóbræðslu og hleðslustöð.
Garður
Grónn garður með leiktæki og afgirtri timburverönd með heitum potti.
Svalir/þak
Skjólsæl timburverönd í suðvestur/vestur með sjávarútsýni.
Önnur herbergi
Arinstofa/sólskáli með flísum, stórum gluggum og arni. Saunaklefi á neðri hæð.
Tæki
Uppþvottavél, þvottavél, þurkari og spanhelluborð í eldhúsi.
Svæði
Rólegt hverfi á Arnarnesinu í Garðabæ með náttúrulegu útsýni og nálægð við grænan garð.
64 myndir
Húsnæðislán
Kíktu á dæmið með Aurbjörgu
kr.
kr.
ár
kr.
Efni
Parket, flísar, sprautulakkaðar innréttingar og timburverönd.
Annað
Söluyfirlit samkvæmt lögum nr. 70/2015. Skipti koma til greina.