Sunnubraut 5, 540 Blönduósi, einbýlishús með bílskúr.
Fasteignaland kynnir: Einbýlishús við Sunnubraut 5, 540 Blönduósi. Um er ræða 113,3 fm hús auk 42 fm bílskúrs eða samtals 155,3 fm samkvæmt Þjóðskrá Íslands.
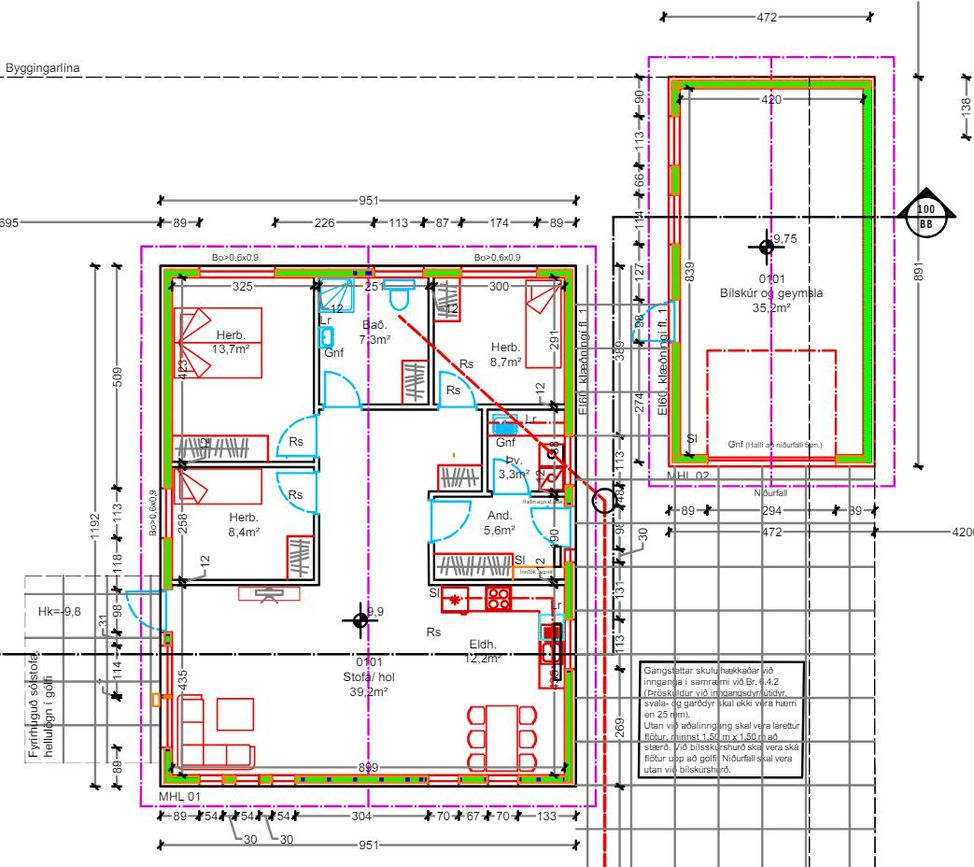
Samkvæmt teikningum er gert ráð fyrir forstofu, þremur herbergjum, baðherbergi, þvottahúsi, eldhúsi og stofu. Bílskúr er frístandandi 42 fm. Lóðin er 780 fm.
Húsið skilast fullbúið að utan, klætt með bandsöguðu efni málað grátt. Gluggar verða hvítir. en húsið skilast einangrað og plastað að innan. Járn á þaki. Lóðin skilast grófjöfnuð. Bílskúr verður afhendtur fullbúinn að utan og einangraður og plastaður að innan.
Um er ræða góða staðsetningu á svæðinu. þar sem stutt er í alla þjónustu . Upplýsingar gefa: Heimir Eðvarðsson, löggiltur fasteignasali s. 893-1485, netfang: heimir@fasteignaland.is Árni Björn Erlingsson, löggiltur fasteignasali s. 898-0508 netfang: arni@fasteignaland.is Jón Smári Einarsson, löggiltur fasteignasali s. 860-6400, netfang: jonsmari@fasteignaland.is