Fasteignasalan Hvammur 466 1600
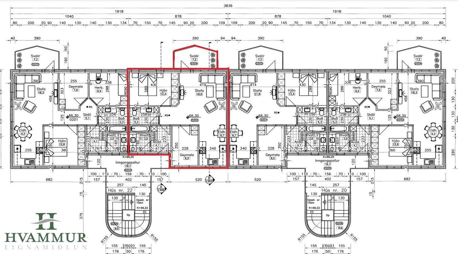
Stekkjartún 22 íbúð 202 - Falleg 2-3ja herbergja íbúð með sér inngangi á 2.hæð í fjölbýli í Naustahverfi og suður svölum - stærð 73,0 m²Eignin skiptist í forstofu, eldhús, stofu, svefnherbergi, geymsla sem nýstist sem svefnherbergi, baðherbergi og þvottahús.
Sameiginleg geymsla er á jarðhæðinni.
Forstofa er með flísum á gólfi og svart lökkuðum fataskáp.
Eldhús, svart lökkuð innrétting með ljósum flísum á milli skápa. Stæði er í innréttingu fyrir uppþvottavél og ísskáp. Harðparket er á gólfi.
Stofa er ágætlega rúmgóð, með harðparketi á gólfi, stórum suður glugga og hurð út á steyptar og flísalagðar suður svalir.
Svefnherbergið er skráð skv. teikningum 12,4 m² að stærð, með harðparketi á gólfi og stórum svart lökkuðum fataskáp.
Geymsla er skráð skv. teikningum 8,0 m² að stærð og getur nýst sem svefnherbergi. Þar er harðparket á gólfi og stór gluggi með opnanlegu fagi.
Baðherbergi er með flísum á gólfi og hluta veggja, svart lakkaðri innréttingu, wc, handklæðaofni og baðkari með glervæng og sturtutækjum.
Þvottahús er inn af forstofu og þar eru flísar á gólfi, hvít innrétting með stálvask og opnanlegur gluggi.
Annað:
- Nýlegt harð parket á gólfi.
- Stutt í leik- og grunnskóla.
- Búið er að taka inn ljósleiðara.
- Eignin er laus til afhendingar í byrjun ágúst 2026.- Eignin er í einkasölu
Um skoðunar- og aðgæsluskyldu:Í lögum um fasteignakaup nr. 40/2002 er kveðið á um ríka skoðunarskyldu kaupenda á fasteignum. Fasteignasalan Hvammur skorar því á væntanlega kaupendur að kynna sér vel ástand fasteigna fyrir kauptilboðsgerð og leita til þar til bærra sérfræðinga um nánari skoðun ef með þarf.
Forsendur söluyfirlits:Söluyfirlit er samið af fasteignasala í samræmi við ákvæði laga nr. 70/2015. Þær upplýsingar sem fram koma í söluyfirliti þessu eru sóttar í opinberar skrár, til seljanda sjálfs og eftir atvikum til húsfélags. Seljandi veitir upplýsingar um eign í samræmi við upplýsingaskyldu laga um fasteignakaup nr. 40/2002. Fasteignasali sannreynir að þær upplýsingar séu réttar með sjónskoðun á eigninni. Fasteignasali getur ekki fullyrt um ástand og eiginleika þeirra hluta fasteigna sem ekki eru aðgengilegir og sjást ekki berum augum, t.d. lagnir, dren, skólp og þak.