Eignamiðlun kynnir:
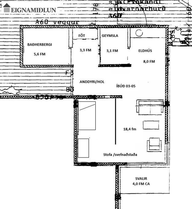
Sólvangsvegur 1, 49.9 fm íbúð, eign merkt 03-05. Hús fyrir 60 ára og eldri, mjög góð sameign með matsal á 1 hæð þar sem hægt er að fá mat sé þess óskað. Íbúðin er til afhendingar við kaupsamning. Eignin er skráð 1 herbergja en búið að stúka svefnaðstöðu af alrými. Góðar innréttingar. Sérgeymsla innan íbúðarinnar. Mjög gott útsýni til vesturs yfir lækinn. Svalir til suðvesturs. Bókið skoðun hjá Þórarni lögg fasteignasala í síma 899-1882.***
Ábyrg þjónusta í áratugi. Eignamiðlun var stofnuð 1957 og er elsta starfandi fasteignasala á Íslandi. Reynsla, heiðarleiki og þekking á fasteignamarkaðnum eru grunnur að farsælum viðskiptum.
Eignamiðlun Grensásvegi 11, 108 Reykjavík - Opið frá kl. 9-17 mánudaga til fimmtudaga og 9-16 á föstudögum.
Heimasíða Eignamiðlunar
Eignamiðlun á Facebook






Kíktu á dæmið með Aurbjörgu




















| Íbúð | Herbergi | Stærð | Síðasta ásetta verð | Síðasti kaupsamningur |
|---|---|---|---|---|
| 1 | 49,90 m² | 48.500.000 kr. 4. apríl 2026 | 38.000.000 kr. 12. maí 2021 |
| Dags. | Kaupverð |
|---|---|
| 12. maí 2021 | 38.000.000 kr. |
| 11. janúar 2019 | 27.500.000 kr. |
0103 | - | - | - | 54.000.000 kr. 2. maí 2024 |
0101 | - | - | - | 28.575.000 kr. 15. október 2014 |
0106 | - | - | - | 33.000.000 kr. 27. desember 2017 |
0107 | - | - | - | - - |
0306 | - | - | - | 44.900.000 kr. 29. júní 2021 |
0102 ![]() | 2 | 60,70 m² | 58.900.000 kr. 4. mars 2026 | 22.800.000 kr. 10. febrúar 2015 |
0205 | - | - | - | 47.500.000 kr. 4. nóvember 2025 |
0308 | - | - | - | 51.900.000 kr. 12. nóvember 2021 |
0206 | - | - | - | 34.500.000 kr. 17. apríl 2018 |
0201 | - | - | - | 40.000.000 kr. 6. apríl 2017 |
| - | - | - | 53.000.000 kr. 22. janúar 2024 |
| - | - | - | 48.900.000 kr. 30. mars 2023 |
| - | - | - | 58.000.000 kr. 28. apríl 2025 |
| - | - | - | 46.500.000 kr. 1. júlí 2025 |
| - | - | - | 35.800.000 kr. 3. október 2019 |
| - | - | - | 47.700.000 kr. 1. september 2023 |
| - | - | - | 57.900.000 kr. 13. mars 2026 |
| 1 | 49,90 m² | 42.500.000 kr. 26. ágúst 2022 | 41.500.000 kr. 30. september 2022 |
| 2 | 60,70 m² | 60.000.000 kr. 31. mars 2026 | 34.400.000 kr. 11. september 2018 |
| - | - | - | 67.000.000 kr. 28. október 2022 |
| - | - | - | 46.500.000 kr. 27. febrúar 2020 |
| - | - | - | 43.500.000 kr. 22. mars 2021 |
| - | - | - | 33.900.000 kr. 12. október 2017 |
| - | - | - | 47.900.000 kr. 13. ágúst 2020 |
| - | - | - | 28.700.000 kr. 1. október 2019 |
| - | - | - | - - |
0108 | - | - | - | 28.000.000 kr. 24. júlí 2015 |
0304 | - | - | - | 74.000.000 kr. 25. febrúar 2025 |
0202 | - | - | - | - - |
0402 ![]() | 2 | 60,70 m² | 58.900.000 kr. 30. mars 2026 | - - |
0301 | - | - | - | 71.900.000 kr. 12. apríl 2024 |
0404 | - | - | - | 29.300.000 kr. 15. október 2014 |
0401 | - | - | - | - - |
0204 | - | - | - | 38.500.000 kr. 27. febrúar 2017 |
0307 | - | - | - | - - |
0408 | - | - | - | 72.000.000 kr. 14. mars 2024 |
0501 | - | - | - | 50.900.000 kr. 19. júlí 2021 |
0503 | - | - | - | - - |
0502 | - | - | - | - - |