Gimli fasteignasala og Ólafur Björn Blöndal löggiltur fasteignasali kynna:
SMYRLAHAUN 5 - HAFNARFIRÐI
EINBÝLI / EINSTÖK EIGN
GLÆSILEGT ENDURBYGGT EINBÝLI Á FALLEGUM STAÐ. Smellið hér til að sjá myndband af eigninniAlmennt:Um er að ræða algjörlega endurnýjað /endurbyggt fallegt einbýlishús á einstökum stað á fallegri 305 fm lóð með sérbílastæði.
Húsið var endurnýjað á árunum 2007 - 2009 á þann hátt að megnið af gamla húsinu sem var byggt 1925 var fjarlægt og húsið teiknað upp á nýtt og af Páli Bjarnasyni arkitekt sem lagði mikið upp úr því að halda í gamla tímann hvað varðar útlit hússins bæði innan- og utandyra. Húsið var í leiðinni stækkað töluvert og skipulagi breytt.
Í stuttu máli þá er húsið allt mjög smekklega endurnýjað, þ.e. allt utandyra og allt innandyra, allar lagir, bæði vatns- raflagnir, skólp, frárennsli og þ.h.
Allar innréttingar, gólfefni, öll tæki, gluggar, gler hurðir og fl.
Gólfhitakerfi erí báðum hæðum hússins með stýringu í hverju rými.
Lóðin er frágengin að mestu nema hvað það vantar pallafrágang að hluta á baklóðinni sem gert er ráð fyrir við báða bakútganga hússins.
Einstaklega fallegir gluggar og útskornar gluggaáfellur utandyra ásamt því að haldið hefur verið í stíl tréverks fyrri tíma í bland við nútímaútlit.
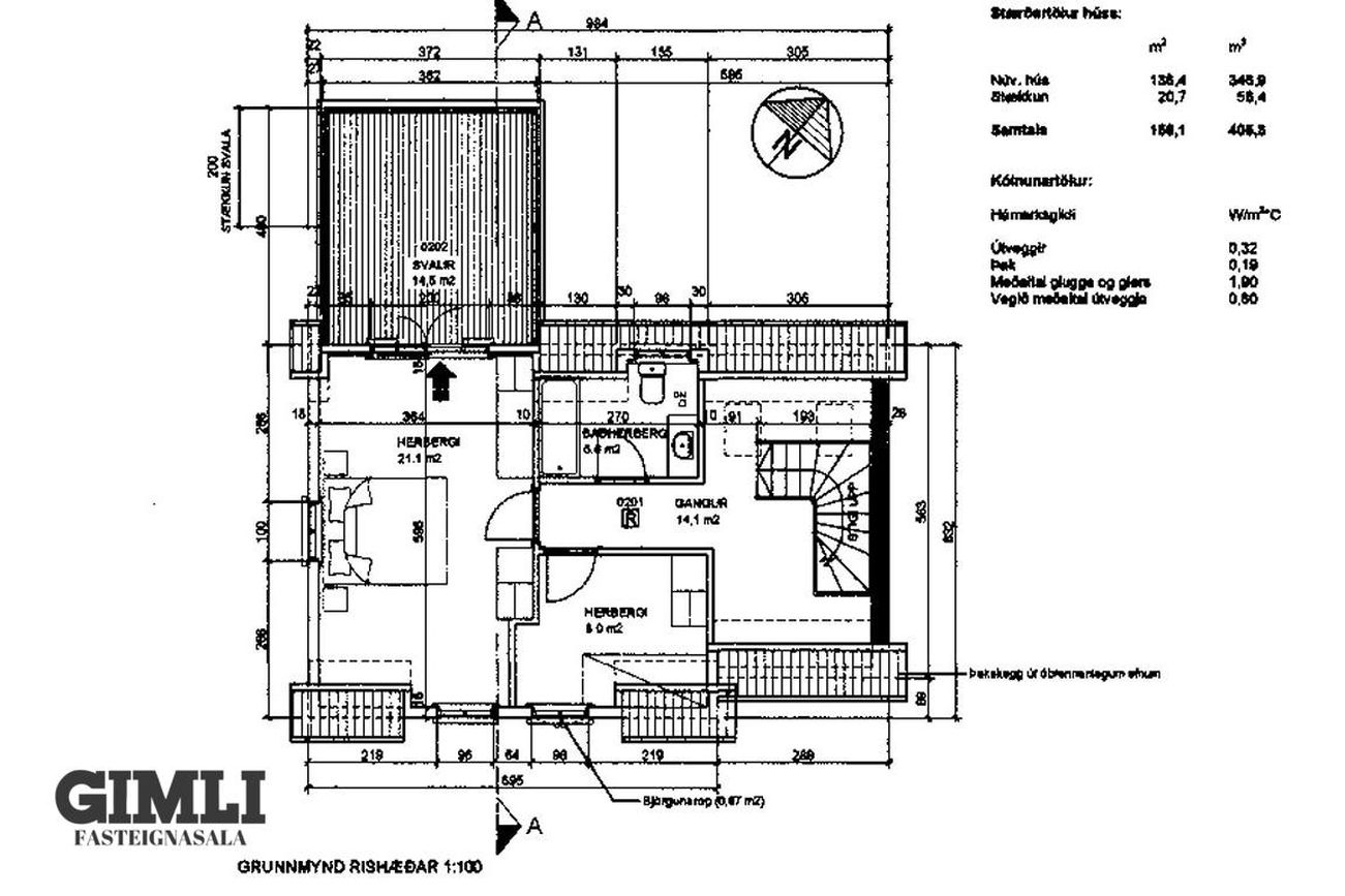
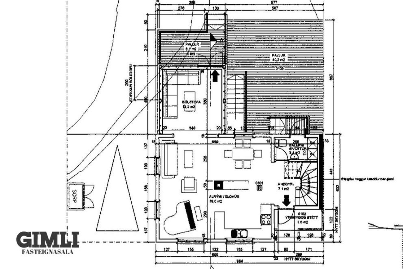
Skipulag:Neðri hæðin:
Aukin lofthæð og innbyggð lýsing.
Hol með flísum og fallegum bogadregnum stiga upp á efri hæðina.
Við hliðina á holinu er gesta snyrting með flísum á gólfi og hluta veggja, hurð þaðan út í bakgarðinn. Tengi fyrir þvottavél og þurrkara í þar til gerðri innréttingu.
Stórt og opið eldhús með flísum á gólfi, hvílökkuð innrétting með innbyggðum ísskáp og uppþvottavél ásamt eldaeyju með spanhellulborði,
Eyjan skilur að eldhúsið og rúmgóða borðstofu með viðarparketi.
Stofan er rúmgóð og björt með parketi og fallegum gluggum á tvo vegu.
Í framhaldi af stofunni er rúmgóður og fallegur ca. 14,5 fm skáli með gluggum á þrjá vegu og tvöfalda hurð út á lítinn pall í bakgarðinn.
Efri hæðin: Fallegur bogadreginn stigi upp en vantar handrið á stigapallinn.
Mikil lofthæð og fallegir kvistir í allri hæðinni, innbyggð lýsing í loftum.
Baðherbergi flísalagt, baðkar með sturtu, innrétting, innbyggð Vola tæki, handklæðaofn.
Barnaherbergi með parketi,
Mjög stórt hjónaherbergi 21 fm með gluggum á þrjá vegu og er tvöföld hurð út á stórar suðvestur svalir 14,5 fm með fallegu handriði, snýr út í bakgarðinn.
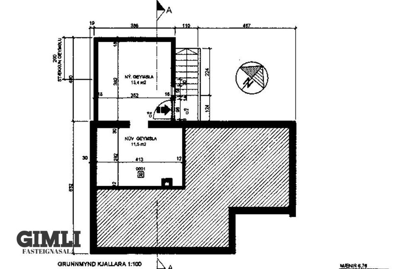
Kjallarinn er með mjög plássgóðum geymslum 11 fm og 13,5 fm og eru þar lagnir aðgengilegar ásamt aðalrafmagnstöflu hússins .
Nánari upplýsingar veitir: Ólafur Björn Blöndal Löggiltur fasteigna-, fyrirtækja og skipasali, í síma 6900811, tölvupóstur olafur@gimli.is eða
gimli@gimli.isGimli fasteignasala leggur áherslu á traust, áreiðanleika og góða þjónustu.Það er okkar trú að það skipti öllu máli í fasteignaviðskiptum að viðskiptavinurinn fái trausta og góða þjónustu. Við hjá
Gimli höfum stundað fasteignaviðskipti með farsælum hætti í meira en fjóra áratugi. Hjá okkur starfa sérhæfðir og reyndir fasteignasalar sem sinna stórum sem smáum verkefnum af nákvæmni og þekkingu sem skilar árangri.
Hvar erum við?
Gimli Fasteignasala er staðsett á jarðhæð í Skipholti 35 í Reykjavík en einnig rekum við söluskrifstofu að Eyrarvegi 29. 2 hæð á Selfossi.
Við höfum opið frá 10-15 mánudaga til föstudaga. Sláðu á þráðinn eða líttu við hjá okkur í Skipholtinu næst þegar þú átt leið hjá. Við erum alltaf með heitt á könnunni. sími: 570 4800, tölvupóstur:
gimli@gimli.isGimli gerir betur...
Heimasíða Gimli fasteignasöluGimli á FacebookUm skoðunar- og aðgæsluskyldu kaupenda: Í lögum um fasteignakaup nr. 40/2002 er kveðið á um ríka skoðunarskyldu kaupenda á fasteignum. Gimli fasteignasala bendir væntanlegum kaupendum á að kynna sér vel ástand eigna við skoðun og fyrir tilboðsgerð og að leita til sérfræðinga um nánari ástandsskoðun ef þörf er á.
Forsendur söluyfirlits: Söluyfirlit er samið af fasteignasala í samræmi við ákvæði laga nr. 70/2015. Þær upplýsingar sem fram koma í söluyfirliti þessu eru sóttar í opinberar skrár, til seljanda sjálfs og eftir atvikum til húsfélags. Seljandi veitir upplýsingar um eign í samræmi við upplýsingaskyldu laga um fasteignakaup nr. 40/2002. Fasteignasali sannreynir að þær upplýsingar séu réttar með sjónskoðun á eigninni. Fasteignasali getur ekki fullyrt um ástand og eiginleika þeirra hluta fasteigna sem ekki eru aðgengilegir og sjást ekki berum augum, t.d. lagnir, dren, skólp og þak.
Gjöld sem kaupandi þarf að standa straum af vegna kaupanna:Stimpilgjald af kaupsamningi sem er hlutfall af fasteignamati. Stimpilgjald er 0,8% fyrir einstaklinga (0,4% við fyrstu kaup m.v. að lágmarki 50% eignarhlut) og 1,6% fyrir lögaðila.Þinglýsingargjald hvers skjals er kr. 3800,- .Lántökugjald lánastofnunar skv. gjaldskrá viðkomandi lánveitanda.Umsýsluþóknun fasteignasölu skv. gjaldskrá.Ef um nýbyggingu er að ræða greiðir kaupandi skipulagsgjald, 0,3% af brunabótamati, þegar það er lagt á.
Teikningar sem fylgja lýsingu eignarinnar og myndum eru til viðmiðunar og ekki alltaf í samræmi við samþykktar teikningar af eigninni.
Myndir í auglýsingu eru í einkaeigu og er notkun þeirra með öllu óheimil án formlegs leyfis fasteignasala
Gimli fasteignasala leggur áherslu á traust, áreiðanleika og góða þjónustu.
Það er okkar trú að það skipti öllu máli í fasteignaviðskiptum að viðskiptavinurinn fái trausta og góða þjónustu. Við hjá Gimli höfum stundað fasteignaviðskipti með farsælum hætti í meira en fjóra áratugi. Hjá okkur starfa sérhæfðir og reyndir fasteignasalar sem sinna stórum sem smáum verkefnum af nákvæmni og þekkingu sem skilar árangri.
Hvar erum við?
Gimli Fasteignasala er staðsett á jarðhæð í Skipholti 35 í Reykjavík en einnig rekum við söluskrifstofu að Eyrarvegi 29. 2 hæð á Selfossi.
Við höfum opið frá 10-15 mánudaga til föstudaga. Sláðu á þráðinn eða líttu við hjá okkur í Skipholtinu næst þegar þú átt leið hjá. Við erum alltaf með heitt á könnunni.
Gimli gerir betur...