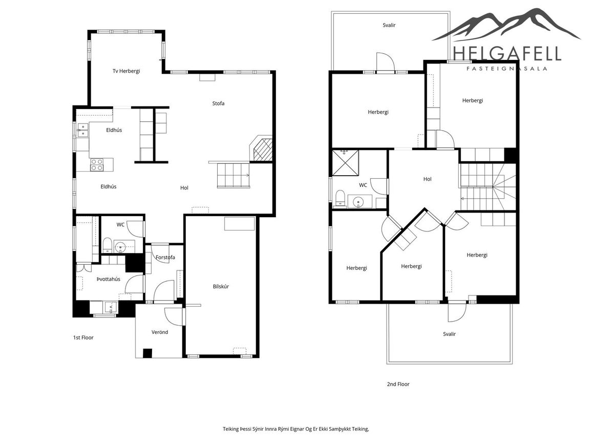
209,9fm. endaraðhús á tveimur hæðum við Sæbólsbraut 41 í Kópavogi.
Á neðri hæð er anddyri, stofa, sjónvarpsstofa/fjölskylduherbergi, eldhús, gestasalerni, þvottahús, geymsla og bílskúr.
Á efri hæð er baðherbergi, fjögur svefnherbergi og sjónvarpsherbergi sem auðveldlega má nýta sem fimmta svefnherbergið. Allir gluggar úr harðvið.
Nánari lýsing:
Neðri hæð - 87,7fm.Anddyri: Flísar á gólfi, fataskápur og fatahengi.
Þvottahús: Inn af anddyri er þvottahús með skápum, innréttingu og vask. Geymsla inn af þvottahúsi.
Gangur: Flísar á gólfi. Af ganginum er komið inn í eldhús og stofu. Inn af ganginum er gestasalerni.
Gestasalerni: Upphengt salerni, flísar á gólfi og upp á miðja veggi.
Eldhús: Snyrtileg innrétting, nýleg tæki s.s. ofn og ofn/örbylgjuofn í vinnuhæð. Nýlegt spanhelluborð. Nýlegur ísskápur sem getur fylgt. Góður borðkrókur í eldhúsinu.
Stofa: Olíuborið parket, arin í góðu lagi. Nýlegir gluggar í stofunni.
Sjónvarpsstofa/fjölskylduherbergi: Komið er inní sjónvarpsstofuna bæði frá eldhúsi og stofu. Flísar á gólfi. Útgengt á skjólsælan fallegan pall til suðurs.
Bílskúr er 25,4fm.: Lakkað gólf, bílskúrshurðaopnari. Heitt og kalt vatn. - kalt rúmgott geymslurými er undir bílskúrnum, hentar vel til að geyma t.d. dekk.
Efri hæð - 96,8fm.Komið er upp olíuborinn stiga.
Miðrými: Olíuborið parket. Inngangur í öll herbergi úr miðrýminu.
Fjögur svefnherbergi með góðri lofthæð og skáp. Þrjú herbergjanna eru með korkflísum á gólfi en eitt með olíubornu parketi. Úr einu svefnherberginu er útgengt á rúmgóðar svalir til norðurs. Tvö svefnherbergi eru með skáp.
Sjónvarpsherbergi: Rúmgott sjónvarpsherbergi sem auðveldlega má nýta sem svefnherbergi. Útgengt á stórar flísalagðar suður-svalir.
Baðherbergi: Nýlega uppfært baðherbergi með stórri "walk-in" sturtu, upphengdu salerni og góðri innréttingu.
Lóðin:Fallega gróin lóð með skjólsælum palli til suðurs.
Hiti í plani að framan. Stæði fyrir þrjá bíla í innkeyrslunni.
Hleðslustöð fyrir rafmagnsbíla.
Fyrir nánari upplýsingar eða panta skoðun, hafið samband við:
Helgafell fasteignasala - Sími 566 0000
Rúnar Þór Árnason, lgf., email: runar@helgafellfasteignasala.is----------------------------------------------------------
Heimasíða Helgafells fasteignasölu
Facebook síða Helgafells
- Hafðu samband og við gerum söluverðmat á eign þinni, þér að kostnaðarlausu -
Gjöld sem kaupandi þarf að standa straum af vegna kaupa á fasteign:
1. Stimpilgjald af kaupsamningi - 0,8% af fasteignamati fyrir einstaklinga (0,4% fyrir fyrstu kaupendur) og 1,6% fyrir lögaðila.
2. Þinglýsingargjald af kaupsamningi, veðskuldabréfi, mögulegu veðleyfi o.fl. - 3.800 kr. af hverju skjali.
3. Lántökugjald lánastofnunar - almennt í kringum 50þ., oft lægra eða ekkert lántökugjald fyrir fyrstu kaup. Nánari upplýsingar á heimasíðum lánastofnana.
4. Þjónustusamningur milli kaupanda og fasteignasölu - Kr. 92.380,- m/vsk.
Helgafell fasteignasala bendir kaupendum á ríka skoðunarskyldu sem kveðið er á í lögum um fasteignakaup nr.40/2002. Skorað er á kaupendur að kynna sér vandlega ástand fasteigna og nýta til þess aðstoð sérfræðinga. Sömuleiðis er bent á upplýsingaskyldu seljanda samanber 26.gr. Laga nr.40/2002 um fasteignakaup og 25.gr. laga nr.26/1994 um fjöleignarhús. Seljanda er bent á að kynna sér tilvitnaðar lagagreinar.