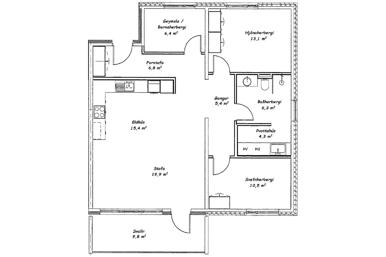
Íbúð
Tveggja hæða fjölbýli með sérinngangi. Opinn rými skipulag með stofu/eldhúsi, tveimur svefnherbergjum, baðherbergi og aukarými sem geymslu/skrifstofu. Harðparket frá Birgisson og innréttingar frá Arens.
Stofa
Björt og rúmgóð stofa með harðparketi frá Birgisson og útgangi á suðursvali.
Eldhús
Nútímalegt opið eldhús með innréttingum frá Arens, nýrri borðplötu, AEG kjötplötu með háfi og innbyggðum blástursofni.
Svefnherbergi
Tvö rúmgóð svefnherbergi með harðparketi frá Birgisson og stórum innbyggðum skápum frá Arens.
Baðherbergi
Nútímalegt baðherbergi með flísalögðu gólfi, walk-in sturtu, handklæðaofni, stórum spegli og loftræstingu.
Þvottahús
Þvottasvæði innan baðherbergis með hvítri innréttingu, skolvaski og rými fyrir þvottavél og þurrkara.
Geymsla
Aukarými með parketi og glugga sem nýtist sem geymsla, heimaskrifstofa eða þriðja svefnherbergi.
Bílskúr
Sérmerkt bílastæði fyrir íbúðina ásamt gestastæðum fyrir framan húsið.
Garður
Sameiginlegur vel hirtur grasflötur við suðurhlið hússins með gönguleiðum í næsta nágrenni.
Svalir/þak
Suðursvalir með útgangi úr stofunni.
Félagssvæði
Sameiginlegt graslendi, nálægt Stapaskóla með sundlaug, íþróttahús og bókasafn.
Tæki
Mögulegt að fylgi Samsung ísskápur, 65" Philips OLED sjónvarp, Electrolux þvottavél, AEG kjötplata og innbyggður blástursofn.
Svæði
Hverfið í Dalshverfi á Reykjanesinu með útsýni yfir Keflavík, nálægt Reykjanesbraut (15 mín í Hafnarfjörður) og Fitjum (5 mín) með verslunum og þjónustu. Nágrenni við náttúru og fjölmarga útivistarmöguleika.