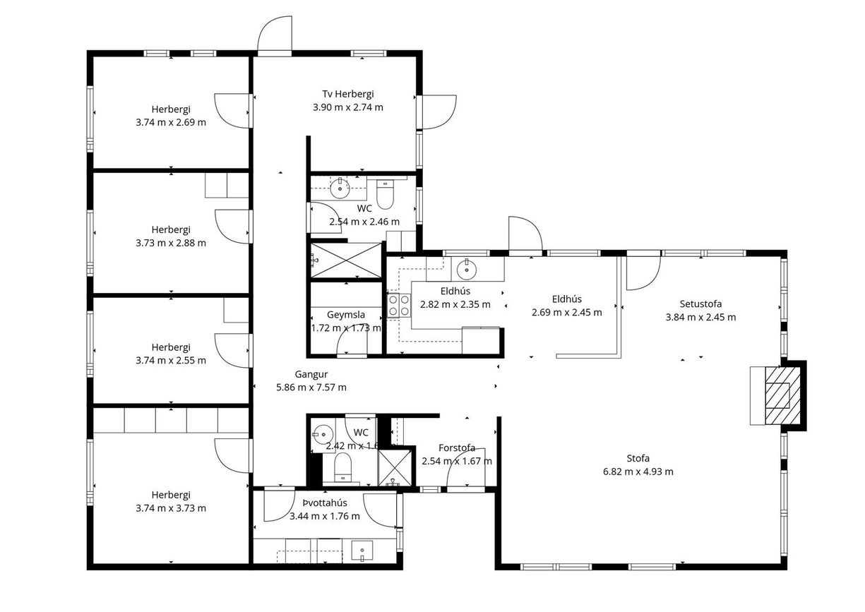
NÝTT Í SÖLU - FALLEGT EINBÝLISHÚS Á EINNI HÆÐ - FJÖGUR SVEFNHERBERGI - TVÖ BAÐHERBERGI - AUKIN LOFTHÆÐ - ARINN - BÍLSKÚR Bjarni Blöndal löggiltur fasteignasali (bjarni@remax.is/s:662-6163) kynnir vel skipulagt 169,2fm einbýlishús á einni hæð auk 36 fm bílskúrs, samtals 205,2 fm við Reykjabyggð í Mosfellsbæ. Aukin lofthæð. Arinn í stofu. Fjögur svefnherbergi og möguleiki á því fimmta. Eignin samanstendur
af alrými (stofa/borðstofa), eldhúsi, fjórum ágætum svefnherbergjum, sjónvarps herbergi, baðherbergi, gesta salerni, geymslu, þvottahúsi og rúmgóðum bílskúr.
Nánari lýsing: Komið er inn í
anddyri með svörtum náttúru flísum, fatahengi, hiti í gólfi.
Gestasalerni flísalagt í hólf og gólf, innrétting, upphengt wc, sturtuklefi.
Björt og falleg
stofa/borðstofa með uppteknum loftum, burðar bitar fá að njóta sín, fallegur arin, útgengt úr borðstofu á góðan sólpall.
Eldhúsið er opið við stofu með u laga ljósri innréttingu með góðu vinnuplássi, háfur, tvöfaldur ísskápur, niðurtekinn ljósastokkur, flísar á gólfi.
Svefnherbergin eru fjögur, öll þeirra með stórum og góðum fataskápum. Möguleiki er að bæta fimmta herberginu við við enda gangs þar sem í dag er sjónvarpsrými.
Baðherbergið er flísalagt í hólf og gólf, viðarlituð innrétting, handklæðaskápur, stór innbyggður sturtuklefi, gluggi.
Rúmgott
þvottahús flísalagt í hólf og gólf, hvít innrétting, útgengt að framanverðu.
Bílskúrinn er 36fm, geymslulofti yfir hluta hans. Rúmgott hellulagt bílaplan með hitalögn undir
Geymsla með hillum og geymsluloft yfir herbergjagangi. útgengt á tvo vegu úr herbergisgangi.
Húsið er vel staðsett í botnlanga við lokaða götu í rólegu og barnvænu hverfi. Stutt er í fallegar og friðsælar gönguleiðir, í Álafosskvos og við Reykjalund. Leikskóli og grunnskóli eru innan hverfisins, stutt er í framhaldsskóla og ekki langt í íþróttasvæðið við Varmá. Stutt í alla verslun og þjónustu, þmt Reykjabúið sem selur egg og alifugla afurðir.
Allar upplýsingar um eignina veitir Bjarni Blöndal löggiltur fasteignasali í síma 662 6163 eða bjarni@remax.is.
Vegna mikillar eftirspurnar vantar mig allar tegundir eigna á skrá. Hafðu samband og ég mun verðmeta eign þína þér að kostnaðarlausu.