Íbúð
Tvö hæða einbýlishús með rúmgóðu rými, anddyri, hol, tvöfaldan innbyggðan bílskúr, opið eldhús og stofu. Möguleiki á að bæta við svefnherbergjum.
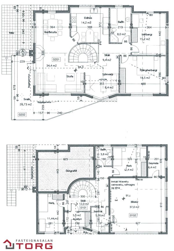
Stofa
Rúmgóð og björt stofa og borðstofa með marmara á gólfi. Útgengt út á yfirbyggða verönd.
Eldhús
Mjög rúmgott og opið eldhús með granít á borðum, góðu skápaplássi og eldhústækjum. Marmari á gólfi.
Svefnherbergi
Rúmgöð svefnherbergi með fataskápum og parket á gólfi.
Baðherbergi
Baðherbergi með flísalegu gólfi og veggjum, sturta, baðkar og glugga. Annað baðherbergi með handlaug, salerni og sturtu.
Guest baðherbergi
Baðherbergi á neðri hæð með handlaug, salerni og sturtuklefa.
Þvottahús
Þvottahús með vaski, borði og tengi fyrir þvottavél og þurrkara.
Geymsla
Geymsla í bílskúr og aukaleg geymsla í 45 óskráðum fm.
Bílskúr
Innbyggður tvöfaldur bílskúr með hitalögn. Innangengt frá forstofu.
Garður
Gróinn og hellulagður garður með glæsilegri aðkoma að húsinu.
Svalir/þak
Yfirbyggð verönd úr stofu.
Önnur herbergi
Vinnuherbergi, gufubað og opið sjónvarpshol.
Tæki
Eldhústæki, þvottavélar og þurrkarar.
Svæði
Rólegt hverfi nálægt golfvelli, leiksvæði, þjónustu, verslunum, skóla og stofnbraut.
Efni
Marmari, parket og flísar á gólfum. Flísalegir veggir í baðherbergjum.