RE/MAX / Júlían J. K. Jóhannsson Lgf. (sími 823 2641 & julian@remax.is) kynna: Einstaklega fallega 3 - 4 herbergja íbúð í þriggja hæða íbúðahúsi í gamla Vesturbæ, 101 Reykjavík. Íbúðin inniheldur tvö svefnherbergi, stofu, eldhús og baðherbergi.
*** Bókið skoðun í síma 823-2641 eða á julian@remax.is
- Fasteignamat er 70.750.000.-
- Laus við kaupsamning
- 3-4 Herbergja íbúð í gamla Vesturbænum
- Stór geymsla í kjallara
- Vel staðsett íbúð stutt frá helstu þjónustu og miðbænum.
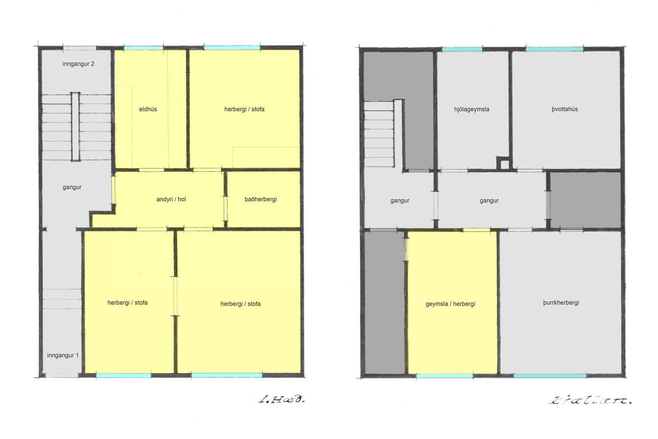
- Tveir inngangar eru inn í húsið annars vegar frá Nýlendugötu og hinsvegar frá Mýrargötu.
*** ATH. átt hefur verið við sumar myndir með aðstoð gervigreindar. ***
Nánari lýsing:Sameiginlegur
inngangur er í húsið.
Gengið er inn í
hol íbúðar þar sem fatahengi er. Þaðan er gengið inn í aðar vistarverur íbúðar.
Á vinstri hönd er fyrst
eldhús með snyrtilegri innréttingu og pláss fyrir eldhúsborð við glugga sem snýr upp að Mýrargötu.
Næst á vinstri hönd er
svefnherbergi sem í dag er nýtt sem stofa en þar eru góðir skápar og er í dag nýtt sem
stofa.Við enda holsins er
baðherbergi sem endurnýjað var fyrir 4-5 árum síðan og flísað að mestu með góðriu Walk in sturtu.
Sunnan megin við holið eru tvö herbergi annað töluvert stórt og hefur verið stofa en er í dag nýtt sem
svefnherbergi og svo annað
svefnherbergi.Í kjallara er rúmgóð sérgeymsla sem fylgir íbúðinni, gott sameiginlegt þvottahús og sameiginlegt þurrkherbergi.
Frekari upplýsingar veitir Júlían J. K. löggiltur fasteignasali í síma 823 2641 eða á netfanginu julian@remax.is.
Vegna mikillar eftirspurnar vantar mig allar tegundir eigna á skrá. Hafðu samband og ég mun verðmeta eign þína þér að kostnaðarlausu.
Um skoðunar- og aðgæsluskyldu:Í lögum um fasteignakaup nr. 40/2002 er kveðið á um ríka skoðunarskyldu kaupenda á fasteignum. Við bendum væntanlegum kaupendum á að kynna sér vel ástand fasteigna við skoðun og fyrir tilboðsgerð.
Gjöld sem kaupandi þarf að standa straum af vegna kaupanna:
1. Stimpilgjald af kaupsamningi 0,8%, ( 0,4% ef um fyrstu kaup er að ræða ) og 1.6% (ef lögaðilar) af heildar fasteignamati.
2. Þinglýsingargjald af kaupsamningi, veðskuldabréfi, mögulegu veðleyfi o.fl. - kr. 2.700 af hverju skjali.
3. Lántökugjald lánastofnunar - almennt 0.5% - 1,0% af höfuðstól skuldabréfs. Nánari upplýsingar á t.d. heimasíðu lánastofnana.
4. Umsýslugjald til fasteignasölur kr. 69.900.-