Hraunhamar fasteignasala og Helgi Jón Harðarson sölustj.s. 893-2233 helgi@hraunhamar.is kynna: Afar fallegt einbýli á einni hæð með innb.bílskúr samtals 177 fm. (þar af bílskúr 32 fm) Húsið er þó nokkuð endurnýjað á sl. árum. Suður garður með palli og heitum potti og útisturtu. Óvenju stórt munstursteypt bílaplan með hitalögn. (nýlega gert) Húsið er klætt að utan og því viðhaldslétt. Eign sem vert er að skoða frekar á þessum rólega, skjólsama og rótgróna stað á Holtinu.
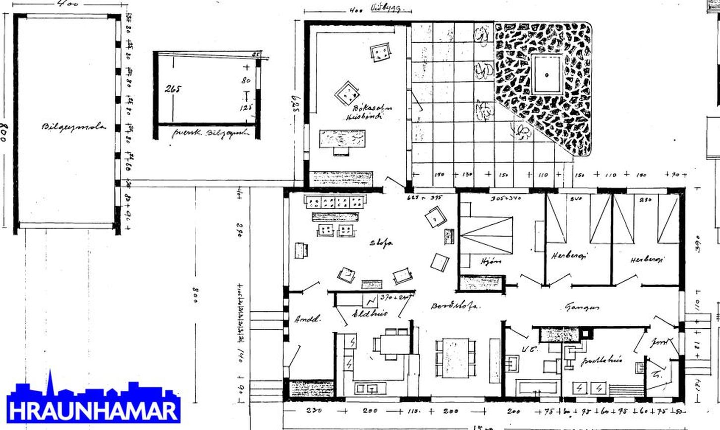
Lækkað verð !Eignin skiptist m.a. þannig: Rúmgóð
forstofa, stofan er björt með útgang út í garðinn, pallinn og pottinn,
stórt herbergi (ca 20 fm) með útgang útg. út á pallinn, hægt að hafa þar t.d. hjónasvítu með fataherbergi. (eða barnaherbergi/sjónvarpsherbergi.)
Eldhúsið er bjart og fallegt með nýlegri innréttingu og marmara borðplötum, góður borðkrókur.
Svefnálma: Tvö barnaherbergi og gott
hjónaherbergi, fallegt baðherbergi með hornbaðkari, flísar í hólf og gólf, gluggi.
Rúmgott
þvottaherbergi og geymsla, gluggi, sturtuaðstaða er þar líka.
Parket og flísar á gólfum. Bílskúr er með hita, vatni og rafmagni.
Geymsla þar fyrir aftan með sérinngang. Köld
geymsla við hliðina með sérinngang.
Skjólsamur garður (hornlóð) í suður með verönd, heitum potti og útisturtu. Fyrir framan bílskúr er
nýlega stórt munstursteypt bílaplan og einnig við hliðina á bílskúr sem gæti tilheyrt bílaplani eða garðinum.
Samkvæmt upplýsingum seljanda :Skolplagnir fóðraðar 2008 og skipt um járn á þaki
Skipt um salerni, handlaug og blöndunartæki á baðherbergi og eldhúsi. Allt keypt frá Tengi
2017.Sett var svalahurð og gluggi frá stofu og út á pall.
2019.Allt timburverk á húsi málað að utan
2020.Innkeyrslan steypt með mynstrusteypa með lokuði hitakerfi.
2020. Endurlagt neysluvatn milli bílskúrs og húss.
2020. Grindverk
2020.Heitur pottur, útisturta, rafstýringarkerfi, lagða frárennslislögn frá rennum og pottur tengdur við. Grindverki breytt að hluta,
2021.Steinflísar settar á borðstofugólf og gang
2022.Skipt um eldhúsinnréttingu og ásýnd heppnar. Aukin tenging við borðstofuna. Teikningar frá Funkis
2023. Ný uppþvottavél, ísskápur og gufugleypir allt frá Simens. Hljóðeinangrunar loftdúkar í eldhúsi með niðurfelldri lýsingu
2023.Ruslatunnueining E – laga steypa og timbur BM Vallá
2020.Nýtt Ph útiljós sett upp. Epal
2021.Ljósaskilti með heimilisfangi
2022.Þetta er áhugaverð eign til að skoða frekar. Nánari uppl. gefur Helgi Jón Harðarson sölustjóri s. 893-2233 helgi@hraunhamar.is ogGlódís Helgadóttir lgf. s. 659-0510 glodis@hraunhamar.is
Skoðunarskylda:Í lögum um fasteignakaup nr. 40/2002 er kveðið á um ríka skoðunarskyldu kaupenda á fasteignum. Hraunhamar fasteignasala vill benda væntanlegum kaupendum á að kynna sér vel ástand fasteigna fyrir kauptilboðsgerð og ef þurfa þykir að leita til sérfræðinga fyrir nánari ástandsskoðun.
Gjöld sem kaupandi þarf að standa straum af vegna kaupanna:1. Stimpilgjald af kaupsamningi, fyrstu kaup (0,4%), almenn kaup (0,8%), lögaðilar (1,6%) af heildarfasteignamati.
2. Þinglýsingargjald af kaupsamningi, veðskuldabréfi, mögulegu veðleyfi o.fl. – kr. 3,800 kr. af hverju skjali.
3. Lántökugjald lánastofnunar er skv. verðskrá viðkomandi lánastofnunar.
4. Umsýslugjald til fasteignasölu skv. þjónustusamningi
Hraunhamar er elsta fasteignasala Hafnarfjarðar, stofnuð 1983.
Hraunhamar, í fararbroddi í rúm 40 ár. – Hraunhamar.is
Smelltu hér til að fá frítt söluverðmat.