Fasteignasalan Hvammur 466 1600
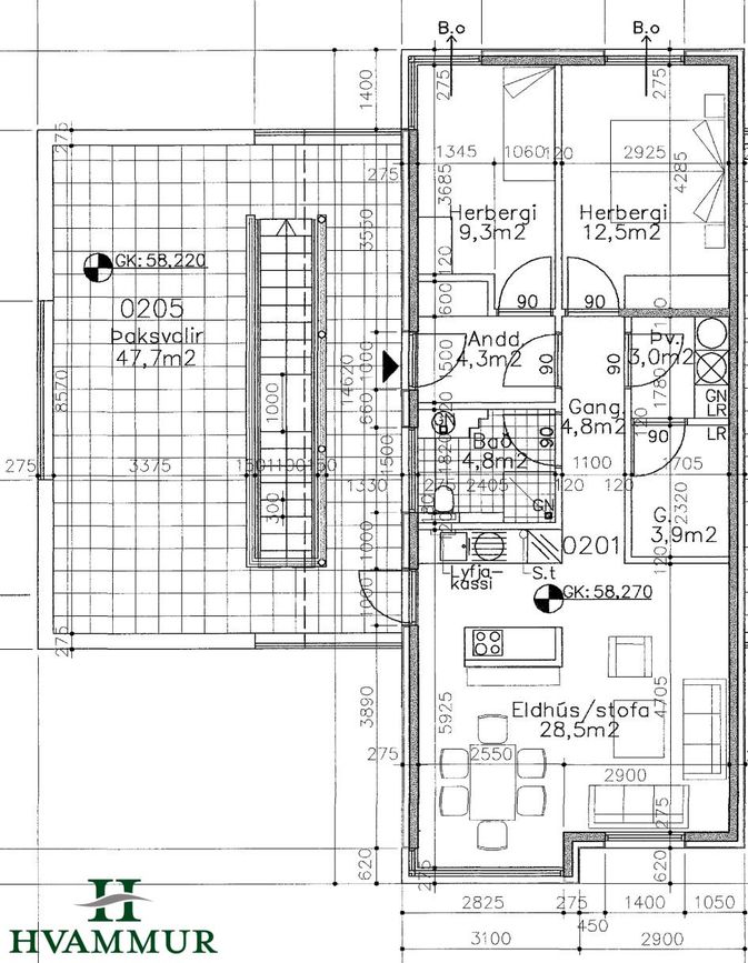
Lindasíða 51 íbúð 201 - Falleg 3ja herbergja endaíbúð með sér inngangi á efri hæð og með stórum suður svölum í Síðuhverfi - stærð 88,9 m²Eignin skiptist í forstofu, gang, eldhús og stofu í opnu rými, tvö svefnherbergi, baðherbergi, þvottahús og tvær geymslur, önnur er innan íbúðar.
Forstofa er með flísum á gólfi og spónlögðum eikar fataskáp.
Eldhús, hvít sprautulökkuð innrétting með flísum á milli skápa og eyja með helluborði. Úr eldhúsinu er hurð út á hellulagðar svalir til suðurs.
Stofa og eldhús eru í opnu og björtu rými með stórum gluggum og ljósu harð parketi á gólfi.
Svefnherbergin eru tvö, bæði með ljósu harð parketi á gólfi og spónlögðum eikar fataskápum. Stærð herbergja er skv. teikningum 9,5 og 12,5 m².
Baðherbergi er með flísum á gólfi og hluta veggja, spónlagðri eikar innréttingu og speglaskáp, upphengdu wc, walk-in sturtu og opnanlegum glugga.
Þvottahús er með flísum á gólfi, bekk með skolvask og efri skápum.
Geymslunar eru tvær, ein innan íbúðar og ein sem er utangengt í. Geymsla innan íbúðar er með flísum á gólfi, stórum skáp og hillum. Hin geymslan er í sameignlegu rými á bakvið bílskúrinn og er hún skráð 3,2 m² að stærð.
Annað- Rúmgóðar hellulagðar svalir til suðurs, skráð 47,7 m² að stærð á teikningum.
- Hitalagnir eru í stiga og að forstofuhurð.
- Búið er að taka inn ljósleiðara.
- Stutt í leik- og grunnskóla, Norðurtorg verslunarmiðstöð og ýmsa þjónustu.
- Eignin er laus til afhendingar júní/júlí 2026- Eignin er í einkasölu
Um skoðunar- og aðgæsluskyldu:Í lögum um fasteignakaup nr. 40/2002 er kveðið á um ríka skoðunarskyldu kaupenda á fasteignum. Fasteignasalan Hvammur skorar því á væntanlega kaupendur að kynna sér vel ástand fasteigna fyrir kauptilboðsgerð og leita til þar til bærra sérfræðinga um nánari skoðun ef með þarf.
Forsendur söluyfirlits:Söluyfirlit er samið af fasteignasala í samræmi við ákvæði laga nr. 70/2015. Þær upplýsingar sem fram koma í söluyfirliti þessu eru sóttar í opinberar skrár, til seljanda sjálfs og eftir atvikum til húsfélags. Seljandi veitir upplýsingar um eign í samræmi við upplýsingaskyldu laga um fasteignakaup nr. 40/2002. Fasteignasali sannreynir að þær upplýsingar séu réttar með sjónskoðun á eigninni. Fasteignasali getur ekki fullyrt um ástand og eiginleika þeirra hluta fasteigna sem ekki eru aðgengilegir og sjást ekki berum augum, t.d. lagnir, dren, skólp og þak.