Nordik fasteignasala kynnir fasteignina Lækjarvellir 13-15, 610 Grenivík:
Raðhúsaríbúðir á einni hæð á góðum stað á Grenivík.
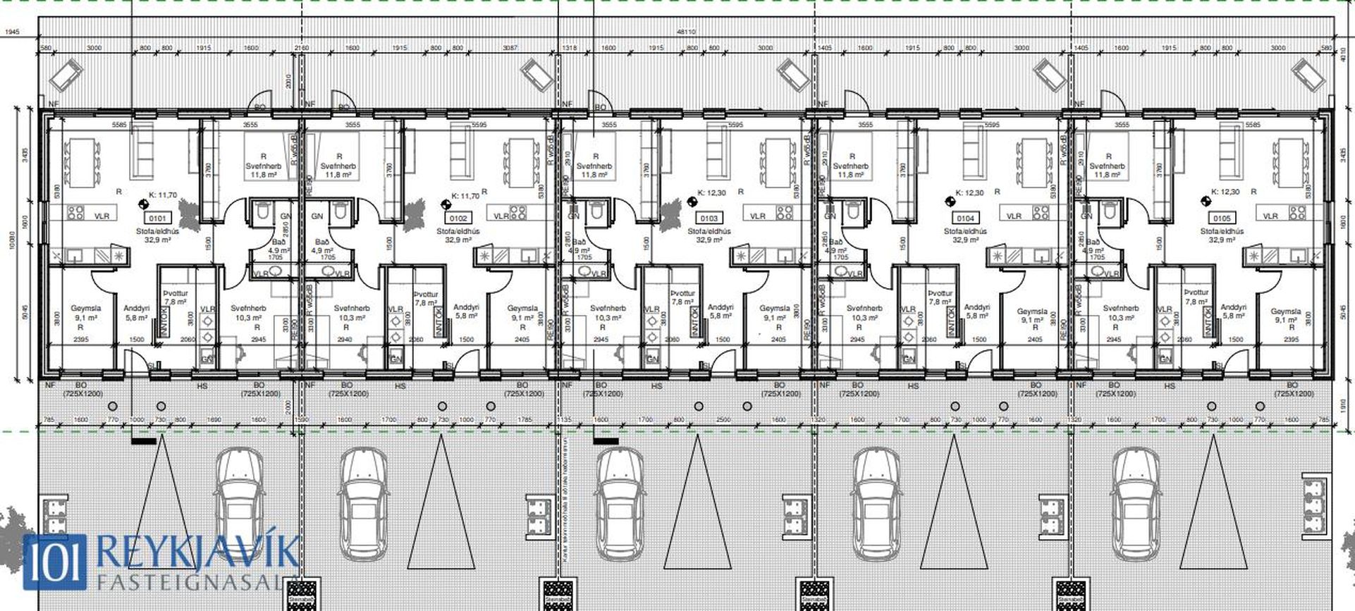
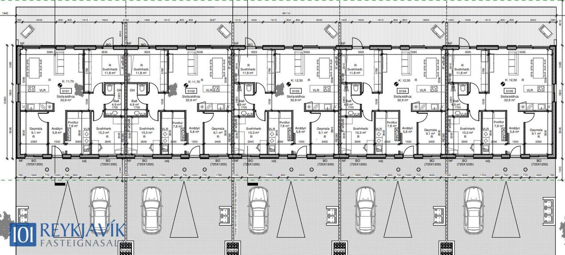
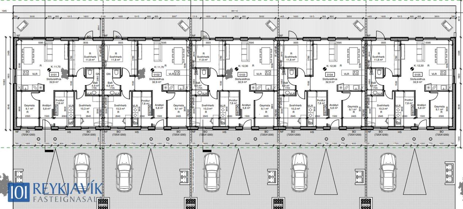
- Útborgun aðeins um 2.750.000,-, fyrir glænýja eign á besta stað á Grenivík ef sótt er um hlutdeildarlán frá Húsnæðis- og mannvirkjastofnun.-Um er að ræða 3-4 herbergja raðhúsaríbúðir á einni hæð. Endaíbúðir eru 98,5 fm. en hinar eru 96 fm.
Val um að fá eignina afhenda (verð endaíbúð):Tilbúið að utan; fullkláruð að utan, búið að einangra upp í loft og plasta, hiti kominn á.
Verð kr. 44.900.000,-.Fullklárað; fullkláruð að utan og innan, með heimilistækjum. Val eru um nokkra liti á innréttingum.
Verð kr. 55.600.000,-.Samkvæmt hönnun skiptist eignin í forstofu, tvö svefnherbergi, svefnherbergi/geymslu með glugga, þvottahús, baðherbergi með sturtu eða baði, stofa og eldhús í rúmgóðu alrými þar sem gengið er út á sólpall.
Nánari lýsing, afhending fullfrágengin að innan og utan:Forstofa er flísa- eða parketlögð. Þaðan er gengið inn í þvottahús, herbergi/geymslu og inn í alrými.
Þvottahús er flísalagt, innrétting þar sem þvottavél og þurrkara er lyft upp í þægilega vinnuhæð.
Svefnherbergi/geymsla, með góðum glugga og fataskáp, parket á gólfi.
Svefnherbergi eru tvö, bæði með góðum fataskáp, parket á gólfi. Útgengt út á sólpall úr hjónaherbergi.
Baðherbergi, flísar á veggjum og gólfi, val um sturtu eða bað.
Eldhús og stofa, í einu alrými, aðskilin með eldhúseyju. Parket á gólfi. Val um hvort loft séu niðurtekin að hluta. Stórir gluggar. Gengið úr rýminu út á sólpall, tengi fyrir heitan pott.
Bílastæði fyrir 2 bíla að framan. Ruslaskýli fyrir þrjár 120L. ruslatunnur.
Aðrar upplýsingar:- Seljandi þarf að greiða 0,3% skipulagsgjald af brunarbótamati, þegar það er lagt á.
- Eignin er í einkasölu hjá Nordik Fasteignasölu, Akureyri.
Að öðru leyti vísast til skilalýsingar fasteignar og hönnunargagna, sem fáanleg eru hjá fasteignasölu. Nánari upplýsingar veitir Andrés Már Magnússon, lögmaður og löggiltur fasteignasali, í síma 8522098, tölvupóstur andres@nordikfasteignasala.is.Gjöld sem kaupandi þarf að standa straum af vegna kaupanna:
1. Stimpilgjald af kaupsamningi - 0.8% af heildarfasteignamati / 1.6% fyrir lögaðila. (0.4% við fyrstu kaup einstaklinga).
2. Þinglýsingagjald af kaupsamningi, veðskuldabréfi, veðleyfi o.fl.- kr. 3.800 af hverju skjali.
3. Lántökugjald lánastofnunar - samanber gjaldskrá viðkomandi lánastofnunar.
4. Umsýsluþóknun til fasteignasölu, sbr.kauptilboð.
*Verið er að reisa fasteignina. Myndir í auglýsingu eru unnar út frá teikningum og grafískri hönnun. Þær eru því aðeins til viðmiðunar til að gefa hugmynd um endanlegt útlit eignar.