Við erum að hlaða inn upplýsingum um fasteignina
Aurbjörg finnur tækifæri í fjármálum heimilisins
Láttu Aurbjörgu standa vaktina og hjálpa þér að taka betri ákvarðanir í fjármálum.
Aurbjörg
Markmið Aurbjargar er að auka fjármálalæsi, auka gagnsæi og aðstoða þig við að taka upplýstari og betri ákvarðanir í fjármálum.
RannisTaekniþrounarsjod
© 2017-2026 • Aurbjörg ehf. • 430518-1430 • Lágmúla 9 • 108 Reykjavík
TikTokFacebookInstagram
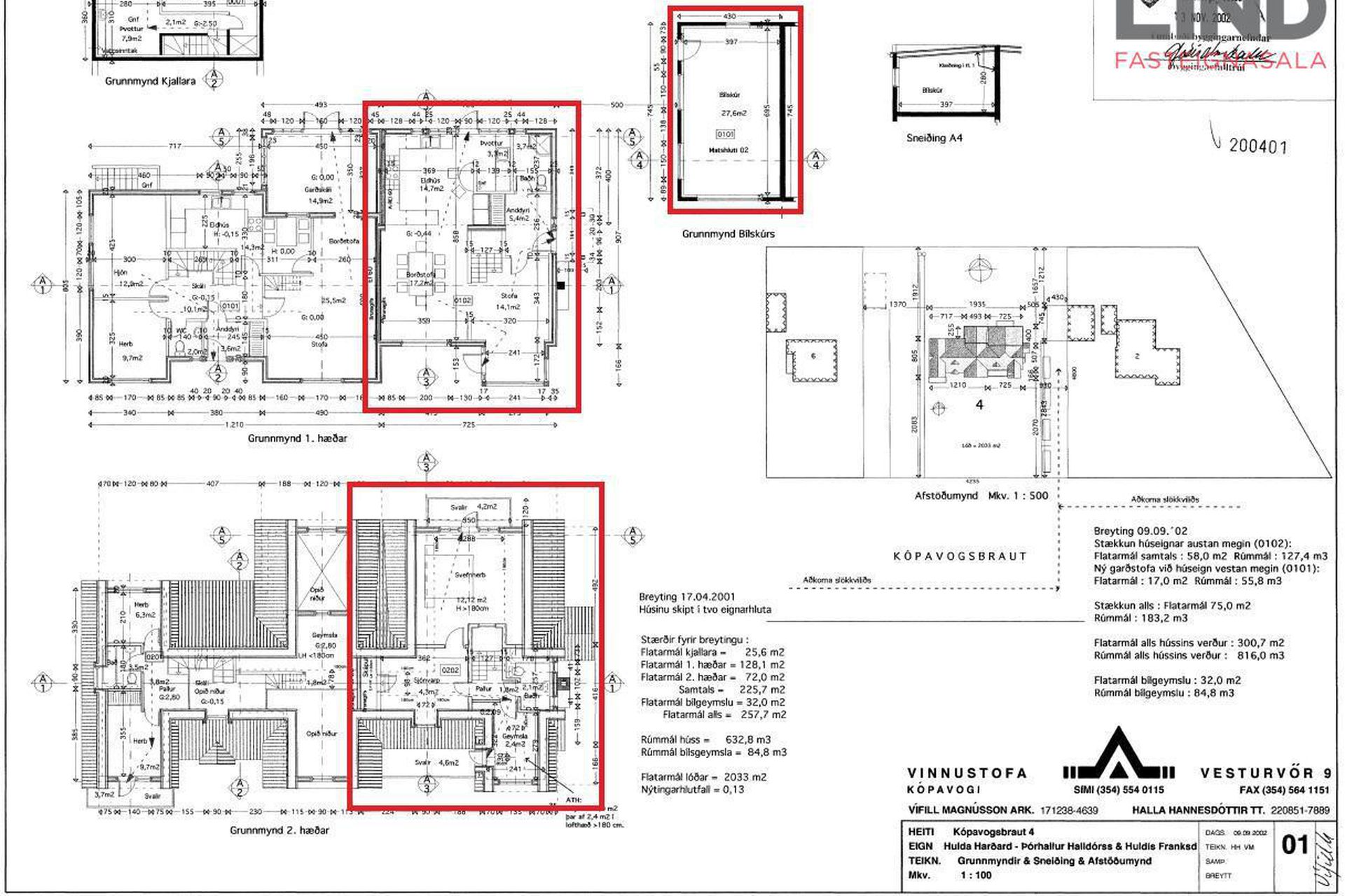
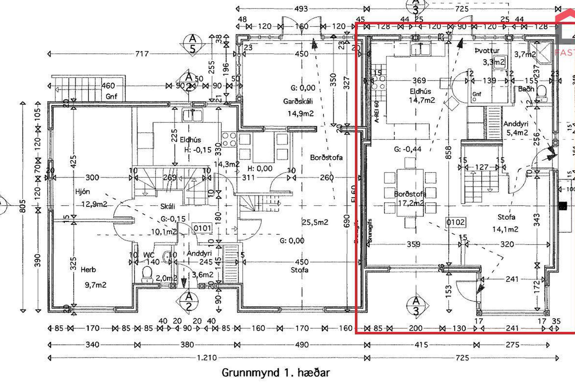
Kópavogsbraut 4 - 0102, 200 Kópavogur - Verðmat fasteigna