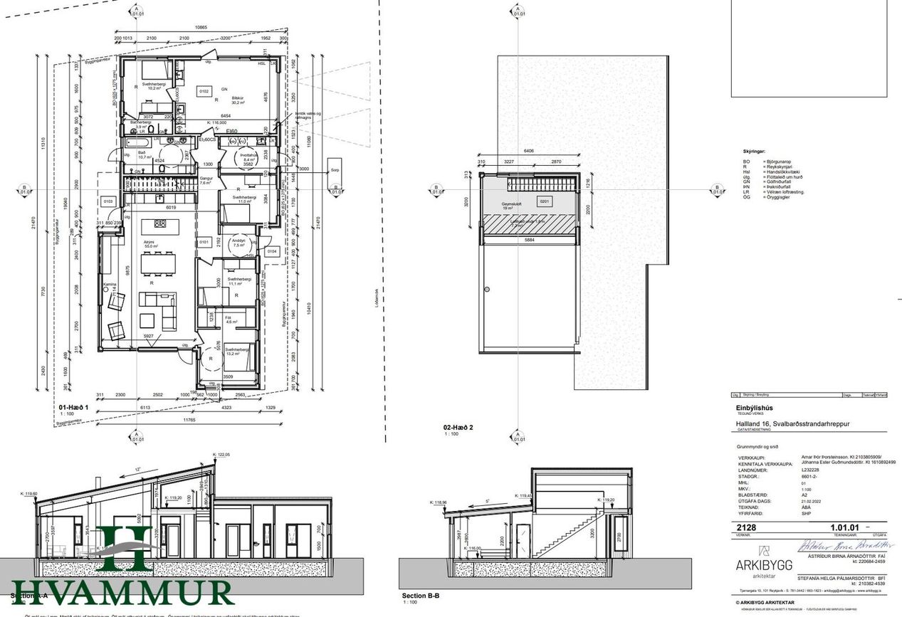
Íbúð
Timburhús klætt svörtu áli og timbri. Skiptist í forstofu, eldhús, stofu, tvö barnaherbergi, hjónaherbergi með fataherbergi, baðherbergi, þvottahús, bílskúr og setustofu á efri hæð.
Stofa
Opið rými með eldhúsi, flísalagt gólf, aukin lofthæð, stórir gólfsíðir gluggar, hljóðdempandi þiljur á suðurvegg og hurð út á timburverönd.
Eldhús
Dökk grá innrétting með stórri eyju, innfelldum ísskápi og uppþvottavél, vínkælir í eyjunni og hurð út til vesturs.
Svefnherbergi
Hjónaherbergi (13,2 m²) með flísalegu gólfi og fataherbergi. Tvö barnaherbergi (11 m² hvort) með tvöföldum fataskápum.
Baðherbergi
Flísalagt baðherbergi með marmaralituðum flísum, dökkum grám innréttingum, tveimur handlaugum, tvöfaldri walk-in sturtu og upphengt wc.
Guest baðherbergi
Baðherbergi í bílskúrnum með hvítum innréttingum, walk-in sturtu og opnanlegum glugga.
Þvottahús
Með flísalegu gólfi, stæði fyrir þvottavél og þurrkara, lagnir fyrir skolvaska og aukinn inngangur.
Geymsla
Fataherbergi í hjónaherberginu og geymsla í bílskúrnum.
Bílskúr
Bílskúr með rafdrifinni innkeyrsluhurð, gráu lökkuðu gólfi, 3ja fasa tengli og sér gönguhurð.
Garður
2.112 m² lóð með náttúrulegum gróðri og litla grasverönd við suðurhlið.
Svalir/þak
Timburverönd úr stofunni til suðurs.
Önnur herbergi
Setustofa á efri hæð með harðparketi og víðsýnt útsýni.
Tæki
Innfelldur ísskápur, uppþvottavél, vínkælir og þvottavél/þurrkari í þvottahúsi.