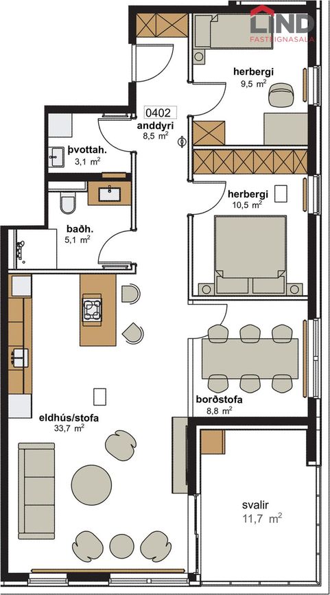
Íbúð 402 er þriggja til fjögurra herbergja með þvottahúsi og bílastæði í kjallara.
LIND Fasteignasala kynnir: Nýjar og glæsilegar íbúðir við Hringhamar 17-19 í nýju hverfi í Hamranesi í Hafnarfirði. Íbúðirnar afhendast án gólfefna. Allar íbúðir er búnar með sérstöku loftræstiskerfi. Umframgæði sem
tryggja mjög góð loftskipti og góða nýtingu á varma. Eldhúsinnrétting er sérsmíðuð af vandaðri gerð frá Axis ásamt vaski og Grohe blöndunartækjum frá Byko. Helluborð og blástursofn eru af gerðinni AEG frá Ormsson (sjá nánar á www.ormsson.is) Gufugleypir í eldhúsi er einnig frá Ormsson. ATH húsið er í Svansvottunarferli.// VILDARKORT LINDAR //Við vekjum sérstaka athygli á því að allir kaupendur hjá Lind fasteignasölu fá Vildarkort Lindar sem veitir 30% afslátt hjá samstarfsaðilum okkar, en þeir eru:
Parki (gólfefni), Z brautir og gluggatjöld, Húsgagnahöllin, Betra bak, Dorma, Flügger litir, S. Helgason steinsmiðja, Vídd og Húsasmiðjan.
Íbúð 402: 96,6 fm 3ja-4gra herbergja íbúð á 4. hæð. Íbúðin er 96,6 fm þar af 5,0 fm geymsla, hægt er að bæta við þriðja herberginu, þvottahús innan íbúðar og bílastæði í kjallara fylgir íbúðinni.
Allar nánari upplýsingar á heimasíðu verkefnisins www.hringhamar.is
ALLAR NÁNARI UPPLÝSINGAR VEITA:
ANDRI FREYR HALLDÓRSSON Í S: 762-6162 / ANDRI@FASTLIND.IS
KRISTJÁN ÞÓRIR HAUKSSON Í S: 696-1122 / KRISTJAN@FASTLIND.ISGólf íbúða eru fleytt og tilbúin fyrir endanlegt gólfefni, nema í baðherbergi og í þvottahúsi en þar eru flísar á gólfum. Einnig eru flísar á veggjum baðherbergja, flísar eru frá Parka. Fataskápar í herbergjum og forstofu eru af vandaðri gerð frá Axis. Borðplötur eru í eldhúsi, baði og þvottahúsi þar sem við á og eru frá Axis.
Eldhúsinnrétting er sérsmíðuð af vandaðri gerð frá Axis ásamt vaski og Grohe blöndunartækjum frá Byko. Helluborð og blástursofn eru af gerðinni AEG frá Ormsson (sjá nánar á www.ormsson.is) Gufugleypir í eldhúsi er einnig frá Ormsson.
Baðherbergi: Baðinnrétting kemur frá Axis. Hreinlætistæki og handklæðaofn eru frá Byko. Salernið er upphengt og innbyggt. Hitastýrð blöndunartæki verða við sturtu. Gólf eru flísalögð og veggir að hluta upp í loft
Loftræsting: Sérstakt loftræstikerfi er fyrir hverja íbúð. Kerfið hefur loftskipti í íbúðinni með því að taka loft að utan og dæla því inn í vistarverurnar, herbergi og stofu, og soga lofti út úr baði, þvottahúsi og eldhúsi. Kerfið er með varmaendurvinnslu og nýtir við bestu aðstæður um 80% af varmanum. Kerfið er með loftsíum og er allt loft sem kemur inn síað. Ekki á að vera þörf á að opna glugga í íbúðinni til loftunnar.
Frágangur sameignar: Anddyri/stigahús er lokað og er það flísalagt á aðkomuhæð með uppsettum póstkössum. Stigar og stigapallar eru teppalagðir, handrið eru á stigagöngum. Allar útidyrahurðir frágengnar og er rafmagnsopnun á aðalinngöngum. Sameign er upphituð með ofnakerfi. Raflagnir í sameign eru fullbúnar með ljósum, sbr. teikningar. Loftræstilagnir eru lagðar skv. teikningu.
Sameign: Í bílgeymslu er lagt grunnkerfi fyrir bílhleðslu. Eigendur stæða í bílgeymslu
geta sett upp eigin hleðslustöð og tengt inn á grunnkerfi bílgeymslu
Skólar og leikskólar eru í nágrenni og eru öruggar göngu- og hjólaleiðir að þeim. Einnig er fyrirhugað að nýr leikskóli rísi í næsta nágrenni.
Hverfið er í nálægð við náttúru og er staðsetningin einstök með tilliti til útivistar. Í næsta nágrenni er Ástjörn, Hvaleyrarvatn og ein vinsælasta gönguleiðin í Hafnarfirði, upp á Helgafell.
Eignin afhendist skv meðfylgjandi skilalýsingu.
ALLAR NÁNARI UPPLÝSINGAR VEITA:
KRISTJÁN ÞÓRIR HAUKSSON Í S: 696-1122 / KRISTJAN@FASTLIND.IS
ANDRI FREYR HALLDÓRSSON Í S: 762-6162 / ANDRI@FASTLIND.ISGjöld sem kaupandi þarf að standa straum af vegna kaupanna:
1. Stimpilgjald af kaupsamningi - 0,8% af heildarfasteignamati, lögaðili greiðir 1,6%
2. Þinglýsingargjald af kaupsamningi, veðskuldabréfi, mögulegu veðleyfi o.fl. - kr. 2.700 af hverju skjali.
3. Lántökugjald lánastofnunar. Nánari upplýsingar á t.d. heimasíðu lánastofnana.
4. Umsýslugjald til fasteignasölu 74.900.- með vsk.
5. Kaupandi greiðir skipulagsgjald, 0,3% af brunabótamati, þegar það verður lagt á