















Kíktu á dæmið með Aurbjörgu
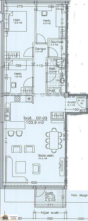
| Íbúð | Herbergi | Stærð | Síðasta ásetta verð | Síðasti kaupsamningur |
|---|---|---|---|---|
| 4 | 105,30 m² | 64.900.000 kr. 29. apríl 2025 | 62.000.000 kr. 13. júní 2025 |
| Dags. | Stærð | Fermetraverð | Ásett |
|---|---|---|---|
| 29.04.2025 Nánar | 105,3 m² | 616.334 kr. | 64.900.000 kr. |
| 17.04.2025 Nánar | 105,3 m² | 616.334 kr. | 64.900.000 kr. |
| 01.04.2025 Nánar | 105,3 m² | 616.334 kr. | 64.900.000 kr. |
| Dags. | Kaupverð |
|---|---|
| 13. júní 2025 | 62.000.000 kr. |
0202 ![]() | 2 | 59,30 m² | 48.500.000 kr. 7. júlí 2025 | 47.250.000 kr. 14. ágúst 2025 |
0204 | - | - | - | 52.800.000 kr. 17. október 2025 |
0201 ![]() | 3 | 67,50 m² | 52.500.000 kr. 2. júlí 2025 | 51.000.000 kr. 14. ágúst 2025 |
0205 ![]() | 3 | 73,30 m² | 53.500.000 kr. 15. september 2025 | 53.500.000 kr. 29. ágúst 2025 |















